有很多的人一想到日式設計,就會考慮選擇用榻榻米、用原木色,今天給大家分享的這個案例既有榻榻米,又有原木色元素的應用,重點是設計當中有關於日式收納的體現,希望大家可以從中學到一些有用的知識,其實關於顏色搭配上,日式風格一般都是比較柔和的,這其實與當地人的審美觀念有很大的聯絡,我們在看日劇的時候就不難發現,裡面的人物服裝以及出現的建築或物品等等,顏色都不是特別的鮮豔,所以日式裝修風格也比較傾向這一點。
房屋面積:52m2
裝修成本:30萬
裝修風格:日式風格
戶型:兩居
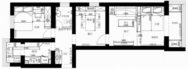
裝修效果圖
玄關:
設計師為了避免入戶即見衛生間的尷尬,做了隱形門的設計,簡潔大方。入戶左側是定製鞋櫃,為了增加收納空間,做了頂牆的設計,中間部分做了開敞的設計,方便業主放一些隨身攜帶的小物品和鑰匙,下方留了15公分的空間,方便打掃,也可以方便業主方脫鞋,鞋櫃對面則是一面大的穿衣鏡,既有增大空間的效果,又可以起到幫助業主整理著裝的作用,頂面是做了雙極頂,一側燈帶設計,燈光氛圍特別棒。
餐廳
設計師在餐廳這個空間並未做過多的裝飾,以成品傢俱為主,偏向日式簡約風格,也這非常符合業主小兩口的喜好,原木色的餐桌餐椅搭配麻繩手工吊燈,後方窗簾也非常具有特色,氛圍感一下子就營造出來了,晚上餐廳上方的吊燈發出暖黃的光亮,給整個家增添了意思溫暖與浪漫。
客廳+主臥
設計師將原來餐廳與主臥之間的牆體拆掉,主臥一分為二,一半做客廳,一半做臥室,用半牆的隔斷櫃子代替,不僅可以增加收納空間,也能夠使得光線問題得到解決,牆面依舊是以白色為主,顯得整個空間比較乾淨整潔。
沙發背景牆,只是簡單地掛了三幅水墨畫,意境一下了就被渲染出來了,考慮到空間問題,設計師並未選擇傳統的笨重茶几,而是選擇了一個小型的圓形茶几,精緻小巧,比較可愛,主臥並未放置大床,而是做了地臺的設計,這樣既可以防潮,又可以做收納只用,一舉兩得。
次臥
次臥主要是為了家中老人有時過來住所設計的,比較的成熟穩重,牆面以淺灰色為主,沒有做任何的裝飾,床頭放置一幅簡單的裝飾畫,搭配一盞墨綠色的壁燈,空間變得高階感十足。
廚房
家中的廚房是不是感覺挺大的,跟這套房子的空間比例有些不搭配呢?這都是業主小兩口的小要求,夫妻兩人都喜歡美食,沒事的時候喜歡一起研究做天南海北的特色食物,所以在設計前,就提出希望家中的廚房可以大一點,給他們一個施展廚藝的空間。
U型櫥櫃的設計,給業主提供了更多的收納空間以及操作檯面,牆面是貼了小規格的小白磚,方便打掃,看起來也比較的乾淨,地面以及櫥櫃面都是深灰色,日式感滿滿。
衛生間
衛生間雖然空間小,但是一絲一毫都沒有浪費,看看牆面上的收納,你是不是也很佩服設計師的心思,牆面與地面做了一體式設計,有增大空間的效果。
今天小編給大家分享的這套小兩居,雖然面積小,但是該有的一樣不少,並且裝修出來日式感還比較的簡約清新,適合90後、00後的裝修風格選擇。
