設計師說:本案例位於閔行區的金匯華光城小區,整體風格比較溫馨 乾淨,當時接觸這位業主的時候,業主給我提到家裡就她和她先生兩位居住,小孩不住在一起走,要求簡單 乾淨、明朗易清理就可以,不喜歡太複雜的造型。原始戶型客戶最不喜歡的就是原廚房的佈局,收納空間少,檯面少客戶家很多廚房小電器都不能放下,後面在設計的當中廚房的收納問題得到很好的解決同時也增加了很多臺面收納,客戶很滿意。
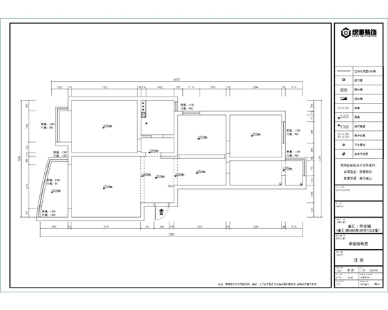
原始戶型是標準的長方形的戶型,雖然不是很方正,但是也是有很多優點的,像動靜區相對來說還是比較分明的,整體是呈一個L型的佈局,用的比較多的公共空間比較大,並且在每一個單獨設計的空間都很通風。
平面設計圖中,設計師並沒有做很大的戶型改動,只是將餐廳區域的空間擴大,廚房的陽臺牆面打掉,擴大實用面積,同時在客廳陽臺放置沙發用作休閒的區域,衛生間做乾溼分離,乾淨衛生又美觀實用。
玄關入戶就是白色的簡潔鞋櫃,直通走廊到衛生間,選用深色原木的門體,進門就是頂到屋頂的鞋櫃,中間留出開放式空間,靠近地面留出20公分距離用來放置日常穿的鞋,中間用來擺放裝飾品還可以用來放置鑰匙包包,白色鞋櫃簡潔又美觀。
客廳選用淺原木面板做地面設計,腳感好的同時還顯空間溫馨感十足,屋頂做雙眼皮吊頂+無主燈設計,擴大視覺空間,在吊頂的兩側還做了黑白色線條處理,為空間增加設計感,陽臺與客廳空間相通納入,全面玻璃設計採光性十足。
客廳選用棕灰色皮質沙發搭配薑黃色單人沙發,牆面是簡潔白色乳膠漆設計,放置淺色裝飾畫,簡潔感十足,但是配置的薑黃色沙發卻又讓空間增加活力,靠近沙發的左側,玄關的右側是簡單小書櫃的設計,搭配黑色線條,設計感滿滿。
書櫃分為兩部分,上部分是搭配玻璃的開放式空間,放置書籍和一些裝飾品,還有一些古玩,都陳設在櫃體中,外界能夠看到的同時物件又不受灰塵影響,下側是隱藏式收納櫃,收納空間的不常用物品。
在沙發的對面是電視機,白色牆面搭配黑色櫥櫃,電視懸掛在牆面中,簡潔又時尚,客廳中央擺放橢圓形茶几,為空間增加圓潤感,向客餐廳看去,是一條線,原木地面直鋪到盡頭,空間感十足。
餐廳的空間比較大,地面由客廳鋪設過來,屋頂做雙眼皮吊頂設計,中間餐桌的上側懸掛金屬元素的長吊頂,餐廳整體做簡潔設計,白色牆面通用,搭配肉黃色大理石臺面的餐廳和棕灰色質感的餐椅,簡潔又時尚。
餐桌的一側靠近牆面做半高的櫥櫃設計,櫥櫃直通房屋的兩側,大理石做檯面下側設計白色的櫥櫃,增加收納空間,牆面一側留出長方形視窗增加餐廳的採光,另一側搭配裝飾畫,時尚又婉約。
餐桌的一側是收納式櫥櫃,另一側也是櫥櫃,不同的是,櫥櫃並沒有直通兩側牆面而是留出冰箱的位置,將冰箱鑲嵌於櫥櫃之中,節省空間的同時還增加了收納空間。
廚房在餐廳櫥櫃處,是標準的U型佈局設計,由於這塊的原始戶型就是長的,沒有很多的地方進行儲存,所以乾脆做U型佈局,這樣兩側都可以使用還能增加收納空間,地面做雜色大理石地面,乾淨還容易清理,屋頂做平面設計,與屋頂櫥櫃混為一體,時尚簡約。
廚房的一側主要是傢俱擺放,灰色大理石做檯面時尚又高階,檯面上多增加幾個插座,用來放置電飯鍋、電水壺、烤箱等傢俱,做飯炒菜兩不誤。
另一側則是做飯的主區,洗菜池在靠近窗臺的為主,主做菜區在靠近門的位置,在這裡還有一個小小的設計心機,就是洗菜池的檯面稍微掏出做飯區的檯面10公分,用來更好的區分空間。
主臥地面做原木地面鋪貼,屋頂做雙眼皮吊頂+無主燈設計,屋頂內側還做黑色線條設計,增加空間的時尚感,臥室沒有搭配裝飾畫,而是選用淡黃色的牆面為主要設計,整體設計柔和甜美。
主臥沒有大陽臺而是有個大大的飄窗,因此在設計的時候是在窗臺上放置了軟墊,還搭配了窗紗,避免強光的照曬,可以讓業主在飄窗上做臨時休閒的地方。
臥室床體的左側是大大的飄窗,右側則是衣櫃,由於臥室空間整體都是以淡黃色為主要設計的額,所以在衣櫃的設計中是選用白色的衣櫃,並且是推拉式的櫃體,頂到屋頂的白色衣櫃簡潔又方便。
次臥屋頂做窄雙眼皮吊頂設計,沒有過多的奢華裝飾品,只搭配了一個圓燈設計在屋頂中間,牆面依然是淡黃色的設計,由於次臥空間比較小,所以沒有很多的搭配,就連電視機都是懸掛在牆面上。
靠近門的一側做衣櫃設計,將衣櫃直接嵌入牆體中,既節省空間還美觀,衣櫃設計比較特別,兩側是豎長型的櫃體,中間都是抽屜式儲藏,在大部分都選用推拉門的衣櫃中比較亮眼。
衛生間是用水比較多的區域,所以為了更好的防水,設計師用大理石做空間的整體設計,並且在每個空間都做不一樣的設計,能更好的區分空間,也更加美觀。
洗漱臺的地面是灰色大理石鋪成,櫥櫃選用淺灰色搭配檯面大理石的檯面,乾淨時尚,同時還設計了大大的化妝鏡,開合式的化妝鏡還能夠收納一些化妝用品,乾淨又美觀。
馬桶在洗漱臺的後面,同為灰色大理石的地面設計,鄰側就是淋浴間,利用黑色10mm*10mm的小瓷磚拼接而成地面,牆面是白色花紋的大理石,時尚感十足,在淋浴間還設計了長方形的壁壘,用來放置洗漱用品,實用性十分。
Q:裝修花了多長時間?小區在哪裡?
A:裝修花了六個月的時間,小區在金匯路588弄金匯華光城;
Q:說說你對這套作品最滿意的地方在哪裡,為什麼?
A:對這套作品最滿意的地方就是整體的配色,雖然很簡單的木色做打底,白色為主色,但是在整體的設計當中白色卻不顯得單調,而是用著獨有的清爽與舒適。
Q:對平面佈局做了哪些最佳化改動,為什麼?
A:佈局並沒有進行很多的改動,就是在餐廳區域做收納櫃,增加收納空間,其次就是廚房的陽臺與廚房的打通,做U型佈局設計,增加收納空間。























 
			 
			 
			 
			 
			 
			 
			 
			 
			 
			 
			 
			 
			 
			 
			 
			 
			 
			