關注“大象研習社”每天上午 11:12
資料獲取在文章底部
澳洲住宅別墅丨實景案例64套
【資料精選部分內容】
Invermay House Moloney Architects
Bell Street House Techne Architecture + Interior Design
Layer House Robson Rak Architects and Interior Designers
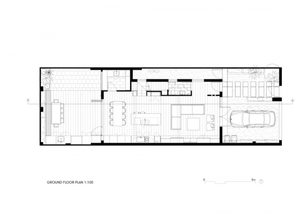
Elwood House STAR Architecture
Sti&Stones Home Luigi Rosselli
