生活中我們常常聽到生活態度這個詞,但很多人都不知道自己的生活態度究竟是什麼。
關於這個問題,小羊和77用一首歌回答了我。
好愛裝,
杭城探家丨“生活就是活在當下”,小羊和七七一直這麼認為,這個工業風的家是他們一眼看中的,剛開始裝修的時候確實不被親戚朋友認可,沒有考慮收納,也沒有考慮小孩,但是他們覺得,或許未來的他們會被空間困擾,但至少現在,他們很幸福#杭城探家#麥豐裝飾#鄰居秀家#室內裝修#設計#麥豐裝飾@好愛裝
影片號
小羊和77是近期採訪過所有網友中最自然的一個,蹬著拖鞋,穿著家居服就接受了採訪,見到我們後,先是一句熟稔的“來啦!”,然後就去廚房張羅水果、飲料,不像接受採訪,更像是在招待許久不見的朋友。
這首慢生活的歌配上小羊在廚房熱火朝天的背影,再看到家硬核的工業風裝修,真的給人“心有萌虎”的既視感。
⊙
ABOUT THEM
NAME 小羊&77
DECORATE 麥豐裝飾
DEDIGNER 梁 珊
撰文 | 奇奇
排版 | 奇奇
兩個設計師對家的藝術創想
# 設計師的思路共頻
Pragmatism industrial style
屋主小羊和77都是90後,小羊是一名金融從業者,平時加班比較多,家裡的裝修可以說是全權交給了77。
77是一個平面設計師,同樣是設計師,77和梁工第一次見面就打成了一片,對於家裡整體色彩的運用、裝飾品軟裝的搭配很有共同語言。
有了這樣的專業“監工”,小羊表示自己很放心。
裝修風格是兩人一開始就商量好的,看了七八十套案例,只有工業風同時戳中了兩個人的心。
“因為家人比較反對裝工業風,所以一開始我們是瞞著家人裝修的,等裝修的差不多了我拍照發給爸媽,我爸媽還在問,為什麼你家裝了半年了還是毛坯房,”小羊對我們說:“雖然最後沒少被錘,但我們還是很開心。”
當然,小羊和77也不是完全放棄了實用,畢竟家是用來住的,為了顏值降低舒適度可不行。
所以在保留工業風顏值的同時,小羊和77儘量開發出了家裡隱藏的收納空間,只要做好斷舍離,現在的收納空間肯定能挺到下一次裝修。
“活在當下嘛,那些麻煩事有未來的我們去解決,”小羊躺在沙發上對我們說:“現在我們只想好好享受新家。”
⊙
誰說工業風一定不實用?
# 實用主義工業風
Pragmatism industrial style
很多人看到“工業風”三個字,腦海裡就會浮現出水泥、鋼筋、原始這些關鍵詞。
但是在小羊和77家,我們看不到冷冰冰的工業感,就和小羊說的一樣:家是住出來的。
77和梁工在住的舒服這方面算是專家,動線、軟裝、格局規劃......一切能讓家更舒適的方法,都一一進行了嘗試。
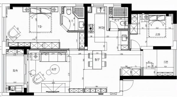
原戶型主臥空間儲物不夠,想在保留主衛的同時還能讓主臥空間感更大,還需要保留2個臥室和1個多功能房。
梁工和77在設計前,就針對家裡原始的戶型設計了一套完整的改造計劃,不改變工業風整體風格的同時,規劃了更多儲物空間,動線上也做了相應的調整。
Ø 餐廚:餐廳位置改動,靠著廚房吧檯區,廚房跟餐廳能形成很好的互動。
Ø 臥室:主臥在床對面做了一排儲物的同時,把主衛的格局改了,顯大同時又兼具儲物功能。
Ø 多功能房:朝北的小房間是多功能區,暗藏移門跟紗簾,平時以休閒喝茶讀書為主,偶爾客人來,地臺可以充當床來使用。
⊙
工業風+輕復古 我們有朋克到底的靈魂
# 工業風不止重金屬
Industrial is more than metals
雖然新家被家人調侃為毛坯房,但這個評價絲毫沒有影響到小羊,相反,小羊在這個“毛坯房”裡住的如魚得水,餐廳裡面小燒烤,客廳裡面練瑜伽。
因為已經入住了一段時間,家裡已經有了很多生活的氣息,屬於小羊和77兩個人的東西越來越多。
門上的明信片,是77的收藏,作為一個平面設計師,平時看到一些創意設計就忍不住收集起來,現在反而成為了新家最好的裝飾。
原始戶型裡沒有明確的玄關,只有一整面直通客廳的牆,77乾脆根據不同的功能,設計了3個不同的分割槽,玄關區、展示區和客廳。
玄關由玄關櫃和外接的鞋櫃組成,水泥質感的牆面和高階灰的櫃體本來給人的感覺是酷酷的,結果被玄關櫃上的盲盒"破壞"了氛圍。
家裡隨處可見的盲盒手辦是小羊和77共同的愛好,小羊喜歡樂高,77偏愛popmart。
兩人特地在客廳做了一面手辦展示牆,因為收藏品數量過多,“小小”的展示牆已經堆滿了他們的收藏。
客廳就要好好說說了,大概是小眾裝修風格的通病,家居軟裝實在是太難搭配了,小羊和77差點放棄。
“當時裝修完之後找了很久的茶几電視櫃,不說跑完全杭州的家居賣場吧,至少也跑完了80%,”小羊和我們吐槽:“後面還是逛街的時候看到的,一個回收舊杉木做的電視櫃和茶几。”
這套電視櫃和茶几是小羊一眼就看中的,單看還沒有那麼“工業風”,但是杉木的木質紋理,配上微微泛舊的歷史感,莫名契合家裡的裝修。
⊙
兒童房改茶室 再過一段二人世界
# “宅”是一種態度
"Curtilage" is an attitude
小羊和77都是宅家>出去玩的性格,再加上自己還想多過一段二人世界,新家裝修的時候,乾脆沒有規劃兒童房,而是改造成了茶室。
兩個人在家的時候,窩在茶室喝喝茶、聽聽音樂,有朋友來家裡聚會,地臺可以改造成一個臨時的住所。
小羊喜歡喝茶,收集一些中古的電器、CD等等,所以在茶室也設計了一個展示櫃,上面放了小羊的相機、從舊貨市場淘到的收音機、CD、77的中古包等等。
復古的裝飾搭配上水泥質感的牆面、木質的展示架,莫名有一種禪意。
77經常嘲笑小羊,說他年紀輕輕就有了老年人的愛好,既愛喝茶,又愛收藏舊東西,但是小羊不以為意,每隔一段時間,就會好好擦一擦自己的收藏。
有些收藏品可能已經沒有了實用功能,但是放在那裡就是賞心悅目。
多功能房和公共空間用一扇隱形的移門隔開,開啟移門,多功能房與客餐廳相連,朋友聚會的時候,就有了一個比較大的活動空間。
關上移門,這裡自成一方小天地,地臺處簡單設定了茶桌和編織軟墊。
盤腿而坐,一杯清茶,聽著窗外的雨聲,在家遠遠比在市中心排隊來的更加舒適。
對於小羊和77來說,這裡不僅僅是家,更是工作忙碌之餘,一個可以放肆享受的地方,這樣的地方,每一個小細節都值得自己好好佈置。
⊙
主臥?儲藏室?是我們的秘密空間!
# 斷舍離一樣重要
Break off is important
很多人聽到工業風這個風格,就覺得很不實用,但設計總是為人服務的。
小羊和77在選擇風格的時候,也沒有忘記收納的重要性,所以在很多地方都隱藏了收納的空間,其中收納的“重頭戲”放在了主臥。
因為現在臥室基本上用不到電視,原本電視牆的位置,小羊和77大刀闊斧的改成了一整牆的收納,主要收納77的衣服和小羊換季的衣服。
小羊平時穿的衣服,用一個開放式的小衣櫃來儲存。
如果按照原戶型的規劃,在臥室打一整面櫃子會顯得非常壓抑,為了讓空間顯得更加寬敞,最後改造了原本臥室和主衛的格局,用長虹玻璃作為隔斷。
主臥的床架也選擇了比較低矮的款式,整個空間顯得更加通透,土色系的軟裝搭配,讓工業風的臥室更有質感。
次臥的裝修風格偏向復古,考慮長輩會來家裡小住,將來小孩也會住在次臥,次臥水泥漆的元素很少,用了淺灰色的牆漆作為替代。
軟裝的顏色搭配也用了比較活躍的顏色,但是復古的情懷不變,完美融合進了整個家的風格里。
ENDING
現在這個房子是小羊畢業之後就購入的,因為朋友也買了這裡的房子,在朋友的介紹下,沒多猶豫就下手了。
裝修的過程中,房子裡一點點添置上了兩個人的用品,空蕩蕩的房子逐漸變成家,才有了真正安定下來的實感。
未來很多事情還不能確定,唯一能夠確定的,就是現在還能牽著對方的手,在自己的節奏裡享受生活。







































 
			 
			 
			 
			 
			 
			 
			 
			 
			 
			 
			 
			 
			 
			 
			 
			 
			