今天分享的是北京一戶人家,戶型比較特殊,是一個沒有上"彈夾"的手槍戶型。
女主D小姐與家人當初購買到這個房子,就是為了"學區"需求,也是時間節點比較緊張戶型方面並沒有過多的考慮,拿到房子之後就租出去了,開始裝修的時候才剛剛看到房子的全貌。
早期也瞭解到房子是大一居的結構,想要改成兩居室還是有些難度的。最後還是跟住範兒的趙美佳設計師溝通後,確定了這版一改二的方案!
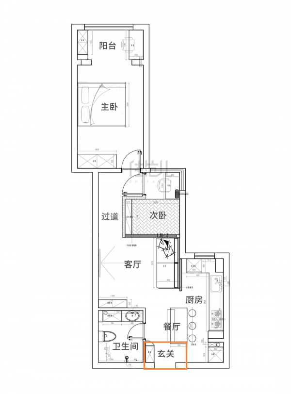
這套房子的房齡也有20年了,是海淀區的一個二手學區房,使用面積不到70㎡,有著典型的手槍戶型缺陷:
● 空間缺陷:沒有玄關;廚、衛過於狹小;主臥與客廳略大,格局不理想;
● 結構問題:承重牆結構較多,小區樓體結構問題,窗戶位置不理想;
● 光線問題:進深過長,讓中心的過道、廚房採光不甚理想。
屋主是一對年輕夫婦,也是第二次裝修,這間房子目前作為他們孩子上學準備的,也是從順義147平大房子換了海淀學區房的"老破小"。
這是屋主與設計師剛來的看到房子的樣子,老舊破敗,生活雜物凌亂不堪。
原始戶型分析:
● 戶型朝西,房子在單元樓中的位置也比較差,光照時間較短;
● 窗戶的朝向一致,導致有充足的進風口但是缺少了出風口,通風性較差;
● 衛生間放置洗衣機的情況,使用面積將大幅降低,並且是個暗衛;
● 廚房內部可以放下標準的L型櫥櫃,但封閉式廚房的原因,必定讓廚房門的空間使用率變低;
● 如果一居變兩居,將會影響到客餐廳的室內採光;
● 入戶空間位置特殊,入戶鞋櫃位置與尺寸設計難度大;
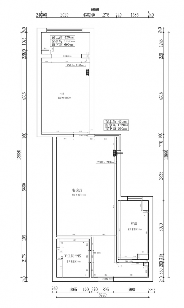
原始戶型圖
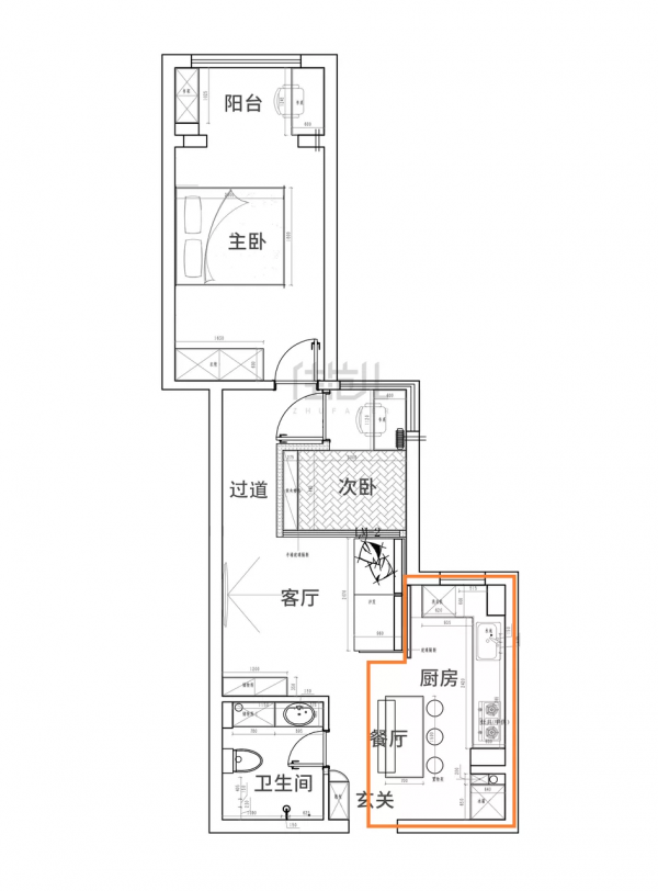
戶型改造:
● 保留採光的前提下,新增臥室採用半牆的玻璃推拉門,將陽光引入客餐廳;
● 拆除廚房的部分輕體牆面結構,廚房開放式設計,客餐廚一體,這樣並沒有因為新增的臥室讓空間更壓抑;
● 將家核心區域放在餐廳,著重設計餐廳與廚房客廳聯動;
● 入戶位置特殊,在鄰側牆砌築一通頂儲物櫃作為入戶鞋櫃;
● 空間位置有限,放棄晾曬區,用簡易晾衣架和洗烘一體的洗衣機來解決;
改造後原先家裡的部分傢俱因為尺寸問題,就沒用繼續延用下去,沙發、茶几和床頭櫃等傢俱都重新訂購。
房屋位置:北京海淀區
房屋面積:套內67㎡
房屋戶型:2室1廳1廚1衛(改造後)
裝修套餐:顏值革命4.0 A系列
全部花費:15w左右(硬裝 + 傢俱家電軟裝)
常住人口:3人
設計經理:趙美佳
01
入戶玄關
因為原始戶型的關係,勉強算是玄關吧,一進門左手邊就是衛生間,所以進衛生間難免與玄關有接觸,意味著玄關落土的功能無法發揮。
根據牆面縱深尺寸做了一處通頂儲物櫃,儲物櫃設計的非常仔細,決定著重於“收納空間”的問題來進行規劃設計。
考慮到進門有隨手放東西的習慣,於是設計了中間一處凹槽做開放的“隨手區”。
以隨手區為劃分,鞋櫃設計了上下兩層:下層都是簡單的可移動隔板,方便調整季節不同的鞋,比如靴子、高幫;上層則是包包和鞋盒,換季不需要的鞋子和基本不穿(高跟鞋、兒童雨靴)的鞋子。
02
餐廳
閒聊時D小姐談到入住後的小變化:"因為是從事通訊工作,之前的家裡還有個單獨辦公的書房,忙起工作總是看不見人,而現在我們晚上辦公的同時還能一起輔導孩子作業,不經意間拉近家人的距離。"
原始戶型中,餐廳與廚房之間本來有一堵牆,拆除之後,做了開放式廚房,餐桌搭配4把細腿餐椅,簡約有氣質!
餐桌看向客廳
03
廚房
L型的廚房,合理的動線安排,讓廚房更加人性化;白色的吊櫃+原木紋地櫃,搭配著白色大理石的操作檯面,讓空間看起來更乾淨更有質感!
因為日常的飲食習慣問題,清淡飲食為主,煎炒烹炸的情況少之又少,油煙問題不再是問題;親朋好友饋贈的小家電,空氣炸鍋、自動炒菜機、咖啡機和破壁機等等也完全應付的過來!
整個檯面也是乾淨整潔,常用的調味品、碗筷刀叉也都藏在櫃中!
廚房一旁就是冰箱,冰箱內部存放著酸奶和一些簡單的速凍食品;根據冰箱的精準尺寸定製了小的邊櫃,收納一些雨具和維修工具箱。
冰箱旁的壁畫
04
客廳
兒童房借用了大部分客廳面積後,客廳整體略顯侷促,重新定製小尺寸沙發和茶几。
沙發旁邊的簡易小書櫃,上可放物,中可藏書。(自從孩子上了小學,書是一堆又一堆)
客廳的吊燈是主要光源,配合著兒童房的玻璃窗、廚房的玻璃隔斷,讓空間更通透更明亮,沒有一絲壓抑的感覺。
平時沒有朋友竄門拜訪的時候,將茶几與地墊都會往沙發內部“集合”起來,將空間讓出來留給通行之用。(吊燈看起來比沙發都大)
小戶型中儲物空間一定做足,電視一旁的牆面築起一組通頂儲物櫃。
小朋友越來越大,東西也越來越多,原有的儲物空間將嚴重告急,最大限度的利用犄角旮旯,改造成通頂儲物櫃。
整理完房間也瞬間清爽了好多,瞬間幸福感爆棚。
從客廳看向餐廳
05
過道
由於新增兒童房的原因,多出來一處通行的過道,一側牆面裝訂富有藝術感的壁畫,一側貼上的是地球地圖。(缺少一些星星點點的群島)
鏡子的使用,讓初入過道時,有一種進入畫廊的感覺,也使得視覺縱深感。
鏡中“六連畫”
06
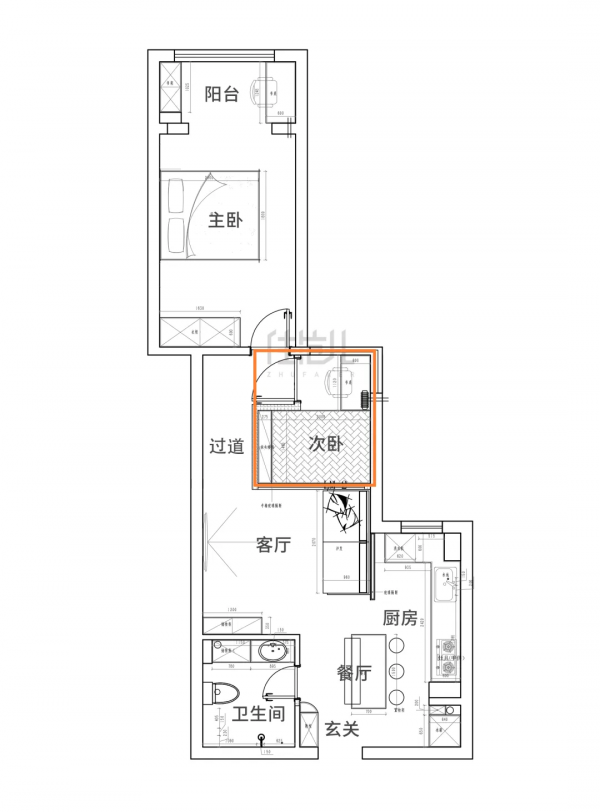
兒童房
兒童房的設計佈局就很簡單直接,滿足讀書寫作業+休息+彈琴需求!
將採光最好的位置留給孩子的讀物寫作業,可惜房間太小了,實木書桌的尺寸只能選擇小規格的。
因空間有限制,沒有選擇帶一兩組抽屜的書桌,將書桌下的空間極大可能的大一些,讓孩子在讀物寫作業的時候也不拘束。
床的選擇而是將尺寸與收納考慮在前,床下要有一定的收納功能,床尾還能夠預留空間擺放一架鋼琴。
鋼琴的選擇啊,更多是一種興趣愛好的培養,並沒有強要求一定掌握多高的層次,挑選到這款極窄尺寸的鋼琴也是“跑遍了北京城”。
鋼琴尺寸
小巧的鋼琴特寫
07
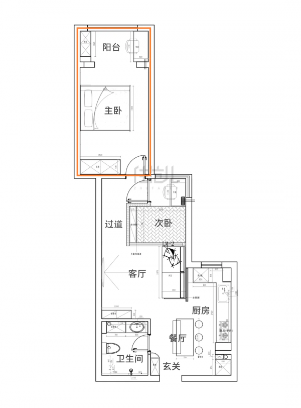
主臥
主臥的設計上相對簡單,胡桃木的地板讓空間更沉穩,櫃子做了啞光漆櫃門,無把手按彈式開啟方式設計,看起來像和牆面是一體的,讓整個空間更放鬆。
主臥的大床,來自之前的順義家。一張美式雙人床佔據了空間絕大一部分空間,隨著日子一天一天的度過,很多傢俱都會進行更新迭代。不管怎麼說,大床睡起來絕對舒服!
門口左手邊是一排一字型白色通頂定製櫃,小空間大儲物。
臥室以白色為主色調,讓空間更亮一些更顯大一些,床頭兩側安裝了對稱的古銅色金屬壁燈,中央是一盞光線柔和的羽毛燈,床尾一組軌道燈。
女主D小姐的生活分享:屋內多少還是有些灰塵,擔心羽毛等上落灰變髒,可以在換洗床單之前,先用雞毛撣子浮塵就好。
家中只有一個陽臺,但不妨礙它做家務(簡易晾衣架藏在了窗簾的後面)與辦公的需求。
利用牆體一邊長一邊短的結構,將書房區設計在較長一側,提升整個使用空間。另外一側做了一處通頂與牆面平齊的衣櫃增加儲物。
在陽光充足的時候,悠閒的坐在在搖椅上曬曬太陽,真實忙碌生活中,難得的放鬆。
08
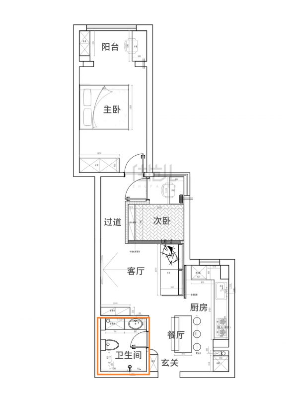
衛生間
衛生間沐浴區與洗漱區進行了乾溼分離,選擇了玻璃作為隔斷,保證了整個空間的通透性。
衛生間儲物設計是浴室櫃+定製櫃的組合,大抽屜與櫃子裡塞的滿滿當當;頂部與底部都預留插座,分別給熱水器和智慧馬桶蓋使用。
(溫馨提示:智慧馬桶和智慧馬桶蓋都要先把電源預留出來;水電前確定是牆排還是地排馬桶)
淋浴房旁邊就是洗衣機(洗烘一體),洗澡時換下來的衣服隨手就洗了,節省了時間和精力;上下水也很方便,畢竟衛生間早就預留各種管道。
靠牆安裝了小揹簍和毛巾架,不怕用完的毛巾潮溼發臭沒地方存放。
一個家從不那麼完美,逐漸變成理想中的樣子,是需要居住在裡面的人對各個細節的用心,設計師的耐心溝通和完善設計,以及靠譜的施工團隊添磚加瓦來助力。
每一位母親為孩子操碎了心,每一父親都為母親提供精神與物質上的支援,無論是大房子的舒適生活,還是小戶型的學區房,都是對孩子存粹的愛!
本期案例分享到這裡,就全部完畢了!拜了個拜,我們下期真實人家再見~
喜歡這個改造就點個【贊】再走哦 !也歡迎在評論區留下你的想法~
