今天的這套房子是位於北京朝陽區的一套老破小。
Q先生買的這套建面積55㎡的學區房,完全符合“老破小”。小區的配套設施與周邊還是非常不錯的。
接下來我們一起看看這期的“主角”,如何“老炮”換“新顏”!
原始問題:
● 原始戶型中,衛生間是不足2平方,洗澡都成問題;
● 房子位置在北京三環公路旁,車水馬龍的噪音;
● 小小的廚房,容納不下很多常用電器,家電的選擇受限;
● 老破小的詬病,儲藏儲物空間需要合理規劃與設計;
● 門廳玄關狹小沒有足夠的收納空間;
● 陽臺沒有下水口,無法將洗衣機安放其中;
原始戶型&原始戶型尺寸
對於生活品質有一定要求的Q先生,生活需求與裝修需求,儘可能都在裝修設計中實現了。
改造方案:
● 拆改原始戶型佈局,增加衛生間可用面積,實現三分離;
● 公共空間精細的規劃後,調整空間功能屬性,將餐廳和辦公區完美實現;
● 主臥與客廳空間都增加通頂儲物櫃,滿足收納需求。
● 冰箱儘可能放在廚房裡,讓客廳不擁擠。
● 陽臺作為男主的辦公區,安靜愜意,陽光充足;
平面佈置圖
房屋位置: 北京朝陽區
房屋面積: 建面55㎡,套內43.8㎡
房屋戶型: 一室一廳一廚一衛
裝修套餐: 顏值革命4.0 A 系列
全部花費: 16w(硬裝12w+軟裝家電4w)
常住人口: 1人
設計經理: 趙美佳
傢俱提供: 自購+宜家
01
玄關
玄關的區域性圖
入戶的玄關,進入眼簾的灰色水泥牆面做為空間主調,狹小的玄關空間沒有用通頂櫃的設計,而是採用靈活、儲藏功能全面的小型收納架做替代,讓原本壓抑的空間多了一點呼吸。
入戶門右側的牆面上,安裝了一個多功能衣架,放一下外套、小揹包、健身包都可以!
防止未來的日子掛的物件會把牆面劃傷或者染上顏色,內部也做了相同的水泥牆面(刷的水泥漆),也形成小小的呼應。
02
廚房
廚房的區域性圖
不足4㎡的廚房,真的是老破小的詬病之一。老話說得好,麻雀雖小但五臟俱全啊~
U型櫥櫃也將洗切炒的區域,給拿捏死死的,灶具的位置是向左側移動了將近10公分,檯面的空間就節省了一部分,這樣冰箱也在廚房有了安身之處。
肯定看到這裡啊,你們會有想問:“為啥這麼小的空間將冰箱放進來呢?不會放到其他空間嗎?”
其實我們的屋主朋友對於噪音是比較在意的,放在廚房也是最佳方案,如果對冰箱放置位置有不同思路的小夥伴兒在留言區留言我們一起來聊聊!
由於櫥櫃的尺寸關係,洗碗機也是超薄款,做飯的炊具都是小尺寸的,增加開放格與掛籃,更好的利用牆面空間。
03
衛生間&淋浴區&洗漱區
原始衛生間佈局
原始戶型中,淋浴與馬桶相擁在不足2平方的小空裡,非常不方便。
改造後-衛生間佈局
改造後,淋浴區、馬桶間與洗漱區做到了三分離,各個空間面積得到提升。
衛生間(馬桶間)
不足2平方的空間,放置一個常規的智慧馬桶,馬桶旁放置了一個20公分的多層儲物架,一些生活物品有了放置平臺。
懸空而做的平臺上放置一些藝術氣息十足的飾品與香薰,平臺下方裝有感應燈帶,讓小小的空間不再壓抑。
可愛的小黃鴨,在我們洗漱區的最中心的位置~
原本空間不充裕的洗漱區,要裝下一個洗衣機和安裝一個合適高度的水盆。何嘗不是一種挑戰!
改造後-幹區
超薄洗衣機是此空間中的首選,一體式臺下盆洗漱臺將空間做好了規劃。
細心的Q先生逛家居生活商場時,巧合的發現尺寸完美的衣物收納籃與小型浴室櫃。
原本屬於儲物的小空間,改造成了淋浴區。
改造後-淋浴區
小戶型中,能做到三分離的非常不容易,但是不足1.5平方的淋浴區,浴室門開合所掃過的空間也是在日常使用中要騰出空間的。
如果可以將平開門更換成摺疊門是不是會更好一點呢~(留言區可以說一說您的看法)
04
客廳
改造後-客廳佈局圖
原始的空間為臥室,設計師結合業主需求更改了空間功能屬性。
改造前
改造後
將鄰近窗戶的位置,作為餐廳區,用餐的同時不忘欣賞窗外的景色(樓層位置很好,窗外並沒有被大樹所遮擋)
好看的白色玻璃櫃中放滿各種精緻的玻璃酒杯,期待有朋自遠方來,把酒言歡一醉方休的情景。
把酒言歡也少不了下酒菜,餐邊櫃中陳列著好看且精緻的器皿,更多是用來藝術欣賞。
客廳的儲物空間也是必須要有的,好看的純白通頂大衣櫃與空間更協調。
衣櫃內部,準備了一些掛衣區,一來掛起來的衣服一目瞭然,找衣服方便,再就是衣服疊放容易起褶皺,掛起來也可以避免這個問題。
板材上有均勻的孔洞,可以後期根據不同的需要來調節內部結構。
05
臥室&陽臺
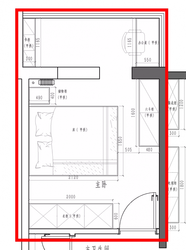
改造後-主臥&陽臺佈局
拆掉原有的窗體,讓陽臺與室內融合在一起,通透感更強,室內採光更佳,視野中橫向深度更好空間感覺更大更寬敞一些。
改造前
改造前,陽臺還保留著80年90年代的封閉式陽臺的樣式,空間的呼吸感通透感不足,沒有將採光完好的引入室內。
改造後
改造後,拆除了窗體,在陽臺和臥室之間,用大地色窗簾作為軟性隔斷,有效分割了空間,巧妙的設計獨具風格。
為了滿足辦公需求,將採光很好的陽臺空間改造成辦公區,陽光充足,相對安靜的陽臺,完美符合Q先生的需求。
主臥較為柔和的設計,背景牆沒有過多的造型,主要是以淺灰色的牆色+功能吊燈加以裝飾,顯得簡潔大氣。
一組軌道燈凸顯出現代極簡風,柔和的,散發著光暈的燈光給簡約的臥室空間增添了些許生活的氣息。
06
生活藝術角
更好的生活源於對生活的熱愛,一種敬重和熱愛生活態度,對舒適與熱情的追求。
最後分享此案例中的生活藝術角,也希望我們自己也能帶著發現美的眼睛,去探尋就在身邊的美!
07
好物清單&全景360
|
好物名單 |
品牌 |
|
紙是鍾 |
Pupupula |
|
實木創意壁掛衣帽架 |
杳初森林 |
|
日式圓形大餐桌 |
豎圓木作 |
|
餐椅 |
Pupupula |
|
現代輕奢餐邊櫃 |
失物招領 |
|
海爾超薄洗碗機 |
海爾 |
|
松下自動製冰冰箱 |
松下 |
|
茶几 |
Pupupula |
|
小笨鍾 |
Pupupula |
|
皮沙發 |
木陌 |
|
約斯旺羊毛地毯 |
宜家 |
|
書桌 |
言行木作 |
|
薇爾床墊 |
夢百合 |
|
PAX 整體衣櫃 |
宜家 |
|
LG 超薄洗衣機 |
LG |
|
一體式人造石臺盆 |
德國伯曼科塔全衛定製 |
