專案資訊:
專案地址 | 成都市雙流區
面 積 | 125㎡
風 格 | 混搭
戶 型 | 三室兩廳兩衛
裝修金額 | 約35w(總花費)
設計與施工 | 十六月工作室
本期案例是一個三代同堂的家,房屋的女主人“遊遊”性格開朗,喜歡目標導向型的做事方式。在設計初期,她以居住需求為導向,做了非常清晰且細緻的梳理,因此整個設計的溝透過程都非常順暢。敲定方案後,她以效果為導向,和設計師不斷交流,一點一點填充,最終打造出自己最想要的居家效果。她喜歡逛建材市場,甚至享受參與選品的每個過程,用她自己的話來說“整個裝修過程並沒有遭遇鄰居所說的心累或被坑的情況,甚至還有樂在其中的感受”。
或許只有懂得自己的人,才會活的如此明白、爽快。一切的結果都如她所願,直至最近,我們依然能聽到她興高采烈的分享:“還好,我們家是別人口中的別人家”…
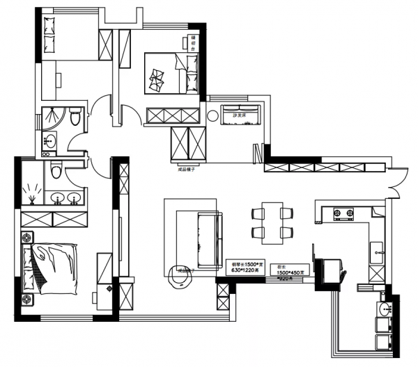
▷平面圖
客戶需求&原結構分析
1、這個房屋要滿足三代同堂的日常起居生活,根據每個人的愛好需求保留出相應的空間。
2、業主對於房屋的風格期望是一定要有溫馨感。整體預算儘量往電器體驗和居住舒適度上考慮,比如中央空調、地暖、洗碗機、智慧馬桶、洗拖一體機等。
3、希望符合收納和清潔的習慣,規劃好每個物品的放置區域,儘量減輕家務的煩惱。
4、原始戶型有四間臥室,客廳處最小的臥室在過道邊上,這部分的空間很浪費,希望能有好的解決方案。
調整方案&解決方案
1、將套四改為了套三,保留了三間臥室。打掉原戶型最小臥室和客餐廳之間的牆體,將小臥室原始門洞處安裝定製的儲物雙面高櫃將門洞封起來,這樣原戶型浪費的走廊空間用簾子隔出一個小小儲物間,利用起來。
2、硬裝設計一切以簡單、實用為主,只在區域性做了一些小造型,靠軟裝和色彩的搭配來實現風格需求和氛圍感。
3、每一個區域的儲物都根據不同需求做了分割槽規劃,更貼合業主的使用習慣。
4、目前三個臥室已經能夠滿足一家人的需求,並考慮到以後還能將這個最小的臥室打造成一個客臥的區域,就將這部分空間設計成可變區域。
01 / 入戶
入戶定製了總長4米的儲物櫃,最右側是鞋櫃區,檯面用來放日常的零碎物品,底部預留了常鞋位。左側從地到頂的櫃體全部用於儲物,整個入戶區域的櫃體,內部所有的層板都是做的活動板,隨時可以根據儲物需求進行內部結構調整,非常靈活。
02 / 餐廳
客餐廳一體化,把客餐廳作為一個連貫的大空間,僅用沙發來作為軟隔斷,能夠相互借景,因為房子的採光並不是太好,這樣的處理方式也可以實現客餐區之間的光源共享,提升空間的通透感和延伸感。
全屋地板偏灰調,仿魚骨拼的紋理讓空間有了更多變化和層次感。餐邊櫃旁邊的位置以後會用來放置女主人的鋼琴,位置預留得剛好。
03 / 客廳
客廳和陽臺之間是承重牆,用了櫃體為了讓整體感更強,陽臺直接做了內嵌的櫃子,弱化兩個區域之間的疏離感,櫃體選擇了入戶櫃同樣的顏色形成了呼應。電視牆用奶白色和髒粉色做了拼色設計,不對稱的比例會讓空間顯得更加跳脫,暖色調也會顯得更加溫馨。
電視櫃的抽屜都做了反彈設計,右側的成品展示櫃正好跟門洞造型相呼應,中間的隔板設計可以用來擺放家裡的小裝飾,滿足了業主的陳列需求,並且絲毫不會讓人覺得浮誇。
考慮到客廳會是日常生活中和孩子互動最多的地方,再加上孩子成長過程中會添置一些與兒童相關的物品,因此選擇客廳傢俱以便捷和可移動性為主,這樣給小朋友的成長空間帶來更多的可能性。
過道做了拱形門洞設計,在硬裝造型偏簡約的情況下,這樣的小心思可以讓空間顯得更加靈動。拱形門洞給人的視覺效果會更顯修長,對空間也有豎向的拉伸效果。
04 / 陽臺
客廳陽臺的左側,打造了一個工作區,嵌入式的櫃體加上書桌,儲物和辦公寫作雙雙get。工作區並不建議設定在採光環境差的位置,他們家由於樓層較矮,客廳陽臺作為最大的自然光線接觸區,也是設定工作區比較好的選擇。
05 / 可變空間
原始戶型中最小的這個房間,最終設計成了一個可變空間。業主對於這個區域的考慮也有很多功能上的想法,所以現階段我們僅做了嵌入式的櫃體,簡單佈置成一個休息區。未來這裡可以作為一個運動空間,也可以增加隔斷,安放一張沙發床改成臥室。
陽光剛好從百葉窗的縫隙中灑進來,在這裡會客喝茶聊天都是很愜意的事。一個人在這裡閱讀也會覺得很舒坦。
06 / 主臥
主臥作為私密空間,我們在背景牆上選擇了更加個性化的色彩,乳膠漆選用了業主喜歡的藍色,頂部也做了延伸,這樣視覺感受會更加有趣,而且可以弱化吊燈的電位。羽毛燈和床頭燈的輕盈感,與背景牆的深邃感相互碰撞,卻又十分和諧。
為了儘可能的滿足收納需求,業主提出了分割槽收納的想法。最終定製衣櫃內部全部設計成了掛衣區,床尾處添置了一個成品的鬥櫃,專門用來作為疊衣區,不同的衣服分開收納,方便使用而且能把空間利用的更好。
07 / 次臥
這個房間是為家裡的老人準備的,阿姨有縫紉的愛好,日常會縫紉一些小東西。定製衣櫃完全能夠滿足老人的收納,衣櫃上方還能放棉絮或者日常用不到的大物件。
現在放著粉色儲物格的位置後期是用來放置縫紉機的。阿姨在自己私密的空間,靜下來做自己喜歡的事,不受打擾,會更加專注和享受。
08 / 兒童房
兒童房的床之所以要靠窗放,是因為床尾臨窗的位置有一個立柱,一米八的床放進去剛好貼合,沿著立柱齊平做了衣櫃,櫃體下半部分設計的是掛衣區,這樣就可以把全部的空間都利用上,不會造成浪費。家裡的小公主目前只有2歲,非常需要活動空間,所以兒童房做了部分留白,讓孩子有玩耍的區域,等以後再大一點,就買一個可調節的學習桌放進去。
09 / 廚房
廚房地櫃的門板用到了復古的深藍色,與吊櫃的白色相襯托,不會顯得太厚重,並且空間會顯得更加明亮,門板造型略帶復古感,正好跟餐邊櫃形成呼應。
10 / 主衛生間
主衛做了雙臺盆設計,這樣可以滿足工作日早上兩個人同時洗漱節約時間的需求,檯面加長,櫃體加寬,高效且功能強大。浴簾簡單實現了乾溼分割槽,不佔空間,而且價效比超高。
11 / 次衛生間
次衛的空間非常有限,無法安置淋浴房,所以後期業主添置了一個“L”型的浴簾,避免淋浴區的水濺到洗漱櫃。
12 / 費用清單
