如題,北京早就不以環線論房價了。咱們拿新房比比,環四環一圈,去年我還能在舊宮以5.4萬一平買房,後來南四環,要6萬多,西四環8萬,北四環居然10萬+...
一條環線定價這麼天差地別嗎?!
看了看這兩年的供地,不得不說,還真是!
四環還是那個四環,可是上車的難度也在增加...
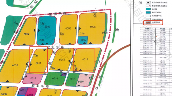
最早四環以內,10號線泥窪站旁邊的限競房金融街融府均價6.66萬,82平總價500多萬。
馬上同片區的新地,指導價賣10萬!
買融府的,一平淨賺3萬多...
四環外,最早的豐科三兄弟6.7萬,2019年入市,去年也差不多賣完了。
這中間有供地結構的改變,限競房退場,純商品房迴歸;
同是四環外,大瓦窯8萬,西紅門6.4萬以及五環外稻田6萬的助推。
這麼一比:自然三兄弟更值一些呀!
現成的配套,好的位置,加上價格”合適“促進了購房者入場:
要產業有產業,要地鐵有地鐵,之後也會建還不錯的學校。走著去萬達、天壇三甲醫院、一站地鐵花鄉奧萊村,這幾點優勢幾乎掩蓋了一切大小缺點。
那麼四環其他地方怎麼樣?咱們東南西北這個順序說說。
順便提醒,透過小窩新房-購房返現平臺買房,本文所述的新盤都可以獲得1-5%的返傭哦;不缺錢的同學,可以直接找開發商或綠中介哈。
王四營:7.1萬/平
規劃:中關村朝陽園垡頭園區
本地上歲數的都知道北京焦化廠,始於環保,也停於環保。未來,這裡還會建設一個工業主題公園,概念設計圖如下:
在最新的朝陽區分割槽規劃上,垡頭定位了一個產業區,目前望京板塊的雛形已經有了,垡頭這塊未來還有一定的發展空間。
而且,朝陽區給王四營的定價相對比較低的,崔各莊8.8萬,東壩的8萬,不同於這兩個在五環外有產業或是有概念的片區,四環外的垡頭,居然還沒有五環外的貴。
首先,這片是塊白地,規劃配套確實需要落位速度,周邊的居民集中了,基礎的配套也會慢慢配齊。
另外,不少人可能擔心對老廠對土壤的影響,這一點根據相關第三方的所有檢測報告顯示,焦化廠治理修復全部達到了環保標準,空氣中的異味也日漸消失。具體可以查詢相關新聞。
當年北邊百子灣公務員小區廣華新城和官悅欣園,腳下的地可是翻了無數遍達到了標準才開始蓋房的。
第三,這兩年朝陽人買新房也好,買次新,均價怎麼都得7-8萬,所以7.1萬的均價不算特別高。
加上CBD周邊,朝陽東、南邊太久沒出新房了,新房供應太過緊俏,朝陽剛需能買得起的除了隔壁的豆各莊,就是這裡了。
這裡面最先入市的保利錦上已經開盤了,主打改善,800萬起,據說一期賣的還不錯!保利的品牌與品質還是很厲害的。
朝陽剛需太難了!
確實是有點殘酷:你手握800萬,別的地算改善,在朝陽,可以算是“剛需”了。
西紅門:預期已達6萬+
靜待19號線南延
與4號線一樣,19號線也是一條貫通南北的大動脈,分兩期建設,一期北起海淀牡丹園,南至豐臺新宮,全長約22.4公里,設10座車站,其中換乘站8座。
其二期規劃一直沒有明確,目前能基本確定的有兩站,一個是沙河高教園設站,另一個是大興西紅門設站。
此前,在規委網站公示的西紅門鎮東區的規劃圖中顯示,19號線在西紅門鎮東區設站,雖然為公示稿,不出意外的話,大機率不會動了。
作為聯通南北的大動脈線,19號線連線大興南部,豐臺科技園、直通金融街,向北又可延伸到沙河高教園,未來開通後將無限放大沿線板塊尤其是西紅門的周邊利好。
兩條地鐵加持,京開高速從板塊穿過,往南還有五環,板塊內的交通體系已經非常成熟,而且西紅門雖屬於大興,但臨近豐臺總部基地等板塊,隨著城南計劃的不斷推進,西紅門東區配套建設的完善,19號線二期落地,西紅門定將迎來發展蝶變,板塊價值提升一個階梯。
下圖劃紅框的兩塊地,指導價是6.6萬。而之前的熙紅印和熙悅宸著在其北側
目前西紅門兩兄弟(熙悅宸著、熙紅印)還在售,房源比較多,89平三居總價大約520萬,首付208萬起。
這也是目前五環內僅存的限競房了...
同是四環外,石景山的8萬vs豐臺的8萬
先說說石景山,衙門口的新地之前,石景山五環外就已經站上7.5萬的高位,這次四環內近8萬的取證均價,也讓大部分人直呼:上不起。
長安悅璽的產品也是偏改善的,97平打底,跟之前的古城的長安悅璽一樣,也是打造的新中式產品。
目前周邊屬於白地拆遷的模式,因此未來還會有更多新房入局,自駕很方便,往東去市裡往西去沿線的商業都很方便。
再來說說豐臺:
年底14號線全線通車後可謂打通了東西沿線的“任督二脈”。西邊沿線的購房者去望京、CBD再也不用轉地鐵了,東邊去麗澤天街購物也可以直達了。
對於麗澤這波購房者,西邊有不少豪宅可以選,國譽萬和城以及首創天閱山河都是去年高品質豪宅中不論是品質、物業都還是不錯的。
不過對於剛需來說,西貴西貴,還是太貴了。
當然,北邊就更別提了,四季青的倆豪宅被海淀人搶光後,不少人都準備搞五環外的樹村以及北四環的京昌路地塊了,北沙灘地鐵站北邊,難得的住宅用地。
再次提醒,透過小窩新房-購房返現平臺買房,本文所述的新盤都可以獲得1-5%的返現。
別看10萬+,海淀人可是很有錢的!
總結來看:
是的,同是四環,差距就是這麼大。
建議大家買房,在條件允許的情況下,大方向可以確定核心片區、產業交通學校規劃好的片區,中關村、望京、海淀山後、亦莊等三城一區這些產業區等。
