【魯能格拉斯小鎮六期】
【在售戶型】
疊拼:
1. 上疊:297-388平米,原價:1430萬-2220萬
2. 下疊:248-340平米,原價:1500萬-2100萬
合院:
1.小合院:368㎡-387㎡,原價:2160萬-2300萬
2.大合院:443㎡-453㎡,原價:2600萬-2800萬
3.河灣景觀合院:442-493㎡,原價:3000萬-3500萬
六期二組團236套疊拼+236套合院,交房時間:2022年10月
六期一組團104套疊拼+12套合院,已售罄
樓間距:23米
產權年限:70年
開發商:魯能集團
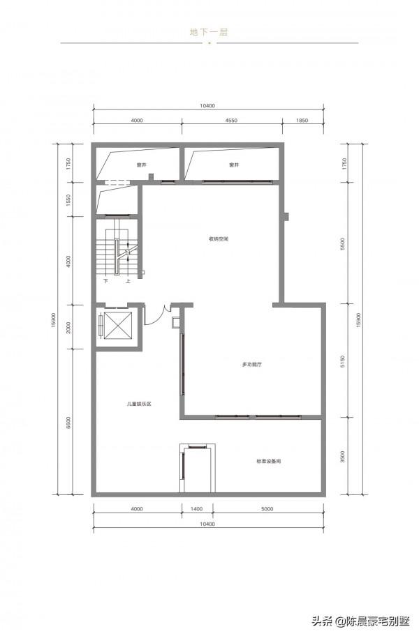
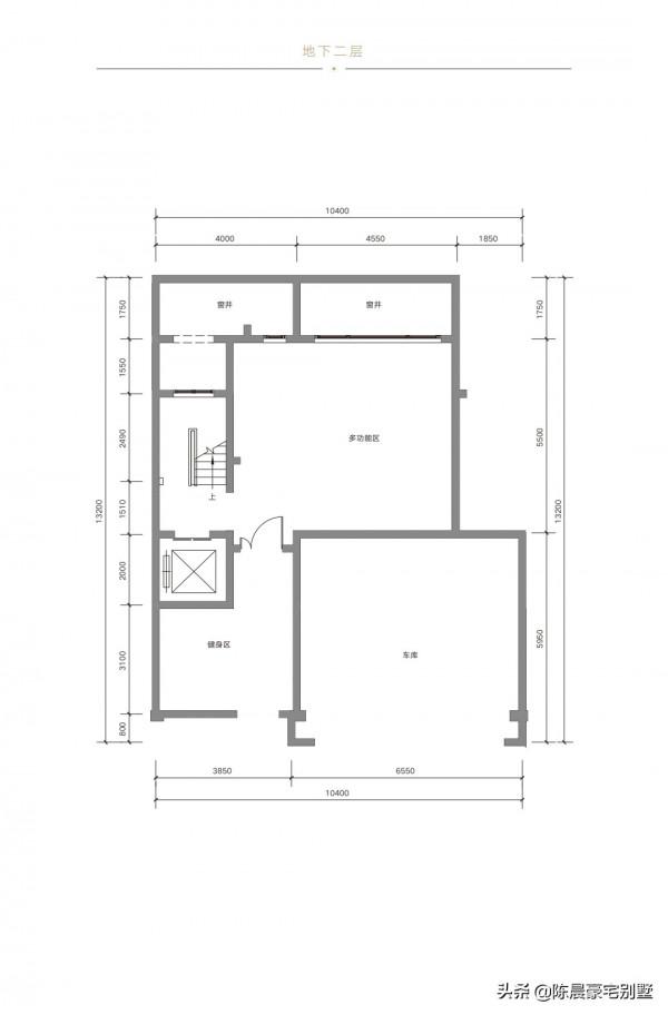
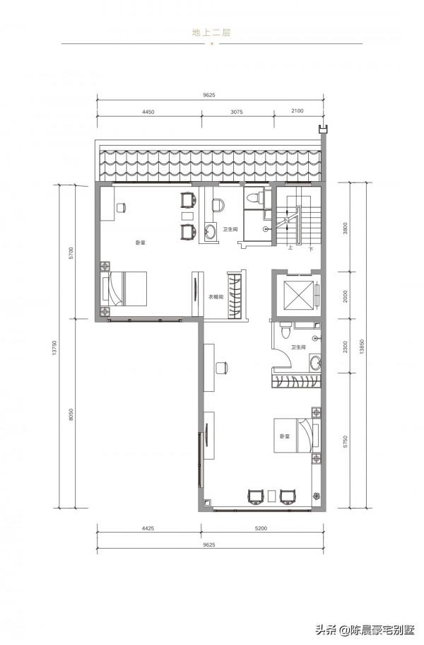
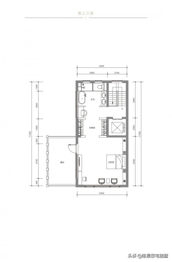
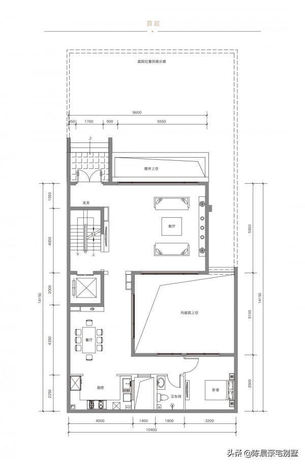
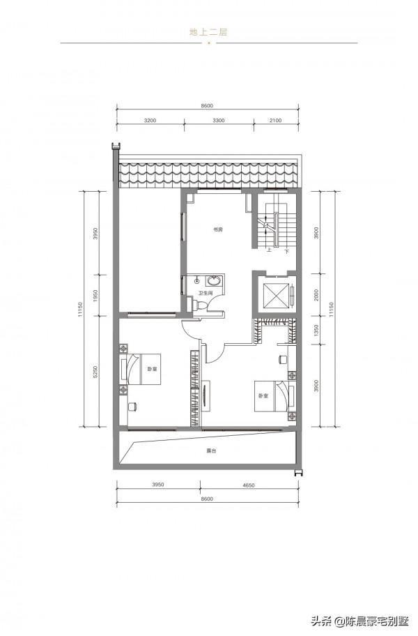
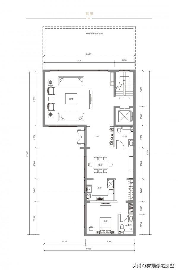
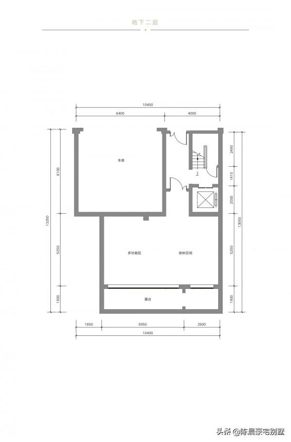
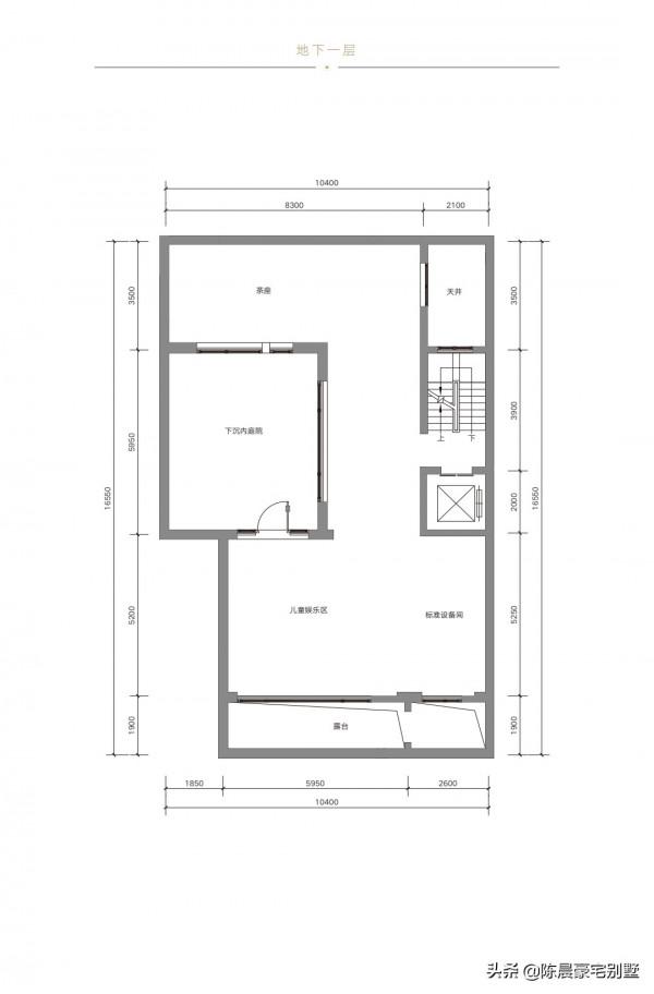
平面圖:
上下疊戶型圖:
疊拼樣板間:
合院戶型圖:
合院樣板間:
園區圖片:
