買房之前,需要我們先在心裡繪製一個「雷達圖」,用交通、價格、品質、學校來考量樓盤。
我們的樓盤測評系列,來自專業測評師的現場踩盤。在你做出買房決定之前,我們用最理性的踩盤行為,去評測、去挑剔。5分鐘閱讀時間,讓樓盤真實情況呈現在眼前。接下來,本系列會陸續覆蓋北京全部新房,敬請期待。
今天測評的樓盤是
大興新城 | 中駿金輝·未來雲城
|
銷售物件 |
符合北京市限購政策的購房人群 |
|
限購政策 |
(1) 京籍家庭 · 已婚家庭,名下無房,則可購買兩套住房 · 單身未婚或離異人士,名下無房,則可購買一套住房 (2) 非京籍家庭 · 在京無住房且連續60個月(含)以上在京繳納社保或個人所得稅的非京籍居民家庭,可購買一套住房 · 持有效《北京市工作居住證》可與京籍家庭享同等購房資格 |
|
產權比例 |
購房人購買並持有住宅100%產權份額 |
|
轉讓機制 |
購房人取得不動產權證後可隨時轉讓所購房屋 |
|
出租收益 |
出租全部收益歸購房人所有 |
樓盤名稱:中駿金輝·未來雲城
開 發 商: 中駿+金輝
產品均價:約5.5萬/m²
產品總價:約510萬起/套
產品戶型:96m²三居、121m²/151m²四居
總 戶 數:937戶
樓 棟 數:17棟
車 位 比:1:1.2
梯 戶 比:1梯2戶/2梯2戶
容 積 率:2.2
綠 地 率:30%
房屋屬性:純商品房
交房時間:預計2024年6月
樓盤地址:地鐵4號線黃村火車站西南側約700米
產品公佈歷程
•2021年 5 月,中駿+金輝拿地
•2021年 8 月,案名公佈、產品曝光
•2021年 11月,首期開盤
>>>專案區位及周邊配套
>>>戶型分佈
亮點一:雙軌並行,交通便利
專案臨近地鐵4號線和京雄城際鐵路兩條軌道線路,交通便捷。乘坐4號線可與10條地鐵線路互動換乘,暢達北京南站、西單、中關村等地。乘坐京雄城際鐵路向北可達北京西站,向南可達大興國際機場,4站直抵雄安新區。
亮點二:與公園為鄰,生態環境優越
專案西側約2公里處,即為在建的大興濱河森林公園。該公園為北京市“城南行動計劃”的重點專案之一,建成後將成為佔地逾8000畝的城市綠肺,生態環境宜人。
區域規劃:
自2010年北京開始推動“城南計劃”,今年7月,北京已經官宣啟動第四輪城南計劃,預計投資規模達5900億。從定位來看,四輪計劃把南城從原來的“外省市人口聚集地”變成“首都功能集中地”,推動外來人口和非首都功能的“大疏解”。而大興作為北京和雄安新區的必經之路、大興國際機場的所在地,是城南計劃的重點發展物件之一。
大興區將打造“一軸、一心、三城、三帶、多點”的空間結構,未來大興將著重強化“三城”的引領作用,推進區域協同發展。區域內計劃建設生態宜居、民生完善的大興新城綜合服務保障中心,打造產城融合、制度創新的亦莊新城科技創新引領區,以及塑造對外交往、區域協同的臨空經濟區國際交往新門戶。
>>>“三城”即大興新城、亦莊新城(大興部分)、北京大興國際機場臨空經濟區(北京部分)
板塊規劃:
根據大興分割槽規劃,大興區政府所在的黃村及南部地區被統一定義為大興新城板塊,主要由“一心、六片、三組團”組成。規劃中明確了以專案所在的義和莊板塊為核心,涵蓋周邊六個片區三個組團的區域將成為大興區未來重點發展的地區。
基於原有的大興城市發展空間,大興新城率先佈局三大產業基地:生物醫藥產業基地、新媒體產業基地和京南物流基地。處於三大產業環繞之中的義和莊板塊,享有京雄城際鐵路、黃村火車站交通樞紐、S6號線等諸多利好,地鐵、城鐵、高鐵三軌交匯,是聯通北京與雄安、京津冀的黃金樞紐。
· 周邊交通 ·
軌道交通:專案1km範圍覆蓋地鐵4號線義和莊站和黃村火車站站。4號線作為北京南北交通大動脈,途經北京南站、西單、中關村、圓明園等地,可與10條地鐵線路互動換乘,快速通達國貿CBD、麗澤商務區、望京等區域。
此外,專案東南側約400米處即為京雄城際鐵路的第二站——北京大興站。從該站出發,往北1站即是北京西站,向南1站可達大興機場,4站直抵雄安新區。
公交:專案500m範圍內涵蓋北京大興站、永華實驗學校站、錦華園小區站等5個公交車站,可乘坐興12路、興65路、興81路等多條公交線路。其中,乘坐興12路可直達西紅門商圈,乘坐456路可達麗澤金融商務區。
自駕:從專案出發,經京開高速、南五環等城市主幹道,向北可達麗澤商務區、西單商圈。此外,沿興華大街向北行駛約6km可達西紅門商圈。
· 周邊教育 ·
專案周邊3km範圍覆蓋多所小學、中學,教育資源較為豐沛。距離專案最近的是九年一貫制的永華實驗學校,步行約400m可達。此外,專案東北側1.8km處,即為大興區唯一的市級重點中學——大興區第一中學。
據悉,專案南側為規劃中的幼兒園用地,具體引入的教育資源暫未可知。
· 周邊醫療 ·
專案周邊3km範圍覆蓋:
三甲醫院:中國中醫科學院廣安門醫院南院區(約3.1km)
綜合醫院:大興人民醫院(約1.4km)、北京友愛醫院(約2.2km)、北京仁和醫院(約2.6km)
此外,專案1.5km範圍內涵蓋多家社群衛生服務中心,可滿足業主的就醫需求。
· 周邊公園 ·
專案以西約3km範圍內,為北京市“城南行動計劃”的重點專案之一的大興濱河森林公園(在建),佔地近8074畝,分為南北兩個園區,北為清源公園,南為念壇公園。
· 周邊商業 ·
專案周邊3km範圍覆蓋:
泰禾裡購物中心(建築面積約5萬平,約740m)、大興大悅春風裡(建築面積約10萬平,約1.8km)、百聯清城國際購物中心(建築面積約5萬平,約2.1km)龍湖時代天街(商業區建築面積約28萬平,約3.7km),滿足日常購物需求。
>>參考資料:合生匯(北京)建築面積約31.7萬平
文中關於配套距離描述,根據高德導航測距
僅作參考,以官方實際測量為準。
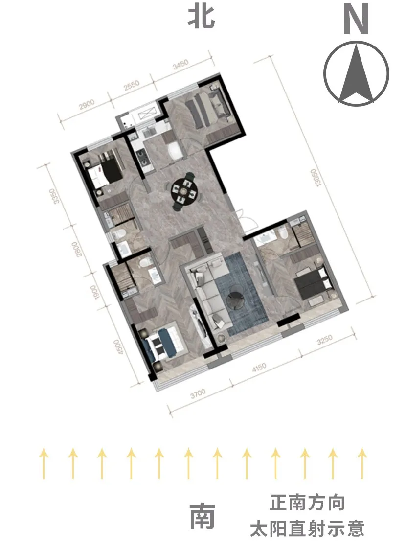
96m²三居
- 朝向:
此96平米戶型,3室2廳2衛,為西北-東南朝向,夾角約30度,南北通透,全裝修交付。
- 戶型功能區:
戶型內功能分割槽如圖中所示,包含:
客廳(1個)
餐廳(1個)
廚房(1個)
臥室(3個,包括一個主臥和兩個次臥)
衛生間(2個)
- 市場競爭力:
將此戶型以南北採光面作為劃分,則南向採光面上,分佈有2個功能空間,長度達7.4米。北向採光面分布2個功能空間。這種分佈,在96平米麵積段具有一定的市場競爭力。
因北京太陽照射和南北季風的影響,一般來講同樣面積段下,戶型南向“寬度越大,房間越多”則戶型相對越好。
臥室及客廳分佈在南向採光面上的分佈方式是現如今市面上最常見,也是公認較為符合北方居住生活的戶型格局。業主主要活動區域,需要充足的採光和良好的通風效果,所以新房戶型一般會將客廳和臥室,放置在南向。
- 戶型主要亮點:
此戶型贈送南向飄窗。客廳和南向主臥的飄窗設計再滿足採光的同時,還增加的一定的使用面積。未來,可以根據需求將飄窗做成收納空間或是看書喝茶的休息區。
- 戶型劣勢:
該戶型東北角的房間面積較小,如果做成臥室可能略顯侷促。
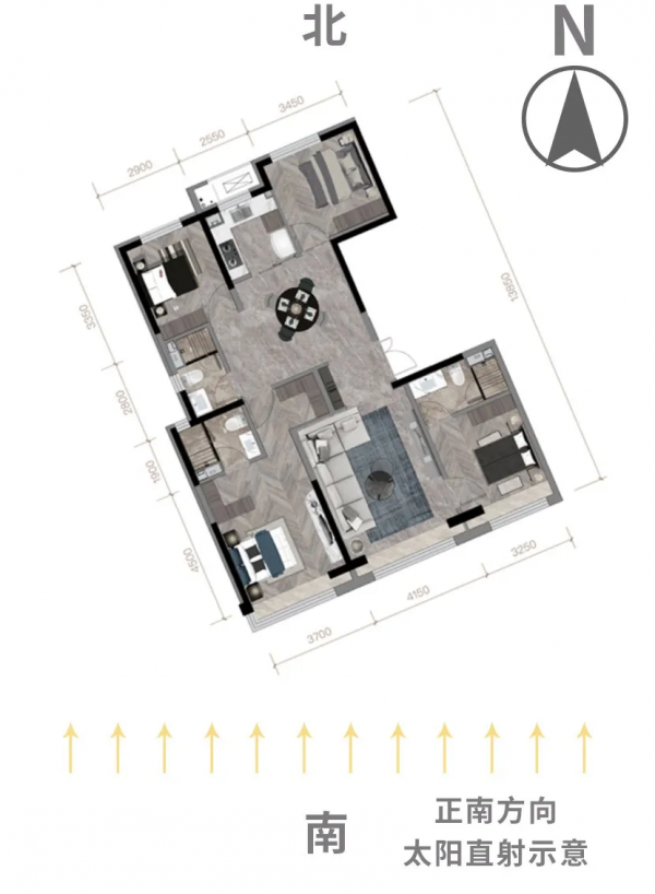
· 151m²四居 ·
- 朝向:
此151平米戶型,4室2廳3衛,為西北-東南朝向,夾角約30度,南北通透,全裝修交付。
- 戶型功能區:
戶型內功能分割槽如圖中所示,包含:
客廳(1個)
餐廳(1個)
廚房(1個)
臥室(3個,包括一個主臥和三個次臥)
衛生間(3個)
- 市場競爭力:
將此戶型以南北採光面作為劃分,則南向採光面上,分佈有3個功能空間,長度達11.1米。北向採光面分布3個功能空間。這種分佈,在150平米麵積段頗具市場競爭力。
因北京太陽照射和南北季風的影響,一般來講同樣面積段下,戶型南向“寬度越大,房間越多”則戶型相對越好。
臥室及客廳分佈在南向採光面上的分佈方式是現如今市面上最常見,也是公認較為符合北方居住生活的戶型格局。業主主要活動區域,需要充足的採光和良好的通風效果,所以新房戶型一般會將客廳和臥室,放置在南向。
- 戶型主要亮點:
此戶型南北通透,採光充足,空間佈局合理。該戶型是標準的四葉草戶型,四間臥室分列房屋四個角,互不打擾,私密性較好。
- 戶型劣勢:
南向次臥套房的衛生間為暗衛,可能會因通風不暢導致陰暗、潮溼、異味等問題。
希望看過以上評測後,可以幫您在北京選到一個好房子。
