最近刷案例時,發現北京有一戶人家的裝修,看起來不豪華,卻又暖又大方,就忍不住曬出來和大家分享一下。
首先,這裡補充一下基本資訊,房子為200㎡的頂層複式,位於北京的西南二環內,屋主為一對年輕的青年夫妻,外加父母和兩個可愛的孩子,也就是說本案三代同堂共住。
本以為這樣的大宅,裝修會非常的氣派,但沒想到不僅很樸素,除吊頂外,就連造型和裝飾也很少,可即便這樣還是一進門就把我迷住,真的太有品味了!我想這才是簡約而不簡單的低調裝修吧,難怪被超多人羨慕,不信一起來看看吧。
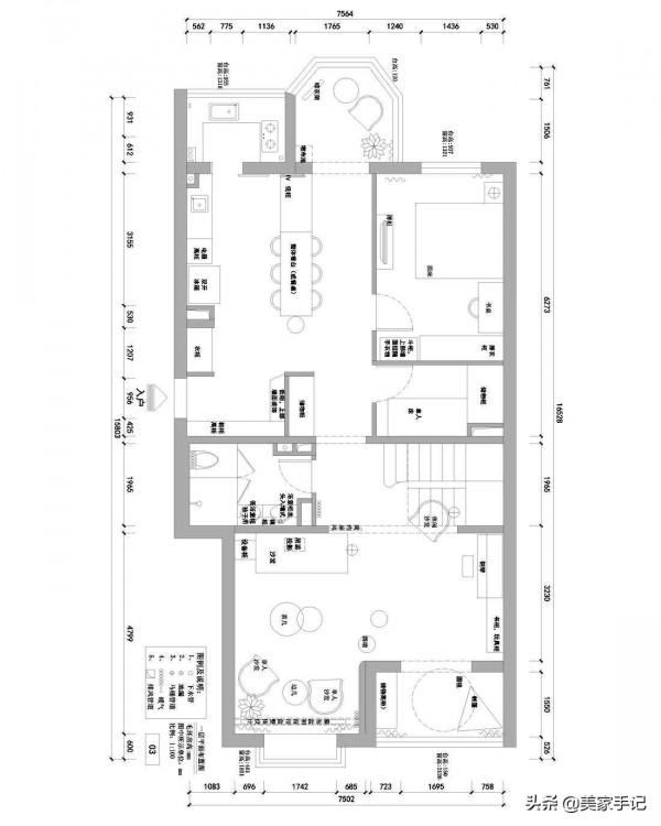
    平面圖
一樓為客餐廚這樣的公共區,外加父母房以及父母房右側隔出來的一間客房。結構改動方面的話不多,但還是有的,比如入戶門直對客房房門,為保證隱私,就加裝了一組隔斷櫃;至於其它是餐廚和客廳的改動,有需要的不妨自行參考一下,下面我們來看實景。
    入戶
進門對牆的地方點綴了一幅簡約的裝飾畫,如此可以起到一個類似玄關端景的效果,而開門見景,無疑可以讓回家充滿了儀式感。
其它是進門右側定製的白色鞋櫃,除了設定底部懸空的地方碼放鞋子,還有中部鏤空,擺放諸如鑰匙類臨時小物件的地方,加上一體化的換鞋凳加掛鉤區,不僅功能強大,而且細節考慮非常周到。另外,進門左側還設定了一組,一門到頂的灰色衣帽櫃,以收納衣物和行李箱為主,而顯然,這樣的分割槽設計要更為實用。
    餐廳
餐廳沿著玄關進來再左轉就到了。裝修上,由於空間比較大,所以除了擺放餐桌椅來滿足最基礎的就餐需求,還做了功能拓展來提高利用率,比如緊挨著餐桌椅的地方設定了半高的島臺,還有結合餐邊櫃設定的西廚區等等,都特別實用。
尤其後者,不僅嵌入了蒸烤箱和冰箱,而且櫃體之中預留了帶有水槽的操作檯,這樣一來無論是烹製糕點做早餐,還是泡茶燒水,以及研磨咖啡等等,都不用再跑去廚房,這樣無疑能提高生活的便利性和幸福感。中廚的話,可以看到就在西廚區的右側,這裡原本是一個陽臺,採用中西廚分離設計後,就設定了穀倉門作為隔斷。
站在餐廳看另一面的背景牆,可以發現屋主直接裝了軟木板,來記錄生活的點點滴滴,比如孩子的各項創作,像繪畫和手工作品都可以貼到上面,當然還有照片和記錄日常工作事項的備忘錄等等,這樣顯得更具有撫慰凡人心的人間煙火味。
    客廳
這裡的裝修簡潔明瞭,比如硬裝上,吊頂直接拉平,採用無主燈設計,加上只刷漆的沙發背景牆,以及側牆的壁畫,再點綴中式寫意元素的裝飾畫,整體的氛圍是比較清新雋永的,而且非常素雅。軟裝方面的話,由於捨棄了電視牆,所以傢俱佈局呈現了以結構輕巧的胡桃木茶几為中心,左右兩側分別是單人座椅+懶人沙發,和精緻的三人位皮沙發,相對擺放的圍合式結構,好處在於有利於建立一個非常輕鬆自在的交流氛圍,也延伸成了休閒區。
看到這,很多人好奇影音方面的需求怎麼辦?答案是屋主在左側飄窗的吊頂下,設定了可以收納投影儀幕布的凹槽,如此有需要時,配上投影儀就可以一家人聚坐在一起看大片了。
另一面可以看到通往二樓的樓梯,為提高利用率,樓梯下定製了儲物櫃,來為室內增添更多的收納機能。而右側,是孩子的學習區和活動區,所以不僅空間開闊,還靠牆擺放了鋼琴和書架,讓其學習才藝的同時,還能透過閱讀來開拓眼界。
再右側的話,就是休閒陽臺了,這裡選擇地磚通鋪,讓視覺上更有延伸感,看著也敞亮大方。
    父母房
考慮到父母上了年紀腿腳多有不便,就把一樓的大臥室讓給了他們住。至於裝修,非常的簡單,比如床頭牆只刷灰色的乳膠漆就可以了,不過搭配中式風格的裝飾畫,還有相應的軟裝傢俱,整體就有了一個禪風雅韻的效果。
    一樓衛生間
為提高使用效率,一樓衛生間的淋浴區和如廁區,透過設雙門處理,來實現一個三分離的效果,如此各個功能區相互獨立,互不影響使用。至於裝修本身,選用灰色的瓷磚,搭配白色的洗漱臺,看起來還是相當時尚整潔的。
    樓梯
沿著樓梯我們拾級而上去二樓,不得不說木質的踏板和扶手,看起來還是相當有質感的。當然,簡約的裝飾畫和吊燈也不錯。
    二樓平面圖
在看二樓實景前,這裡放一張原始結構圖和一張平面佈置圖讓大家來參考梳理一下。
然後回到實景,這個是二樓樓梯間,為提高利用率,擺放了一款胡桃木質感的鬥櫃。至於左側的兩間房,分別是次衛和主臥。
    大兒子房
考慮到大兒子的多樣化需求,比如學習、創作、聚會、自由活動和休閒觀景等等,就把這間大臥室讓給了他住。佈局方面的話,直接靠著右上角的牆角,擺放一款地床就可以了,這樣床尾還可以設定雙人位的書桌。
另一面可以看到更為開闊的活動空間,其它則是左側的衣櫃以及對面的書櫃。當然,這些小女兒都是可以共用的。
    小女兒房
這裡的裝修延續了之前的風格,落落大方,比較素雅,基於此就不多講了。
    主臥
主臥為提升質感,背景牆以乾淨清爽的乳膠漆打底,結合中間帶有豐富紋理的壁畫,層次感還是相當突出的。至於其它是簡約高顏值的實木傢俱,搭配柔軟舒適的床品,不僅營造了一個靜謐舒適的睡眠氛圍,看著也非常的有品味。
    主衛
最後是主衛,這裡其實佈局成了四分離的結構,比如右側是洗漱臺,左側是分割槽設計,並設雙門處理來提高使用效率的如廁區和淋浴區,加上右側門洞進去後,是設有浴缸和儲物櫃的地方,如此功能相當強大。至此本文就分享到了這裡,感謝大家閱讀。(注:本案文字原創,圖片來源於設計師@江建業,如有侵權,請聯絡刪除)
想了解更多精彩內容,快來關注@美家手記






























 
			 
			 
			 
			 
			 
			 
			 
			 
			 
			 
			 
			 
			 
			 
			 
			 
			