現在是不是上車的好時機?
市面上到底哪些盤可選?
先回答大家,年底這段時間尤其想買新房的朋友,房產觀認為可以上車了。臨近年底,部分開發商還有一些優惠。
下面房產觀依次給大家說說哪些新盤還有選擇,以及哪些專案有優惠!
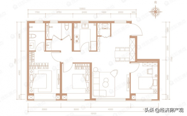
話不多說先上圖,圖為今年入市及待入市新盤↓
再來張表更清晰!
2021北京24個入市及待入市新盤一覽表↓
這些專案基本房產觀都給大家講過,下面依次給大家簡單盤一盤。想看優惠樓盤的直接下滑至文末檢視!
朝陽
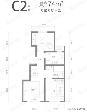
保利錦上
專案位於地鐵7號線雙合站東北側約600米,主力戶型為114㎡、132㎡、155㎡三至四居,限價71000元/平米。
放一張戶型圖給大家看看:
保利錦上在王四營三姐妹中最先入市,9月13日開盤,據說至今去化過半了,五環內妥妥的臨鐵盤,感興趣的朋友可以看看。
中綠·東嶽府
專案位於北京市朝陽區王四營鄉,距離地鐵7號線焦化廠站400米左右。
專案共7棟9-18層的板樓,戶型面積主要是122㎡、142㎡、182㎡三至四居,銷售指導價7.1萬/㎡,明顯的改善大盤。
朝陽壹號
專案位於地鐵7號線焦化廠站東北向約300米,戶型打造了面積約110-170㎡的三至四居室,限價71000元/平米。
規劃15棟10-18層現代風格住宅,共有997戶,容積率2.5。
戶型圖如下:
青雲上府
專案位於金盞鄉東葦路與金港南路交叉口東,主力戶型為130平三居、163平四居。今年10月24日開盤。
純商品共產房8.7折,政府持有13%份額,個人實際支付是66120元/㎡。
戶型圖如下:
朝陽一墅專案與青雲上府同屬朝陽金盞區域,朝陽一墅指導價7.6萬/平方米,剔除政府持有的15%份額,個人實際支付就是64600元/㎡。
專案主力戶型為196平米三居、200平米四居,妥妥的改善大戶型。容積率1.3,是疊拼+洋房產品。
戶型圖如下:
和光悅府專案位於朝陽區崔各莊板塊,地處北京東北區域。這個地段最值得說的,就是離望京近!
望京二手房掛牌價基本都在10w+,和光悅府8.8w/平米的價格,很難不賣爆。
和光悅府佔地面積41186平方米,建築面積102967平方米,容積率2.5,綠化率30%。
總共11棟樓,其中規劃了商品房526戶。主推120平方米-170平方米的改善戶型,以三面寬的四居室為主。
戶型圖如下:
龍樾和璽專案位於朝陽區崔各莊鄉黑橋村、南皋村南皋路。與和光悅府同板塊,均價8.8萬/平米。
專案佔地面積34118.69平方米,建築面積85297平方米,容積率2.5,綠化率30%。規劃建設15棟樓,其中5棟是配套的公租房,規劃商品房戶數是426戶。
主力戶型為123-175三至四居,戶型圖如下:
望京養雲同屬崔各莊板塊,望京養雲20%政府自持,限價8.8萬再打八折,7.04萬/平米。
專案一共6棟樓,規劃了377戶,有123㎡三居、123平米四居、168㎡四居三個戶型。
放一張戶型圖給大家看看:
德賢御府
專案位於朝陽區東壩大街與首都機場第二高速交叉口西南角200米。
限價80000元/平米,產品建築面積為73-145平米兩至四居。
戶型圖如下:
北京(綠城)沁園
專案位於朝陽區東五環外豆各莊,距離7號線黃廠村站400米左右,均價65000元/平米。
專案有77-149平米二至四居,作為朝陽的剛需盤,去化還不錯,放張戶型圖給大家看看:
海淀
學府壹號院
作為海淀樹村的8折純商品共有產權房,原本限價11.2萬,20%政府產權,8折後就是8.96萬/㎡。
前段實際開盤已經去化的差不多了,這個爆款盤房產觀就不多說了,複習戳藍字。
昌平
御邸
專案位於昌平北七家,翡翠公園北側,體量不大,共172套房源。
1-4號樓是配建的公租房,另外7棟樓是純商品房,1-4居全部都有。
前幾天戶型圖剛曝光,有56-125平米一至四居,放張戶型圖給大家看看:
北清雲際
專案位於位於昌平區北清路生命科學園,距離昌平線生命科學園地鐵站大約1公里,均價6.2w/平米。
總共18棟樓,14棟住宅樓,3棟配套樓1棟幼兒園,總戶數1413戶,容積率2.2。
放一張83㎡兩居戶型圖給大家看看:
奧森春曉
專案位於昌平位於回龍觀北側,妥妥的地鐵盤,距離地鐵8號線平西府站直線距離僅400米。
均價6.3w/平米,總共6棟住宅,約620戶,容積率2.8;其中純商品住宅共計4棟樓,樓層24-27層,總共6棟,東南角有兩棟公租房,全部是2梯4戶的設計。
放張戶型圖給大家看看:
豐臺
熙悅晴翠
專案位於豐臺園博園長順二路與園博西一路交口西南角,距14號線張郭莊地鐵站約300m,距西五環直線距離約2.2km。
主力面積段74-159㎡戶型;血拼姐瞭解到,專案還有30多套56㎡的小戶型。
給大家放張戶型圖看看:
西山金茂府
專案位於北京豐臺長辛店科技生態區,城六區,五環外;目前軌道交通尚未完善。
均價5.5w/平米,產品上專案規劃為建面約120-160㎡6層低密純洋房社群,容積率1.4,是目前北京最低密的金茂府。
放一張120㎡四居戶型給大家看看:
石景山 長安悅璽
專案位於石景山魯谷板塊,小區依然採用新中式風格,共計917套房源,體量適中。
產品有97-173平3-4居,限售價79500元/平,預計首付約300萬起。
放張戶型圖給大家看看:
通州
金地北京壹街區
專案位於通州區通懷路與北堤路交叉口西北,均價4.5w/平米。
產品有73-186平米二至四居,放張戶型圖給大家看看:
這個專案如果大家感興趣可以留言,房產觀改天出測評給大家。
國譽未來悅
專案位於九棵樹西路與翠屏西路輔路交匯處。距離地鐵1號線果園站1.3公里左右,近鐵老城區,生活配套還算成熟。
限價7萬/㎡,20%政府持有份額,折後均價5.6萬/㎡,總價300萬+輕鬆上車!
產品上,專案佔地面積為44474.33 ㎡,規劃房源641套,主力戶型為40平-140平1居-5居,容積率為2.4。
放張戶型圖給大家看看:
大興 德賢華府、中駿金輝·未來雲城
這兩個專案都位於大興新城,中駿金輝未來城,銷售限價5.9萬/平,最小戶型96㎡,總價約566.4萬,首付約226.5萬。
德賢華府,銷售限價5.3萬/平,最小戶型70㎡,總價約371萬,首付約148.4萬。
具體的測評及對比上週五房產觀剛發過,今天不多說了,【複習戳這裡】。
熙悅雲上
專案位於舊宮五環與德賢路交叉口東南,產品有106-152平米三至四居,暫時還未開盤。
放一張106平米三居戶型圖給大家看看:
老規矩感興趣留言,呼聲高的話房產觀單獨出測評。
和悅璞雲
專案位於大興區榆垡鎮榆南路,均價2.8w/平米。產品有52-100平米一至三居,戶型圖如下:
這個專案比較遠,今天也不給大家多說了,感興趣留言。
門頭溝
北辰龍湖攬境
專案位於門頭溝永定鎮,鄰近地鐵S1號線四道橋站,稱得上是臨鐵盤。
S1線全程經過石景山和門頭溝,想要進城,還是得在金安橋站換乘6號線。
據血拼姐瞭解,這專案主力產品為62㎡-77㎡兩居和98㎡三居,限均價6.1萬/㎡,總價350萬起。
前幾天戶型圖剛曝光,放一張給大家看看:
以上就是今年的新盤彙總,建議大家收藏,另外還對哪個專案感興趣記得留言~
最後,給大家說說今年底的 特惠樓盤
禧瑞春秋,推出3套一口價房源,總價1830萬起。
專案位於朝陽孫河,限價68924元/平,現3套清退一口價房源,分別是:
建面約500㎡,使用面積700㎡的觀湖西邊戶,價格在3600萬左右。
建面450㎡,使用面積530㎡的東邊戶,價格在2950萬左右。
337㎡疊拼,使用面積為400㎡,價格為1830萬左右。
遠洋五里春秋,推出5套一口價房源。
專案位於石景山區域,目前5套90平三居準現房,總價約480萬左右,首套首付不到200萬。
福星京瀾譽府,清盤特惠最後一套118㎡三居洋房。
通州京瀾譽府距離通州北苑地鐵站約500米,與萬達廣場隔街相望,北臨玉帶河大街,地處東五環與東六環之間。現清盤特惠,僅剩最後一席,約118㎡三居洋房。
金地·大湖風華,清退一套200㎡花園院墅,總價471萬,精裝修。
金地大湖風華位於房山青龍湖,由4層疊拼、6-8層洋房組成。限價37245元/㎡,清退一套花園院墅,使用面積200㎡,精裝一口價471萬。
