城裡房價高,好不容易買完房還得還貸款,真的不如回老家,學這位業主拿買大平層的錢買套3層大別墅,內部低調奢華,出門就是私人小庭院,假山流水,業主一住就是10年,每天都能體驗到花園式生活!
這套別墅面積有300㎡,一共3層,比周邊的房屋都要高一些,採光真的沒話說,前後兩個院子。房子的主人是一對夫妻,他們有一個兒子,和長輩們住一起,三代人同住舒適又幸福,簡直滿分!
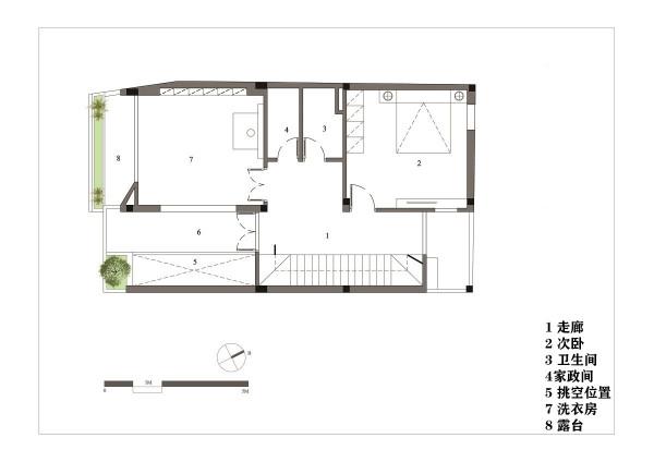
一樓主要是公共空間+老人房,二樓有主臥和兒童房,三樓則是洗衣房和次臥,每個空間劃分地很明確。
>>>小院
我最喜歡的就是他家進門處的小院子了,有甲板露臺可以休閒喝茶,旁邊還有個錦鯉池,眼睛所到之處都有綠植,好看又有檔次。門口增加廊架設計,下雨天可以遮雨,夏天能擋太陽,考慮得太周到了!
>>>客廳+餐廳+廚房
一進門就是個挑空客廳,足足有7米3高,牆面採用了玻璃纖維混凝土,質感好,強度高,關鍵還環保。落地窗+二樓玻璃窗,整個客廳採光都極好,堪比“陽光房”。
一張灰色的布藝沙發跟背景牆相統一,地面通鋪水磨石地磚,好看又耐磨,鋪上一張圓形蒲墊,再擺上一大一小兩張茶几,整體佈置簡約又清爽!
一抬頭頂部還有天窗設計,另外二樓安裝了摺疊格柵作為護欄,家裡有孩子,安全還是要注意的。
對面是壁龕+壁掛電視,儘量不佔過道空間。
電視背景牆作為餐廳和客廳之間的隔斷,整體形成洄游動線,不用多繞路。整個家非常有禪意,呈現的舒適感也很強。
木質餐桌椅簡潔溫馨,牆邊一邊打排懸空長櫃,充當餐邊櫃,另一邊利用牆壁結構打造壁龕收納各種雜物。
值得一提的是餐廳落地窗正對外面的小院子,光線好不說,風景真的太棒了!
開放式廚房選擇了L型櫥櫃+島臺組合,家裡人員多,廚具自然也不少,這樣一下子就緩解了廚房的收納壓力,冰箱和微波爐這些電器全都嵌入在櫃子裡,整個檯面乾淨又整潔。
廚房電器多,牆面不同角度都預留了足夠的插座。
中間的島臺作為點睛之筆,不僅能收納,檯面也可以作為備餐區,或者加幾把高腳凳也能成為個小吧檯。
>>>老人房
老人腿腳不便,所以老人房安排在一樓,色調上儘量選擇簡潔而又質樸的,床對面有電視,晚上可以躺在床上看看新聞。
衣櫃中間鏤空一部分嵌入一個小小的梳妝檯。
>>>主臥+兒童房
二樓臥室剛好連線樓下,摺疊格柵作為護欄,加上窗簾可以保證臥室私密性,不過只要業主想,隨時都能看到一樓的情況。
臥室空間比較大,一張2m寬的大床擺在中間,床頭設計梳妝檯,床尾擺放床尾凳,實用的同時也打造出一種簡約清爽的睡眠環境。
利用臥室進門拐角處設計個L型開放式衣帽間,弧形的邊角處理防止進門時磕碰到。
衛生間裡是雙洗漱盆設計,早起洗漱效率更高,三面鏡子的設計可以多角度使用,對於化妝的女業主來講真的是太友好了。
兒童房設計最簡單,一張大床和一個嵌入式大衣櫃,沒有任何多餘設計,對於孩子來講,寬敞的活動空間和充足的收納比什麼設計都管用。
雖然市區的大平層豪宅讓人羨慕,但這種獨棟的景觀別墅同樣也能讓人心生羨慕,這套房子有驚豔到你們嗎?




































 
			 
			 
			 
			 
			 
			 
			 
			 
			 
			 
			 
			 
			 
			 
			 
			