好的設計,在施工的那一刻就足以驚歎眾人了!這套450㎡的別墅,一共6層,三世同堂居住。客廳挑高6.4m,整體採光非常好,負一層和負二層也都有采光井。一直關注飛墨的朋友都知道,每套作品的設計師都是全程跟蹤的。為了讓大家更直觀地看到施工程序,跟著我來看看這個家的蛻變之旅吧。
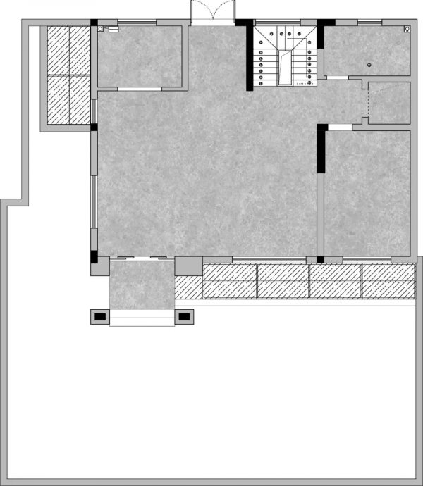
#一層
從玄關到客廳
玄關大約6㎡,增加了收納,由於層高較高,收納櫃體頂部可以暫放換季衣物,底部留了大約20公分的空間放置常穿的鞋子。一體式換鞋凳方便老人小孩坐著換鞋,換鞋凳下方的抽屜裡收納襪子,將出入戶的動線縮到最短。
用一扇金屬鏤空隔斷,完美地劃分了玄關與客廳之間隔而不斷的儀式感。
向前走進客廳,挑高6.4m和800*1600的連紋大塊地磚都彰顯了這個家大氣輕奢的格調。
客廳背景牆採用天然尤加利木皮和天然木格柵外加高階時尚的巖板裝飾,一般的巖板鋪貼是用歐松板打底,這裡因為牆面太高,我們直接做了幹掛處理,保證了後期入住的安全性。
整個電視背景牆的高度是5m,寬度3.6m,可放置80英寸的電視,並用定製金屬包邊收口。工藝細微到嚴絲合縫,又同時考慮到了各種材質之間碰撞出的質感。
地臺的寬度為4m,深度35cm。中間留了一些空間給手機充電或者放置音響。
△實景落地
客餐廚一體化
餐廚地面以沙發為隔斷,頂面以橫樑劃分,形成一個開闊的生活用餐環境。
中廚的面積約7㎡,櫥櫃全部定製而成,最側的收納抽屜裡做了分格,方便收納筷子等小件廚具。
水槽下設定了淨水系統,保證一家人安全用水。廚房門隱藏式吊軌處理,方便打掃,煎炒油炸等油煙較大的時候可以完全關上,簡單的處理食物時可開啟成呈開放式。讓整個廚房的功能更多元化,也可以增加家人之間的互動。
餐廳大約18㎡,跟廚房相連,動線最短。在餐廚中間有一個島臺,可在此做西餐料理。整面牆的餐邊櫃裡嵌入酒櫃和烤箱,外加頂天立地零食櫃,豐富了餐廚的功能。
島臺長1.6m,可做小吧檯使用。在這裡品酒、喝下午茶完全OK。小水槽用來洗水果、水杯等非常方便,分分鐘體驗小資生活。
△軌道插座(左)隱藏式吊軌門(右)
餐邊櫃的軌道插座可滿足幾個電器同時運作,好的設計,是儘可能地把功能做到極致。
△實景落地
吊頂用金屬線條做裝飾,跟玄關屏風和電視背景牆相呼應,把氛圍感拉滿。
#二層
二層挑高部分的吊頂延續了一層的造型,使整體達到平衡。
這一層主要是兒童房和休閒區,休閒區設有獨立的水吧檯+收納櫃,另一側放了一臺鋼琴和一個休閒沙發。
水吧區的背景牆做了15cm的防水臺,往上拼接尤加利和木柵格,與電視背景牆遙相呼應。孩子們可以在這裡練琴、玩耍,極好的採光和開闊的視野也給這個空間增添了不少的雅趣。
兒童房(1)
兒童房的收納櫃裡特別設計了抽拉收納籃,方便收納襪子、內衣等小件衣物。
兒童房(2)
兩個兒童房的格局很相似,陽臺都做了地臺,孩子可以在地臺上休閒玩耍,兩邊都定製了收納櫃體,沒有浪費一絲一毫的空間。
#三層
整個三層是一個大主臥+收納儲物間+次衛,大主臥約33㎡,集衛生間、衣帽間為一體。
臥室入口設計了一個隱藏式水吧區,用摺疊隱形門可以完全把水吧隱藏起來。
△before and after
床頭背景牆用上好的金絲楠木做了一個簡單的造型,內嵌燈線,使造型更加立體有光澤,也同時用於床頭照明。兩邊尤加利護牆延伸了樓上樓下的質感,保持完整的統一性。
梳妝檯長1.6m, 材質是富有細膩肌理的雀眼木飾面。落地後的成品光澤自然,工藝嫻熟,更好的吻合了業主低調輕奢的生活品味。
一整面牆的頂天立地的收納櫃用來收納衣物,為了保證通透感,減弱櫃體的沉悶,在櫃體的三分之一處設定縱向的玻璃櫃門,嵌入燈線,可歸置裝飾擺件,也可放置女業主的護膚品。
△四式分離衛浴
主衛設計了一體式雙臺盆,可同時滿足夫妻兩人洗漱。入牆式浴室櫃完全避免了衛生死角,無把手開啟方式,讓整體看起來更加整潔大方。浴缸的背景牆上裝了一盞壁燈,營造泡澡的氛圍感。
馬桶區和淋浴區完全隔開,不用擔心溼區的水汽會蔓延到幹區。
#四層
before and after
△before
△after
四層是書房+儲物間+露臺,書房用了吊軌門,不用在地面安裝軌道,避免了積灰等清潔問題。書櫃也是藏露設計,開放式的部分可以放置擺件、常看的書籍等。
#負一層
負一層的休閒區用牆咔做背景,抽象的畫面有種寧靜致遠的感覺,置身其中,讓身心得到放鬆。
休閒商務娛樂
相鄰的採光井下面放置飲茶桌椅,這裡可休閒、可暢飲。
把最大的空間留給了用餐區,因為業主是三世同堂居住,會有大型的家庭聚會。所以,這裡歸置了一個3.6m的長餐桌,旁邊是4m的餐邊櫃,像一個五星級的酒店餐廳,可滿足多人家庭用餐。
#負二層
負二層主要規劃為舞蹈室、棋牌室、酒櫃、裝置室,以休閒娛樂為主。
酒櫃是用金屬框架+亞克力定製而成,內嵌燈線,保證承重力的同時將酒以及酒瓶的輪廓完全呈現出來,生活與藝術的碰撞,恰到好處。
其實,廬州府別墅這個專案裡,我們還做了很多設計處理,比如,隨步燈線樓梯,每一層都有水吧區和衛生間,安裝了電梯方便業主上下樓,每個空間裡都儘可能多做收納。淨水系統、新風系統、中央空調、全屋智慧音響等一應俱全,最大程度地提高業主的生活質量和精神享受。
原創設計+精湛的施工團隊,是飛墨一貫的家居理念。每一套實景的落地,都是業主、設計師、施工團隊共同協作的成果。很榮幸,我們又見證了一個家從設計到施工到完成的全過程。
所見即所得,設計即落地。未來,希望與您一起遇見每一個溫暖的家!































































 
			 
			 
			 
			 
			 
			 
			 
			 
			 
			 
			 
			 
			 
			 
			 
			 
			