關於大平層,我們用一個最準確的詞彙去形容,應該就是“奢居”吧!
現如今,大平層作為一種“別墅式”的居住體驗,不但已成為城市裡新晉的一種人居典範,而且越來越受高階人士的青睞了。
動圖來源:一起設計 ID:together-design
下面我們要介紹的這棟「大平層公寓樓」,坐落在澳大利亞布里斯班的河濱地帶。
Walan 2 Scott Street
與我們印象中的大平層相比,這棟名為「Walan 2 Scott Street」的大平層公寓,除了大尺度、高視野以及功能完善的高品質居住體驗外,而且在外觀結構上也透漏著一股迷人的奢華氣質。
據說,這個專案於去年12月完工,由 GBW 集團開發,布里斯班當地的建築事務所——Bureau Proberts 操刀設計。
那麼,在這個“大室”所趨的時代背景下,「Walan」公寓是如何彰顯它的豪宅之氣的呢?我們來了解一下。
首先,整個建築的外立面就足夠亮眼了!公寓樓一共包含14個居住單元,每一套都以大平層的形式呈現。
設計師的色彩靈感,主要來源於建築周邊的自然景觀。
他們別出新裁地採用了紅色、棕色以及黃色的格柵線條,將整個建築外牆包裹起來,營造了非常獨特的裝飾效果。
鏡頭拉近一些,我們還會發現這些色彩不一的金屬板條,居然形成了漸變的圖案,使得整個外立面看起來疏密有致、線條流暢,讓業主擁有更加私密的室內環境。
每層建築的中間部分,則以“垂直森林”為設計靈感,在寬闊的露臺種植了很多適宜的樹木,令人足不出戶便能感受大自然的氣息。
公寓底樓以大面積的灰色為主調,再將立面的格柵做了傾斜設計,得到一個可以遮陽擋雨的頂棚。走道兩側嵌入燈帶,於細節處增加了不少精緻感。
入口處並無多麼氣派的大堂接待區,但是看起來採光充足,視野開闊,設計簡單而無所附麗,讓自然成為最好的佈景。
內部的兩個獨立電梯,直接將業主帶入各自的生活區域。
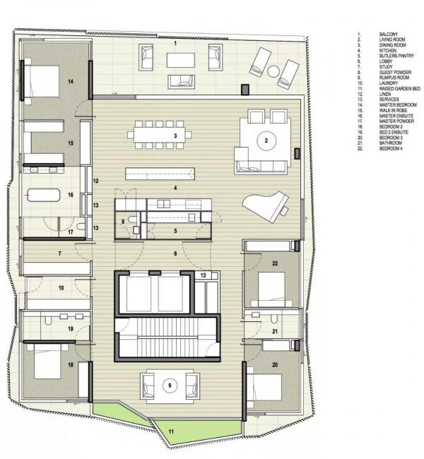
這棟公寓樓的每層均有365平方米,包含4個臥室、4個衛生間,均價為400萬美金,約合人民幣2700萬元。
作為名副其實的“大平層”,裡面的空間尺度自不必說。
設計師將客廳、餐廳及廚房全都融為一體,做了開放式的佈局,四周的全景落地玻璃再加上高層視野,可以毫無遮掩地看到外面的美景,盡顯豪華氣度。
廚房裡的一體化廚櫃、2個大冰箱、一個專用的葡萄酒冰箱以及其他高階廚房裝置,均採用烤漆、木材、石材打造而成,無繁複造型,且功能性十足。
3.6米的超長島臺放置其中,既作為廚房與餐廳的隔斷,又可以輔助烹飪,為整個空間鋪墊了摩登的現代基調。
客廳的沙發採用了不同擺位,便於最大化地將室外風景納入視野。
陽臺區域被打造成一個舒適的休閒區,除了戶外沙發、戶外桌椅等基本配置外,還放置了燒烤架、燒烤冰箱以及天花板加熱器等,成就超高品質的詩意棲居夢想。
主臥套房擁有44平方米的面積,臥房與衛生間均被恰到好處地遮掩起來。裡面還配有一個步入式衣帽間、帶有獨立浴缸、雙花灑淋浴頭的淋浴房,大大滿足了高階人群對居住空間的需求。
客衛的面積雖然縮減了許多,但是該有的洗漱櫃、鏡櫃、淋浴房及馬桶等配置一個不少,還做了必要的乾溼分離設計,將方寸之地發揮到極致。
此外,「Walan」公寓還在頂層的公共區域建造了一個屋頂泳池,讓人們可以一邊盡情暢遊,一邊360度俯瞰整個城市街景,帶來更加極致的居住體驗。
所以,這樣的大平層設計,展現的是一種高質量的生活方式。它以奪目的外觀、簡約的內飾和寬闊的視野,凝結豪宅之氣,大尺度地還原生活本真。
大平層的存在,在為城市頂尖人群提供奢居體驗的同時,也帶來了品質生活的更多選擇。
來源:一起設計 ID:together-design
























 
			 
			 
			 
			 
			 
			 
			 
			 
			 
			 
			 
			 
			 
			 
			 
			