700平米左右的大平層是什麼概念?基本是終極改善的效果。今天我們看三個600-700平米的戶型。這三個戶型特點不同,各有千秋。都非常優秀。讓我們具體來欣賞一下。
▼【圖一】劇院式的客廳完全可以開私人party,小型的音樂會也不在話下。電影欣賞會也可以盡情滿足。中部餐廳搭配外接陽臺。北側的廚房開間超過6.3米。休息區有四個臥室。其中主臥讓人目瞪口呆。雙衣帽間、雙馬桶、雙淋浴、雙洗臉檯、雙人浴缸。這才叫享受。
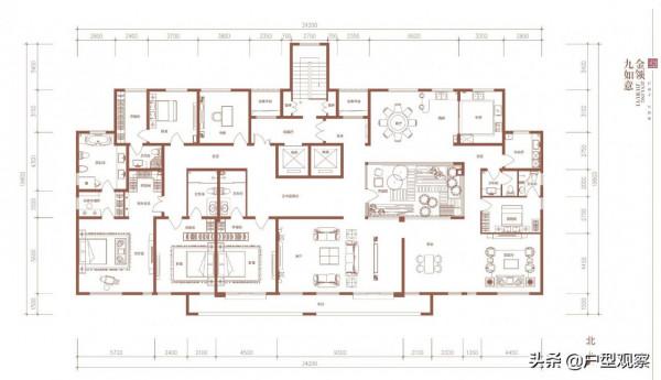
▼【圖二】超寬開間。二合一大平層的優異代表。休息區有五個房間。主臥配置堪稱豪華。有兩個客廳,全部朝南。中間還有戶內庭院,可以做空中花園。北側的餐廳、西廚、中廚一字排列。極限的豪橫。
▼【圖三】最具未來感的大平層戶型。空中露臺,天際游泳池。縱向端景大邊廳以及超豪華主臥一應俱全。語言無法形容,靜靜體會即可。
這三個戶型如果送你一個,你會選擇哪個呢?評論區每人一套。
