今天分享一個六層的帶地下室的新中式別墅案例,外觀看著十分大氣。
首先看一下平面圖,建築總寬度是12.2米,總深度是16.2米,寬度沒有很寬,但是格局和外觀都很有大氣感。
地下室平面圖
地下室主要是做地下車庫,能容納4輛車的停放,家裡車多的不用擔心沒地方放了。電梯直達地下室。
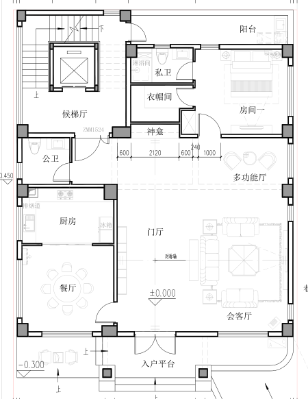
一層平面圖
電梯和樓梯設定在東北角,門廳客廳相連,寬度是7.16米,廳深度是8.76米,視野非常的寬闊,十分通透,廚房餐廳在北面分隔開,南面留一帶獨衛的老人臥室。
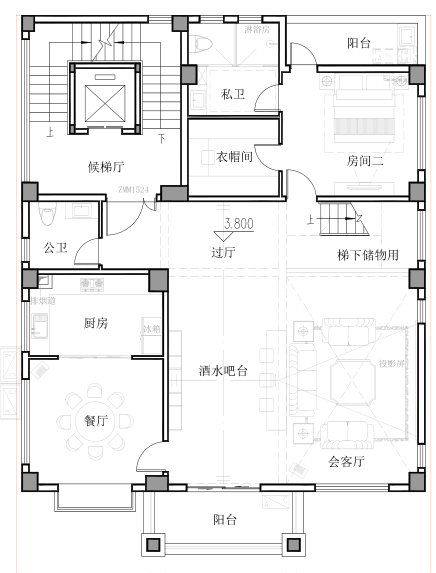
二層平面圖
二層和一層格局幾乎一樣,屬於標準層,二三層是一個標準層。
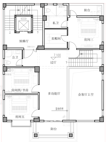
三層平面圖
三層佈置了一個帶衣帽間,陽臺,獨衛的套間,其餘兩個可做客臥,多功能廳可靈活實用。
四層和五層格局和二三層一樣。
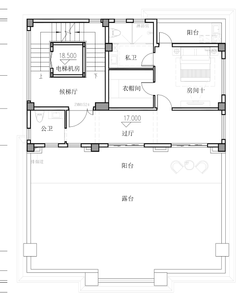
六層平面圖
六層佈置一個套間,加一個大露臺,視野非常好
下面看一下建築外觀。
