本案例是一個320平的超大戶型,結合業主關於房屋內部空間通透明亮,各個功能區有自己的特色的需求,設計師對房屋整體進行合理規劃設計,容易被忽視的燈具被設計師設計成案例的亮點,整體展現出一款現代風格的家裝樣式。希望這套家裝方案能夠給你自己裝修帶來更多更好的裝修靈感。
基礎資訊
所在城市:江蘇 鹽城
建築面積:320平方
設計風格:現代風格
所用材料:科技木飾面,進口塗料,石膏板,大理石瓷磚,牆布等
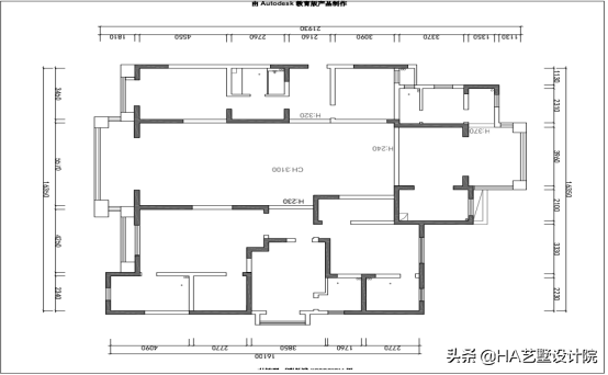
01原建圖、平面佈置圖
房屋原建圖和房屋平面佈置圖中,可以看出整體被分為了玄關、客廳、餐廳、主臥室、次臥室、書房、陽臺、兒童房等功能區,建築面積大,沒有多餘的室內隔斷等設計,房間整體效能和採光效能極好。客戶主要提到以下幾點需求:
1、客廳和餐廳要合為一體,顯得客廳更大;
2、細節之處要做好,透過細節展現每個房間的不同之處;
3、兒童房是關鍵,要給孩子一個美好的居住環境;
4、家裝採用的色彩可以多一些,只要不雜亂就好。
設計師按照客戶提出要求,對房屋整體進行了重新規劃,在做好整體房屋大方向色調及選材的基礎上,對每個房間的細節之處又做了工藝打磨,最後整體呈現出一款高檔的裝修風格,客戶給設計師點了一個大大的贊。
02玄關
進門後視覺上沒有任何的阻礙,走廊式的玄關設計更顯通透。這裡的燈選擇的是無主燈設計,簡約的射燈連成一條線,與地板的走線是平行方向,看上去比較舒服。
進門右側是做了滿牆的鞋櫃,滿足主人日常收納需要,鞋櫃櫃門採用的無門把手的設計,隱藏式的設計不破壞牆體的整體性。下方留有一排放鞋處,像拖鞋等日常使用率較高的鞋子不用入櫃了,使用起來更加方便。
進門左側的牆面採用的是霧霾藍背景,中間配有一個簡單的衣服掛鉤,整面牆沒有其他的任何贅述,簡約的風格讓人忍不住想趕緊去看看拐角之後的樣子。
正面看去是衣服壁畫,從風水學的角度來說,入戶門是氣得入口,迎門牆的設計能夠將家庭興旺之財氣、福氣聚集起來,並且能起到保護業主生活隱私的功能。
03客廳
為滿足客戶想要讓客廳和餐廳合為一體,顯得客廳更大的家裝需求,設計師在客廳餐廳吊頂設計時沒有再採取客廳+走廊+餐廳的設計,而是簡單的雙眼皮設計走了一整圈,讓人有一種一眼望不到頭的感覺,在配上無主燈的設計,客廳看上去大了許多。
電視背景牆的設計很獨特,材質選擇的是人造大理石的材料,但是區別於大多數人選擇的整面牆都是大理石面的設計,在電視的下方留有儲物帶,既滿足了電視櫃的需要,也給客廳留出了更多的裝飾空間,能夠讓業主在後期去根據自己的想法在細節處增添裝飾品。
04餐廳
客戶要求在家中要多一些色彩的裝飾,設計師在餐廳的設計上下了苦功夫。整個餐廳包含了黑白、橘黃、淡藍、淺灰等色調,豎向的大牆板沒有讓多種色彩雜亂,而是在視覺上形成了不同的區域,餐廳整體更顯靈動。
餐廳燈的選擇是放射狀的吊燈,看上去照明效果和顏值都線上,效果沒得說。
05主臥
主臥的選擇主要是木色色調,這讓臥室更有溫馨感。地板採用的是木地板,這樣即使光腳站在地上,也不會受涼。
主臥的空間很大,在床的旁邊留有大量的空白區域,女主人可以拉個瑜伽墊在這裡做做瑜伽,也不失為一種美好的生活享受。
主臥的燈具選擇的是球型燈,客戶提出的要在細節處體現不同,設計師選擇在燈具上做文章,不同樣式的燈具體現著不同的房間風格。
06次臥
次臥的設計顯得色調更加溫和,做了滿牆的櫃子滿足收納需求,中間留有電視區,來了客人可以在床上看看電影,這裡的燈具選擇的是豎笛式的燈具,房間顯得又美了一番。
07兒童房
兒童房是客戶提到的一個重點,設計師大膽對房間頂部佈置了星空頂,鏈條式的燈具不顯呆板,牆體主要由木色和淺灰色的拼接而成,加上橘黃色的休閒凳的撞色設計,整個兒童房活潑十足,動力四射。










 
			 
			 
			 
			 
			 
			 
			 
			 
			 
			 
			 
			 
			 
			 
			 
			 
			