茶几,在日常的生活中,雖然不是最重要的傢俱,但相信每個人在新房裝修好之後,都會給客廳配置一個。這樣不管是用來擺放一些日常雜物,還是用來裝飾,都是挺實用的。不過隨著極簡風的流行,茶几在當下的空間設計中,也越來越少見了。
比如本期帶來的這套案例,在傢俱配置上,屋主就堅持放棄了茶几。或許這個做法在別人看來,會有一些不妥,但從整體來看,卻也讓空間做到了整潔、乾淨。同時,溫暖、輕鬆的空間氛圍,也著實讓人羨慕。
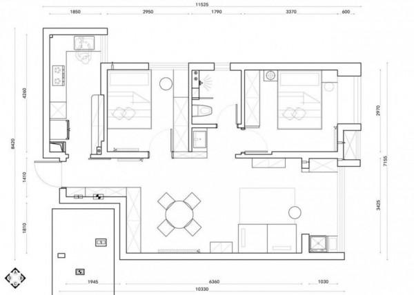
平面結構圖
新房位於武漢,面積80㎡,兩室兩廳的格局,屋主是一個自律、軟萌的姑娘,喜歡輕鬆、舒適的居住氛圍。原戶型比較常規,且沒有明顯的硬傷。再結合屋主是一個人居住,所以在空間設計上,就將重點放在了細節最佳化上,以打造出一個舒適、實用的居住空間。
平面方案圖
空間佈局如下
1、進門鞋櫃採用轉角的方式,延伸至餐廳,兼具餐邊櫃的功能。
2、過道側面增加功能櫃,以充分地將空間給利用起來。
3、衛生間做乾溼分離,並將臺盆獨立在外,提高空間的使用率。
4、南陽臺取消移門隔斷,進一步提高客餐廳的通透性。
玄關
進門側面定製頂天立地式鞋櫃,充分滿足日常鞋帽、衣物的收納需求。另一面則以拼色的方式,設計一塊造型黑板牆。這樣既可以提高空間的趣味性,也兼具了不錯的裝飾效果。而以穀倉門的結構給廚房安裝上單扇移門,也最大化保證了進出時的舒適性。
餐廳
透過玄關就是餐廳,餐邊櫃以轉角的方式與鞋櫃連線在一起,可以讓空間顯得更加工整、連貫。櫃體中間位置做內嵌設計,則在加深視覺延伸性的前提下,也方便了一些小電器的使用。比如榨汁機、咖啡機等等。
雖說家裡目前只有屋主一個人居住,但生活的儀式感也是不能缺少的。因此,選擇一張橢圓形餐桌,不僅讓空間顯得更加圓潤了,也彰顯出了一抹精緻的格調。
為充分利用空間,將過道側面的牆體拆掉,並以內嵌的方式設計一組功能櫃,再一次補充了客餐廳的收納能力。同時,該櫃體還起到了遮擋幹區的作用。
客廳
沒有過多的裝飾,也沒有驚豔的造型,用最簡單的布藝、原木、綠植,為空間點綴出了一抹溫馨的氛圍。而在傢俱配置上,刻意放棄常規的茶几,並鋪上一塊地毯,也是空間的一大亮點。
或許從生活角度來看,缺少了茶几,就缺少了實用性。畢竟在生活當中,茶几還承擔了日常物品的擺放需求。可若從空間的角度來看,這個茶几完全是可以放棄了。
一是客廳的開間尺寸本身就比較有限,捨棄了茶几,反而可以起到最佳化空間動線的作用。二是沒有了茶几,客廳也自然減少了一些凌亂。因此,對於追求自律生活的屋主來說,沒有茶几不僅不會影響生活,反而還會讓生活更加舒適、慵懶了。
當陽臺取消移門隔斷之後,一邊則設計了一組儲物櫃,並且為了弱化陽臺門洞的存在,開放式隔層部分,還將牆體給包上了,從而讓空間顯得更加整體。
相較於其它牆面,電視背景牆則用實木波浪板裝飾了一下,強化了空間層次。而放棄電視機,並配置投影裝置,也十分符合當下年輕人的生活方式。
廚房
廚房裝修雖然很簡單,但實用性卻很強,尤其是細節處理這塊,更是值得我們學習。比如高低檯面設計,就十分人性化。再比如側面的櫥櫃設計,雖說深度尺寸有限,但卻最大化提高了空間的收納與操作面積,並絲毫不影響轉角空間。
衛生間
衛生間以乾溼分離的結構來設計,可以最大化地提高使用率。幹區牆面採用瓷磚、防水漆兩種材質來處理,既呼應了現代時尚,又提高了空間層次。而側面的隔層櫃、臺盆懸掛安裝,也都是比較實用的處理手法。
主臥室
來到主臥,空間以莫蘭迪粉色系來搭配,既彰顯出了小女人的浪漫,又強化了溫馨、柔和的空間氣息。同時,大面積的白色調又做到了剋制。
次臥室
次臥室則運用了莫蘭迪藍色系,再搭配上原木色傢俱,既做到了安寧寧靜,又有了溫潤質樸。由於該房間目前用不到,所以配置也比較基礎,以方便父母過來小住。
雖說客廳不放茶几,在當下比較普遍了,但在個人看來,這主要還是取決於每個人的生活方式。說得簡單一點,如果做不到自律,那麼還是配置一個茶几吧,否則,在生活中真挺不方便的。當然,從空間上來看,客廳沒有了茶几,也確實能起到拓展空間,以及最佳化動線的作用。對此,你們怎麼看呢?
圖源:雲夕設計
