專案概況:
地址:北京延慶
建築尺寸:15.05米X18.34米
結構形式:磚混結構
建築面積:217.6平方米
層數:二層
基地概況:
南側:鄰居家院子
北側:鄰居家院子
東側:村裡主幹路
西側:村裡次幹路
戶型設計:
【首層平面圖】
整體佈局採用L形的佈局形式,考慮到採光的問題,在東側設定庭院,西偏房為一層平頂,設定廚房、餐廳,正房首層設定會客廳、品茶區、東西兩側設定兩個臥室,臥室帶有單獨的衛生間
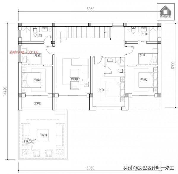
【二層平面圖】
二層採用四開間的佈局,設定三個臥室、休閒廳,臥室均帶有單獨的衛生間
效果圖設計:
本專案整體採用新中式的設計風格,外牆主要以白色調為主,搭配深灰色的腰線,以及木色的裝飾,建築整體整體看起來輕盈現代
[鳥瞰效果圖一]
[鳥瞰效果圖二]
[鳥瞰效果圖三]
[鳥瞰效果圖四]
[鳥瞰效果圖五]
[庭院人視點效果圖]
[庭院人視點效果圖]
