裝修完之後設計師和屋主在他們心儀的大窗子前拍了照片。
設計師說,我真挺想在後面樹上掛個網的,要是掉下去了可以兜著^-^
這個家除了有個7m景觀窗,還有一個46m長的大露臺。屋主三代信佛吃素,買這個房子,完全是為了能在露臺上自己種菜自己吃。這完全是一間服務主人的家,沒有為他人眼光犧牲任何東西。
戶型:三室
裝修花費:70W
房屋座標:福建 福州
認識她
設計師:褚晏(阿加)
阿加空間設計創始人,擅長挖掘業主情感所需的細膩設計。用專業的設計規劃空間,用溫暖的設計營造家是阿加一直堅持的設計方向。
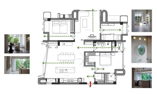
01 完全抓住兩個優勢
細分生活動線強調景觀動線
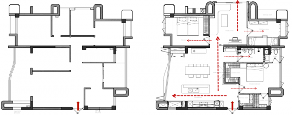
原始戶型是一套四室兩廳。
戶型有兩個優點,第一是46米長的露臺,可以滿足種菜需求,第二是南側7米長的大窗子正對一片綠蔭,這景色在城市高樓難得看到。
    然而,原格局並沒重視這兩個優點,南側分割成半連不連的兩間房,難看到綠蔭全貌。入戶走廊直達房間最裡面,去露臺卻要繞進兩個房間。
房屋裡的結構牆不多,可以拆牆大改。為了突出這兩個優點,設計師大刀闊斧,改造出全新的室內格局。
沿著玄關走道為軸線將空間一切為二,廚房餐廳整合到陽光最好的南側主臥、兒童房和衛生間放到北側。
露臺方向的房間改為起居室,方便使用露臺。
進門開始,生活動線被分為:玄關、用餐、起居三條,防止一窺到底。
除了生活動線,設計師還為景觀設計了動線,從一個空間走向另一個時,房間深處都能聚焦到窗外的美景。
裝了窗子但又沒有完全裝
主臥衣帽間的牆面,形成一面影壁,打斷縱向視野,獨立玄關區域。縱深視野打斷,也是為了強調玄關左側的窗景。
![]()
    玄關右側的穿衣鏡後是鞋帽間,鏡子反射讓綠色窗景流入到玄關深處。
    看圖片感覺,視線可以透過玻璃摸到窗外的樹枝上,實際上,這個窗子根本沒有玻璃。
![]()
    普通落地窗,通常中間固定、兩側開小窗通風,並不能讓窗前的人體會所以綠色、陽光、風和空氣。
裝修正愁窗戶做法時,女主人說:“不裝窗戶了,下面掛個網兜,掉下去能兜住不就行。”
家裡的老人聽到這個建議,竟都爽快同意。
設計師擔心孩子會掉下去,但女主人已經和兩個孩子以及自己的先生都商量好了。
女主人告訴設計師,已經和孩子認真交流過了,他們都聽明白,不會靠近的。
根據屋主的不裝窗需求,設計師最後選擇了超大的摺疊移門做窗子,可以完全開啟至無窗狀態。拉上移門有很好的隔絕效果。
夏日驅蚊可以拉上隱紗網。
水管可以開槽埋線,但是煙道很難移動。新格局灶臺後正好是鄰居家的煙道。找鄰居溝通非常順利,在牆上開孔就實現了排煙。
女主人做飯時,可以看到景色並與家人交流,島臺成為廚房核心。水槽、洗碗機、收納和料理都能在島臺完成,灶臺區域只是收納和炒菜作用。
![]()
    島臺側面是7米橫窗,對面連通起居室露臺景色。不僅被景色環繞,老人和孩子的活動,在島臺就能全部照看到。
![]()
    餐桌和櫃子都是印尼老木料,紋理和顏色都與杏色微水泥牆地面堪稱絕配。
為了找到合適的桌子和櫃子,設計師大費周折,最後發現外貿工廠年底清樣正好有這一桌一櫃。
![]()
    對於這個禮佛家庭,佛龕是需求清單中的重點。佛龕樣式和現代風格很難搭配,設計師將佛龕設計在陽臺一側的櫃子裡面。
![]()
    摺疊櫃門不僅讓室內風格統一也保護佛龕中的器物不受塵土,窗邊空間大,方便屋主完成磕長頭等禮佛活動。
03 給人看和給自己用
自己用著方便,在家活著自在
起居室的改造重點,就是將“給客人看”的客廳,變成“給自己用”的起居室。
![]()
    移門可以完全隔出起居空間,和待客用的餐廳。同時也是為了省空調費。
屋主的需求是能有個對坐聊天、喝茶的地方,起居室只放了一組地臺沙發、一張茶几和一方壁爐。
![]()
    沙發不大,兩人坐下正好是飲茶聊天的最佳距離。依在床邊,外面就是種植花草蔬菜的露臺和美麗的陽光。
![]()
    窗子對側還放下了男主人的鋼琴,一家人在這裡聽著音樂、曬著太陽,賞花、喝茶。
![]()
    屋主的露臺是不允許私搭亂建的,一半的空間是家裡的菜園,另一半屋主鋪上了懸浮墊,畫上羽毛球場地,在這裡運動休閒。
甩出來的洗手檯是微水泥大水槽。女主人喜歡檯面清爽,所以清潔用品全部收納在了上方鏡櫃和下方儲物櫃中。
屋主需要衛生間極致簡潔,所以衛生間的裝置全在牆裡,沒有獨立淋浴房,淋浴區地面無擋水,地漏隱形,連玻璃隔斷都是無框的。
![]()
    牆面三個小孔是女主人的巧思,給暗衛引入陽光,而且這個樣子的窗,神秘而且有節奏,給人一種宗教禪意。
看著第一感覺像是柯布西耶在朗香教堂用到的窗子。
04 臥室和兒童房
加法給活動減法給臥室
玄關旁邊的臥室是主臥。臥室的佈置就比較簡單,床邊是女主撿回來的小馬紮,跟檯燈還有一種莫名的CP感。
![]()
![]()
    兒童房在起居室旁邊。兩個孩子平時住在學區,只有週末回來。借原空間承重牆設計出了錯位高低床。
![]()
    下鋪沿垂直空間設計出攀巖場地,給好動的弟弟使用。上鋪1.2m高適合姐姐使用,床鋪下的空間既可以儲物,也能是孩子們的秘密基地。
![]()
    “給自己用的”而不是給“別人看的”,這個屋子都可以這句話總結。
為了種菜買的房子、沒有玻璃的7m橫窗、不待客的起居室、為了極簡拋棄方便打掃的衛生間,這些全都體現了屋主一家人的生活方式。
![]()
    給自己裝修房子,是為了讓自己在家裡過得舒服,而不是為了拍拍照片。是否舒適、美觀、實用,都要每個人自己去定義。不同的生活方式,才會有不同風格的屋子。
但是
現在的室內案例
為什麼看上去都差不多
奶油風、侘寂風、極簡風
感覺都一樣
歡迎在評論區留言
你喜歡的裝修風格
━
戳圖,找靠譜設計師
拓展閱讀
商 務 合 作
微信ID:TrendsZaijia006
微信ID:TrendsZaijia010
後臺回覆“轉載”,獲取轉載須知
編輯 /白貓 圖片 / 設計師提供
參考來源:@阿加空間設計
喜歡這個家嗎?
那就 三連吧!
