「有了孩子之後,就再也沒有自己的時間了」,不知道是多少中年人的心聲。
來自福州的住友@trio 夫妻倆,最近卻重新找回了二人世界:上中學的孩子和老人同住,他們則搬了出來,住在附近這套 80㎡ 的房子裡。
每天輔導完孩子作業,倆人就回到這兒享受自己的時間:爸爸在家看書、玩攝影、聽黑膠唱片,媽媽在大長桌上練習書法。
既有一家人共處的時間,也給自己的世界留有餘地。這種中年人生活,誰看了不羨慕啊?
根據窗景改窗戶?
老小區也有絕美視野
這套房離原來的家很近,之前一直是出租的狀態。現在孩子大了,一個家住著太擠,青春期的孩子,也需要更多的個人空間。
改造前的客廳和廚房。
夫妻倆索性重新裝修一下,自己搬出來居住。既不影響日常照顧孩子和老人,也能有屬於自己的空間。
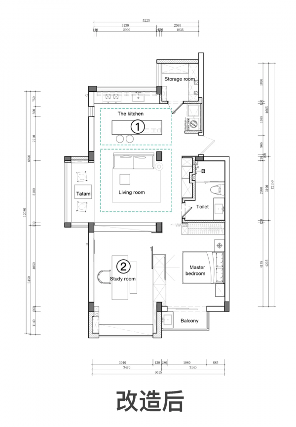
房子位於 80 年代的老小區,80㎡ 的面積,原戶型做了三室一廳,還是有點緊湊。而且屋主只有夫妻兩人住,沒必要切割出太多小空間:
① 客廳有 5 門洞和動線,空間被切割得很小;
② 餐廚空間狹小;
③ 只有兩個人居住,三個臥室有些多餘。
經過好好住認證設計師@對話空間設計研究室 的改造後,房子只保留了一個臥室,餐廚空間也被完全開啟:
① LDK 一體化,空間更開闊,形成更便利的洄游動線;
② 次臥改成書房,將生活陽臺納入其中。
還有一個讓人頭疼的問題,就是房子北面的窗景。
老小區的樓間距普遍較近,房子北邊到對面樓只有 8m 的距離,視野逼仄雜亂不說,隱私問題也難以保證。
相比之下,西、南兩邊因為有樹木遮擋,景觀更好。在符合安全規範的前提下,設計師重新調整了窗戶的位置,把更好的窗景引入室內:
老小區對外立面改造的管理比較寬鬆,開窗也是在建築安全規範範圍內操作。
① 擴大開窗,選擇透光不投影的形式,遮擋北側視線並保證採光;
② 封住兩處北向窗戶;
③ 廚房西北角有棵大樹,專門為它做了一個豎條窗;
④ 將原生活陽臺納入室內,保留南向窗戶;
⑤ 室內長條形窗框,增加通透感和空間景緻。
榻榻米+影音區
詩意從客廳開始
一進門,就被客廳古樸的黑胡桃飾面包圍,整個家都是中式的古典氣質。
入戶左側的玄關櫃,內建了鞋櫃和掛衣區,進門脫衣換鞋,一氣呵成。
現在老人和孩子住的那個家,是屋主自己摸索著裝修的,住了幾年,一直有兩點遺憾:沒有飲茶室、沒有影音空間。
客廳和餐廚之間,形成流暢的洄游動線。
現在有了新家,未實現的願望也終於落了地。
沙發位於客廳的正中央,家裡不常來客人,這個尺寸倆人剛好夠坐。
一盞黑胡桃壁燈,打破了柱子的突兀感。
特意選了遮光效果更好的窗簾,拉上之後,這裡就是夫妻倆的「私人影院」。
作為福建人,屋主對茶的喜愛尤其熱烈。
設計師在窗邊設計了榻榻米茶室,供兩個人邊喝茶邊聊天。坐在上面,可以望向南邊的風景。
擔心榻榻米收納太雞肋,設計師專門改成了抽屜+開放格。
北面原本也是一扇小窗,考慮到景觀不好,封起來做了壁龕。少了一扇窗,能增加落座區的安全感,加上幾層隔板,放些裝飾擺件也不錯。
窗臺也做了加寬處理,方便喝茶時隨手置物。
反正不咋做飯
餐廚空間夠用就行
夫妻倆週一到週五都不在家吃飯,下廚的時間也不多,所以不需要太大的廚房,夠用就行。
索性把餐廚空間都開啟,讓整個公區都更加通透。島臺當餐桌,也足夠兩個人用餐。
擴大北面開窗,增加採光,用磨砂玻璃和橫向百葉貼膜,將雜亂的外環境阻擋在外。
廚房的西北方向,剛好長了一棵大樹。
設計師在這開了一個豎條窗,用餐的時候,可以欣賞到外面的景色。
這種窄型窗戶的做法,在樓間距近的案例中常會用到。
比如日本河野有悟建築事務所 2019 年輕的這個專案,窄窄的窗戶面向路邊,能夠有效引入光線,還保障了隱私。
西邊的樓捱得很近,還好有樹的遮擋,不然也是雜亂無章。有些時候,景色只露出一點點,比一覽無遺要更有意趣。
廚房佔用的空間不多,門口留出一塊區域作為儲藏間。在角落裡很不起眼,不影響空間的整體視覺,洗衣機也放在這裡。
愛好實在太多
沒個書房真裝不下
在客廳和書房之間,開了一條橫向的取景窗。
一是為了引入光線,二是想增強空間的通透感。
特別是坐在沙發上時,剛好面對著這裡,可以直接看到南邊的窗戶,家的各個空間也有了交流。
書房在這個家裡,可以說是屋主夫妻的「居心地」了。
兩個人都有自己的愛好:爸爸喜歡看書、攝影、聽音樂,收集了不少黑膠唱片;媽媽看電子書偏多,正在學習書法。
屋主喜歡黑胡桃的材質,但在小空間全屋使用還是太過沉重,所以用了直紋橡木飾面來調和。
房間裡的這組大書櫃,能夠放下屋主的 1000 多本藏書,櫃子裡也能收納些零碎物品和攝影器材。
書桌旁這把椅子,是屋主之前家裡的舊傢俱,如今在新家依然實用。
也正是因為屋主鍾愛這些古樸的元素,才給了設計師不少靈感,促成了整個家沉靜古典的風格。
長木桌是媽媽練習書法的地方,爸爸也會在這用電腦修片、辦公。
半透光的蜂巢簾,能夠營造一種陰翳內向的自我環境,讓屋主能夠更加沉浸其中,專注於各自的愛好。
開啟窗簾後,又能看到南側鬱鬱蔥蔥的行道樹,眼見的景緻不同,心態也跟著變化。
也正是出於媽媽對書法的喜愛,設計師在書房和主臥之間,做了一扇磁吸毛氈移門,方便隨時展示她的書法習作。
推開這扇門,就進入了主臥的空間:
家裡只有倆人住
一間臥室就夠了
從書房看向臥室,左側是屋主專門放黑膠唱片的收藏櫃,右側是書房和臥室的雙面櫃,底部一圈燈帶,給厚重的櫃體增加了懸浮感。
在色彩搭配上,沿用了黑胡桃色和暖色藝術漆的結合,暗色調的臥室環境,也更有助於睡眠。
床尾的櫃子還給電視預留了空間,平時躺在床上也能看劇,家裡的影音區又多了一個。
雖然和老人孩子分開住,但夫妻倆從沒忽視對孩子的陪伴。
大部分時間,一家人還是在原來的家裡,一起吃飯、聊天、監督孩子學習。這個 80㎡ 的家,更像是給夫妻倆一個安放自我的空間。
人到中年,身上難免扛著許多重擔。但兼顧眾多責任的同時,給自己保留一些鬆弛也很重要,畢竟在成為別人的父母、子女之前,你首先是你自己。
