基本情況:目前和愛人工作、居住都在海淀。
資金情況:雙方都是企業高管,他收入比我高一點,家庭年收入1000萬左右。
問:雖然目前的居住環境不錯(海淀某平層),但因為疫情的關係,我還是想要一個更舒適的空間,居家宅著也不無聊。石景山近幾年的豪宅別墅不少,我和愛人也在關注,十一之前看到「遠洋源山春秋」預售證下來了,也去看了看,感覺和隔壁的「遠洋天著春秋」差不多,價格要便宜1萬,想問下小新,是有什麼缺陷嗎?
在石景山的一眾豪宅裡,源山春秋均價9.3萬/平米的價格的確比隔壁天著春秋便宜了1萬。
據說開發商從8月就開始報價,最初報的價格是11萬/平米,沒批;後來報了10.5萬/平米,又沒批;降到10萬/平米,住建委巡視後還沒批。如果專案一直拖下去,開發商要承擔非常高的資金利息,只能被迫接受均價9.3萬/平米的批價。
從這個角度說,這算是政府壓價的一個結果,如果有意向,還是可以看一看的。
開發商割肉回血
2020年12月30日,北京出讓位於石景山劉娘府地塊,這塊地僅獲得一次報價,被遠洋+中交+平安+保險產業園聯合體以55.56億的底價競得,成交樓面價35636元/平。
今年5月,專案案名曝光為「遠洋源山春秋」,市場對其的預估是售價會超過10萬,但現在來看,理想的泡泡被撲滅了。
9 月 30 日,源山春秋獲得預售許可證,准許銷售面積為 59580.42㎡,共計 30 棟樓,包含 135 套房源,包括9套類獨棟、36套雙拼別墅和部分平墅產品,擬售均價約 9萬 /㎡。
規劃建築面積 15.59 萬平,其中 1604-663、667 為 R2 二類居住用地,建築面積 68590 平,不限價。
住宅部分限高 18 米,根據掛牌檔案資料測算,容積率約 1.1,與遠洋天著春秋相同。
源山春秋之所以沒叫上價,和北京的市場調控有關係。有錢買別墅和平層的基本都是35歲以上的中產,北京離婚買房新政出臺後,家庭購房資格被限制,新房市場的大戶型產品就更難賣了。
十一期間,源山春秋開盤的一期總共約135套房源,包括9套類獨棟、36套雙拼別墅和部分平墅產品。西側地塊為一期,東側地塊為二期,但在目前一期計劃推出房源並未售罄。
其中,210平米的最小平墅戶型賣的很好,首期開盤即罄,銷售額20億元,還會再加推一期。
其實現在這個市場情況,開發商一開始是沒有料到的。豪宅就是豪宅,怎麼可能被限價呢?但事實就是價格批的不理想。
有傳言說源山春秋這個專案,賬目算下來一期開盤就得虧1個億左右。所以專案西側首期地塊有4棟平墅產品此次並未取證,希望能留一點回血盤,日後價格漲上來了再開。
另外據銷售說,開發商有兩棟平墅不準備推,後續想以毛坯的形式交付,可以自選200萬元精裝包,種種跡象表明,開發商在想方設法的回血。
但落回專案本身,地段、配套、產業甚至風水,確實都沒啥毛病。
被壓價的優勢
2014年前後,石景山被政府安排為長安街的延續,拆遷整理。政府將其規劃為商業辦公用地對外出讓,意在打造石景山臨西長安街沿線的產業、金融片區。
很多大開發商在石景山拿地開發,綠地環球文化金融城也在土地東側完成,成為產業城的第一步。區域內的住宅專案也在不斷落地,2020年,石景山的住宅供應量達到新高,長安九里、長安和璽、中海·天鑽、中海首鋼·天璽都拔地而起。
專案的聚集,意味著專案的去化速度不斷降低,包括豪宅在內。
遠洋源山春秋所在的石景山劉娘府地塊,西臨京西豪宅遠洋天著春秋,背靠八大處公園,南邊是永定河,法海寺森林公園,周邊還有石景山保險產業園,位置的確不錯。
所以對於源山春秋來說,雖然開發商的心在滴血,但在去化上,還是有幾點優勢。
1、西山別墅不愁賣
只要產品夠硬,石景山、還帶你的別墅是不愁賣的,因為這邊有錢人太多了。定價10萬+也不驚奇,特別是現在學區房被壓的這麼慘,想開點的家庭轉頭賣掉學區房老破小追求一把生活品質不是問題。
2、價格便宜。
原來業界對源山春秋的猜測,都是至少10萬+,現在均價9.3萬/平,實實在在佔據了價格優勢。
在配套方面,地塊本身包含幼兒園、社群衛生服務站、託老所等生活設施,建築規模超過8萬平的商業辦公樓。
交通上,附近有地鐵1號線蘋果園站、S1號線、11號線、6號線。
醫療資源包括蘋果園四區社群衛生服務站、北大首鋼醫院、石景山區中醫院、中國中醫科學院眼科醫院、北京石景山醫院等。
生活上,周邊有華夏銀行ATM、華夏銀行ATM、中國工商銀行ATM、中國工商銀行ATM、中國農業銀行自助銀行、京客隆、利君雪靜便利店、好食好客、振水超市、世紀華聯超市、世紀華聯超市等。
教育資源上,首師大附屬蘋果園中學、北京第九中學、石景山先鋒小學、海特花園小學、北京大學附屬小學石景山學校、首鋼大地蘋果園幼兒園、海特實驗幼兒園均在附近。
佔據了便利的配套和價格優勢的情況下,遠洋源山春秋還是值得期待的。
戶型
源山春秋的別墅最小490平米,毛坯交房,約2800萬元/套。平墅最小210平米,首批精裝交房,每套在1900萬元以上,要驗資800萬元才能看樣板間。有遠洋春秋的風範。
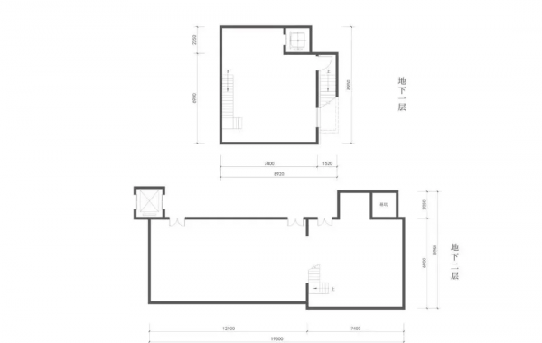
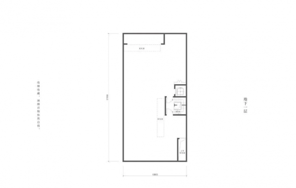
戶型圖上,有一說一,別墅的戶型圖沒啥可挑的,直接上圖就完了。
建築面積約540㎡沐山·平墅
建築面積約600㎡憑雲·雙拼
建築面積約730㎡坐忘·獨院
