這是一套142平米的現代風格裝修案例,整體空間以現代風的裝修元素,以墨色的硬裝與軟裝搭配組合,透過獨特高階質感的設計與材質,營造出一種現代精緻的居住空間氛圍。
客廳
▲整個客餐廳以現代風的空間,加入墨色的裝飾畫與傢俱搭配,讓空間顯得簡潔優雅而端莊意韻。
▲客廳佈置一套黑色的皮沙發,加上方形雅白+黑色圓形的巖板檯面雙茶几組合,在黑白色的的空間下,呈現出一種別樣端莊的高檔與時尚氣息。
▲電視牆以地臺式電視櫃的定製,背景牆以長城板+巖板的背景組合,擺上一幅黑白墨色的裝飾畫,在無主燈的空間下,也為我們營造出一個簡潔舒適的客廳氛圍。
▲茶几上佈置金屬材質的飾品、玻璃花瓶,角落一盞長杆吊燈佈置,在明亮舒適的光線環境下,也讓客廳顯得更加精緻清新而華麗。
餐廳
▲餐廳以黑色檯面的餐桌,搭配墨綠色的餐椅組合,背景牆掛上黑白墨色裝飾畫,餐桌上佈置石材與玻璃材質的花瓶與擺飾品,佈置上餐具,為主人提供了一個儀式端莊的用餐空間。
▲質感輕奢優雅的餐具擺飾,處處都充滿了優雅與華麗的氣息。
兒童房
▲兒童房在簡潔的空間下,床頭牆加入粉色的軟包背景牆,左側童趣的定製櫃體,右側獨特的球形裝飾,佈置暗粉色的皮藝床,黃色的床單,擺上鮮花與書籍,營造出一個輕鬆舒適的浪漫的兒童房空間。
主臥
▲主臥在床頭牆加入長城板與硬包的背景牆,佈置上墨綠色的床鋪,佈置黑白配的墨色床單與地毯,床尾加入鬥櫃,擺上擺飾品、花瓶與裝飾畫,也讓空間顯得格外的華麗優雅。
衣帽間
▲衣帽間以玻璃櫃門的衣櫃設計,側邊佈置一張書桌,搭配一張銅綠色的布藝椅子,書桌上擺上花瓶、裝飾畫與檯燈,整個空間質感顯得輕奢精緻而華麗檔次。
次臥
▲次臥床頭牆以硬包的背景牆基礎,在背景牆造型上還有暗藏的燈帶,加入一盞獨特造型的筆跡壁燈,佈置灰色布藝床,床上鋪設灰色與綠色的床單,床側邊一個圓柱形的黑色+金屬質感結合的床頭櫃,整個空間顯得格外的華麗精緻而大方。
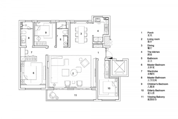
平面佈置圖
今天的分享就先到這裡啦,喜歡別忘了關注我呀~有想看的風格或者更多想要了解的可以多多在評論區留言哦!













 
			 
			 
			 
			 
			 
			