記得點選關注“裝個好房子”哦~
每天為你帶來裝修乾貨、改造新靈感與美好生活故事
探尋美好居住方式,我們值得更好的生活!
----------------------------------------------
最近幾年,越來越多的人開始注重旅行的舒適度,找個景色宜人的地方,住進一家舒適漂亮的酒店,以此慰勞辛苦工作了很久的自己。
在他們眼中,酒店並不只是一個冷冰冰的暫住地,房間中的燈光設計、動線佈置置、衛生間裝修甚至是床墊枕頭等小物件,都能帶來舒適愜意的居住體驗感。
美國Dream Hollywood酒店
而這些人中,還有不少會把住過的酒店中的裝修亮點,運用到家中,力求自己的居住空間,也能擁有它們的極致舒適與極致便捷。
Shaun就是其中之一,在北京打拼多年,他為自己買下一套46㎡的小一居,並投入自己最大的精力與熱情,將它打造成了“酒店套房”。
作為酒店控的他,終於在31歲這年,實現了“高階酒店套房永久居留”的願望。
01
小戶型放大術:
酒店套房式洄游動線
屋主Shaun是知乎的商務,平日裡工作特別繁忙。
因此,他很清楚自己真正想要居住的家,以及嚮往的生活狀態是怎樣的:住在一個如酒店般高顏值、舒適放鬆的環境裡。
阿姆斯特丹W酒店
除此之外,他還希望自己的家能夠酷夠好看,表面越整潔越好,千萬不要被塞得太滿。
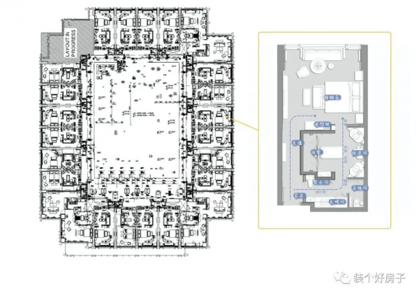
但這套房子是個建面65㎡的一室一廳,因為得房率很低,量房後設計師發現,真正的使用面積只有46㎡,想要實現Shaun的願望並不容易。
幸運的是,房子西邊光線很好,三扇窗戶往外看都沒有遮擋,只有暗衛和廚房使用體驗感不舒適,也比較逼仄,他希望改造後的家,能最大程度開啟空間,讓各個功能區域共享採光。
改造前戶型圖
面積小,還要一定的舒適度,好在Shaun是一個人居住,加上父母家就在附近,需要收納的物品並不算多,想要達到他的期待與需求,只要好好規劃動線就可以了。
為了讓小戶型也能實現酒店套房居住感,設計師特意去研究了柏悅、文華東方、瑰麗等豪華酒店的套房設計,並發現:比起華麗的外表,它們內在的居住舒適度更值得我們學習。
香港瑰麗酒店
比如季裕棠設計的香港瑰麗酒店,客房便擁有經典的雙動線。
一條快速動線直接從玄關通往休息室,另一條則需繞過衣帽間、馬桶間和梳洗間,再回到休息室,將所有功能納入整個洄游系統,住在裡面的人“不走回頭路”,空間的開闊性和流動性大而順暢。
香港瑰麗酒店客房平面佈局圖
帶著從酒店中汲取的思路,並結合屋主的喜好、需求和居住習慣,設計師進行了以下改動:
1、拆除廚房、客廳、臥室、衛生間的部分非承重牆,讓整個房子看起來更像一個酒店套房;
2、從入口到臥室,透過新建牆體,增設玄關-家政區、衣帽間-洗衣、盥洗區、書架-電視牆等功能組合模組,並與玄關、衛生間、臥室、客廳串聯在兩條洄游動線上。
改造後戶型圖
全屋動線圖
改造完成後,全屋的功能和動線都得到升級。
Shaun每天下班進門換鞋後,可以直接進入衣帽間換家居服。
然後順手把換下來的髒衣服洗了。
再順著動線走入馬桶間和淋浴房,洗漱、如廁、沐浴一氣呵成。
最後,從浴室另一側進入臥室休息,或是拿一本書回到客廳,全程不用折返。
不想先回到臥室洗漱換衣,也可以從玄關直接進入客廳與廚房。
然後不用走幾步路,就能抵達客廳或臥室,躺著看書、思考、聽黑膠唱片。
從早上起床、洗澡、護膚,到更衣、出門,整個動線也很省時間。
02
玄關:
木地板上牆,視線豁然開朗
原始戶型中,進門沒有獨立玄關,嚴重缺乏儲物空間。
改造後,因入戶頂部是適合放中央空調主機的位置,設計師索性在這裡圍合了一個寬1.37m、深1.94m的純黑儲物式玄關。
整個空間以酒店木飾面為靈感,櫃體的門板是黑色橡木貼皮,搭配純黑木地板與頂面,頗有“初極狹,復行幾步,豁然開朗”之感,對比強烈,讓客廳、廚房、臥室顯得更加高挑。
原始室內鋪設淺灰色瓷磚,與黑色木地板銜接在一起,極具層次感。
為了方便照明,從玄關開始,全屋都安裝了智慧開關,實現“推門燈即亮”的生活場景。
玄關在黑色飾面板卡扣了線條燈,豎向燈帶完美提升氛圍感,溫馨又利落。
進門右手邊,是嵌入式隱形儲物櫃,滿足日常收納需求,中間區域小面積留空,方便隨手置物。
細節上,儲物櫃是四扇門、35公分深的款式,中間三扇內部加入可調節高低的承重柱與擱板,可收納不同大小的鞋子與雜物。
最靠近室內的,是一面通高櫃,裡面收納吸塵器等各種家政用品,以及弱電箱、路由器、閘道器等,保證空間表面整潔利落。
因小區規定入戶門只能向內開,進門左手邊的換鞋凳便根據門的寬度做了切角,以黑色天然紋理石材包裹,與木紋牆面搭配在一起,自然大氣、層次豐富。
02
客廳:
矮牆、島臺代替隔牆,小空間寬敞又明亮
隔出一小部分面積給玄關後,客廳變得更小了。
為了不讓Shaun覺得居住空間侷促,在牆頂、地等立面做了一些格局調整和拉伸視覺的設計。
敲掉廚房、客廳之間的非承重隔牆,以水泥色中島相隔,兩個不同的功能區域連線在一起,增加實用性與視覺面積。
其次是將客廳與臥室之間的隔牆改為矮牆,上方不通頂、內嵌向上發光的燈帶,拉伸視覺層高、減少壓抑感。
這面矮牆也擁有一定功能性,朝向客廳的是電視牆,背後朝向臥室的則是書櫃+抽屜。
雙面櫃中間還安裝了兩扇漸變磨砂膜玻璃滑門,臥室與客廳在敞開與封閉兩種模式中切換自如,採光、通風也都得到了很大提升。
客廳東邊的牆包裹了一整面木飾板,一直延伸到臥室盡頭,既能讓大面積黑白灰的空間更顯溫暖,又能提升整體感與延伸感。
靠近玄關的位置,做了一個壁龕式酒櫃,半封閉半開放的形式,既能展示手機的好酒、膠片,又能收納零碎物品。
層板的高度是根據酒和音響的尺寸定製的,四面留有2*2公分的工藝縫,讓櫃子更顯立體。
地面瓷磚特意採用垂直於木飾面牆的錯縫鋪法,視覺上縱向拉伸空間,讓房間顯得更加方正。
另外,全屋無踢腳線的設計,也讓空間乾淨許多。
天花板通鋪吊頂後,使用無邊框的筒燈保持極簡氣質,燈筒也只有零零散散的幾個,照亮重點區域即可。兩側則做了磁吸軌道燈,可靈活調整。
多點光源配合燈帶進行照明,讓整個空間的燈光層次更加豐富、呈現出不同的氛圍感。
整個客廳最大膽的佈置是休閒、會客區。
取消傳統大沙發,一張舒適的伊姆斯單人沙發搭配幾把椅子,擺放在客廳中央,靈活度極高,能實現看電視、運動、朋友聚會等多種場景。
小陽臺特意留白,不放置傢俱給空間添堵,平時用餐在吧檯即可。
03
廚房:
小而精緻的開放式廚房,實用性超強
廚房打通成開放式後,兼具隔斷、餐桌功能的島臺成為亮點,花了很多心思去設計。
因為Shaun酷愛材料的原始感,便參考了安藤的清水混凝土形式,現場澆築島臺。
支模時,用木紋板把木紋的肌理印在混凝土上,並在上面留下氣孔,一些斑駁的地方也沒處理,保留下水泥質感和木紋最真實的樣子。
立面和地面留出工藝縫、內嵌燈帶,更加精緻的造型與質樸、粗獷的材料形成鮮明對比,卻毫不突兀。
為了顯得更酷一點,廚房內部採用黑色搭配深灰色,只在下櫃門板上安裝銀色把手做點睛之筆,沉穩又大氣。
佈局也採用傳統的一字型,冰箱藏在最內側,不影響空間顏值。
擋水石和灰色磚面特意鋪貼平齊,減少磚與磚之間的縫隙,美觀好打理。
抽屜內使用各種收納筐,將數量不多的小物品收納整齊,一目瞭然、方便拿取。
04
衛生間:
新增多功能區,串聯最佳生活動線
衛生間的第一入口位於玄關右手邊。
改造前,它是個只有3㎡的暗衛,在門口新增了一個衣帽間+洗衣房+衛生間幹區後,空間比之前大了一倍,也更加多功能。
另外,因為Shaun不喜歡常規門套,全屋沒有一扇平開門,就連衛生間門也是結合了木飾面做的隱形處理。
走入衛生間,第一個區域是衣帽儲物區,深色的櫃體依照牆體結構定製,不設門把手,在大量留白的牆體襯托下,並不顯壓抑。
洗衣機、烘乾機也內嵌於此,換衣-洗衣動作一氣呵成。
穿衣鏡旁擺放了一個小架子,可以晾曬隨手清洗的小件衣物。
洗衣機左側是洗漱區,鏡櫃、洗漱櫃內嵌在不起眼的位置,中間留空的位置安裝燈帶,烘托氛圍、重點照明。
洗漱區左側,以長虹玻璃推拉門隔出獨立淋浴房與如廁區,乾溼分離得很徹底。
淋浴房內鋪設黑色瓷磚,因為陽光可以照射進來,所以並不顯得昏暗逼仄,反而很有安全感。
馬桶放在推拉門右側的小角落,更大的空間留給淋浴,二者之間安裝透明玻璃隔斷,通透大氣。
由於Shaun對明衛的要求很高,於是在前期動線規劃前,就把第二扇門移到了靠近床頭的位置,直面採光窗。
門上貼了辦公室常用的漸變玻璃膜,擋人不擋光,陽光可以直射進淋浴房。
05
臥室:
床尾植入雙面櫃,雙動線更加便利
浴室的玻璃門出來可以直達臥室。
從客廳延伸至此的木飾面板,搭配四面白牆和灰色床品,營造出素雅、溫馨的睡眠氛圍。
床頭右側的大棵綠植,帶來生機勃勃的氣息,增添了不少張力。
雙人床對面,是與客廳共享的雙面櫃,櫃體做成半封閉半開放的形式,一點壓迫感都沒有。
開放式的區域當做書櫃,下方收納零碎物品。
床尾兩側都有通往客廳的出口,雙動線的設計讓進出動作更加自由。
在很多人眼裡,酒店風格是最沒有特點、最沒有煙火氣、最不值得借鑑到自己家中的。
但Shaun卻把家和酒店結合得恰到好處,在他看來,既然家的面積小,需要從顏值和實用性中做取捨,那麼自己就不要“麻雀雖小,五臟俱全”的設計,能在有限的面積裡,實現適合的“空曠感”就好了。
現在,房子裝完了,人也住進去了,沒有功能特別齊全且被塞得滿滿當當的家,反而讓他感到特別滿足、特別舒服。
圖片與素材由裡白設計工作室提供
