久旱逢甘露。
8月過半,僅1個樓盤提供新貨值的京城新房市場,本週一下拿出了5張預售證:萬科雲廬限競房、北京城建天壇府、長安悅璽、華樾國際領尚、金地璟宸。
值得關注的是,除萬科雲廬外,北京城建天壇府等4專案都是純新盤,產品涵蓋剛需、剛改和改善客戶,彌補了短期內市場供應的不足。預計4季度,北京新房市場將迎來新盤入市高峰。
- 北京城建天壇府
北京新盤最稀缺的區域不是朝陽和海淀,而是位於二環內的東、西二城。
二環,純新盤,小戶型…
幾個關鍵詞讓天壇府這個新盤,從一露面就聚焦了各路買房人的目光,熱度相當高。
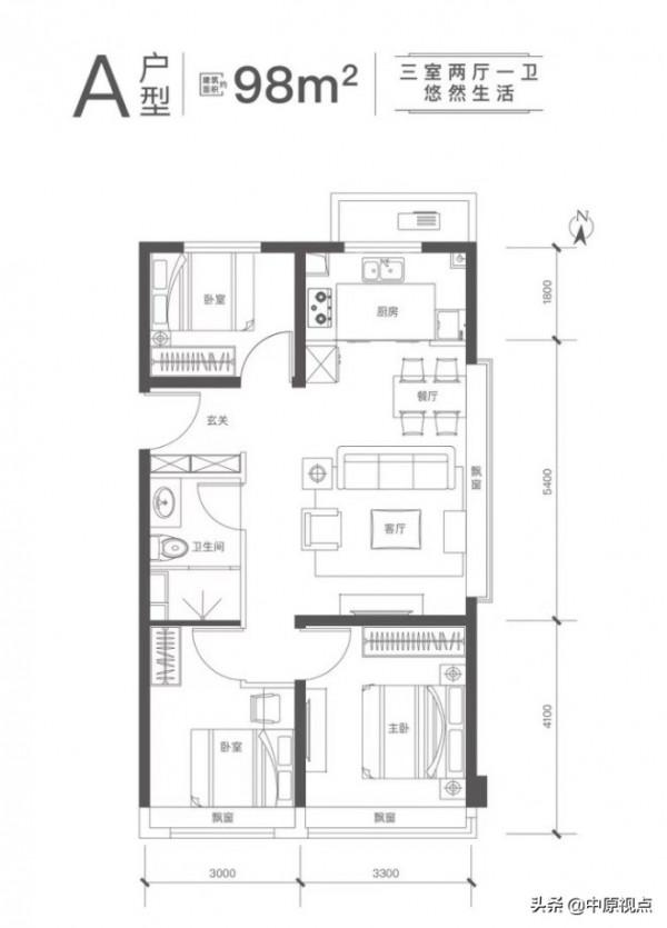
天壇府位於地處東城區景泰路與安樂林路交匯處,與天壇隔路相望,是目前二環唯一在售住宅專案。周邊有14號、8號、5號三條地鐵線透過,擁有內城成熟完善的配套和交通,絕版地段無可挑剔。
本次批准銷售房源約330套,小高層。戶型產品包括60㎡一居(僅36套),100㎡兩居,130㎡三居,其中130㎡三居佔據主力。
此次批覆的擬售均價11.7萬元/㎡,最高售價12.2萬元/㎡。目前周邊房齡十年的二手房成交價格11-12萬元/㎡,房價基本持平,首次開盤入市的天壇府相當具有競爭力。
- 長安悅璽
作為今年首批集中拿地的專案,長安悅璽從拿地到取得銷售許可證,僅用了3個月時間,率先跑步進場。
長安悅璽位於石景山衙門口,西五環內,共新增住宅917套新房源,此番全盤拿證。
長安悅璽是在長安和璽售罄後接力入市。相較長安和璽,長安悅璽從戶型到園林、精裝,都做了升級,戶型面積段更適合年輕客群。97/104㎡三居,122/124/138/152/173㎡四居。97㎡是面積最小的戶型,總價770萬起。南向面寬也達到了約9.3米,客廳、次臥、主臥三面朝南,享受充分的日照時間,主臥是獨立設計,格局方正。
小區共有14棟樓,其中有9層洋房、16~18層的小高層、27層的大高層。
雖然融創在產品力和操盤速度上相當給力,但面對北辛安、古城南街、五里坨三大板塊10來個在售專案,以及豐臺四五環之間樓盤的擠壓,長安悅璽要實現快速跑量的意願,還是也要打起12分的精神。
- 華樾國際領尚
朝陽最後一個限競房華樾國際領尚取證,讓垂涎金盞這個自貿新興區域的買房人躍躍欲試。
華樾國際領尚位於朝陽區東壩大街和機場二高速交叉路口西方向300米左右,此次提供690套新房源,和長安悅璽一樣,全盤拿證。
戶型面積為75㎡兩居(少量),96/98/100/101/119㎡三居,145㎡四居。98㎡三居,客廳朝東或者朝向,5.4米的面寬,採光和視角效果不錯。限售均價7.1萬元/㎡,總價500萬元左右,算得上是眼下朝陽價效比較高的上車盤。
華樾國際領尚目前所在區域相對有點荒,商業配套依賴東壩板塊,臨地鐵概念還沒落實。目前已經確定的是北京國際大資料交易所將落戶金盞,區域前景良好。
- 金地璟宸
房山屬於北京房價窪地,這幾年一直是樓市紅海之一。目前房山價格大約3萬+/㎡,房價低於朝陽、昌平、大興等其他區域,但存貨量較大的樓盤卻達到近30個,僅次於大興、順義等區域。
金地璟宸地處良鄉拱辰板塊,屬於房山老城區,配套相對完善。
專案為洋房產品,6層板樓,一梯兩戶設計。本次批准銷售住宅共168套,戶型建面約97-116㎡三居,132-149㎡四居。97㎡的三居,主臥和客廳朝南,客廳面寬3.85米,帶陽臺。主臥為套房設計,帶獨立衛生間。
金地璟宸擬售均價約4.3萬元/㎡。專案同一片區內,有在售樓盤中建京西印玥,戶型主力為73-106㎡2-4居洋房,均價4.3萬元/㎡,幾乎是直面挑戰。經過這幾年房山剛需和改善專案的輪番洗刷,區域內的地緣客戶已經消耗殆盡,金地璟宸的目標客戶將主要瞄準城區五環內客群。
專案距離最近的地鐵站蘇莊站和良鄉南關站,距離約為2.3公里左右,對於依仗地鐵通勤的上班族不太友好。
- 萬科雲廬限競房
萬科雲廬限競房位於豐臺區青龍湖公園東門約200米,緊鄰6000畝青龍湖生態景區。
此次拿證房源共有232套住宅,主推135平米洋房,另外還有330平米獨棟疊院。限定銷售均價4.2萬元/㎡。
萬科雲廬135㎡戶型佈局合理,該戶型南北通透,格局方正,配有景觀陽臺,客廳和兩個臥室三面朝南,採光充足,符合三口之家或三代同堂需求。
萬科雲廬周邊生活配套上並不完善,但是內部配套較為齊全。內部建設約8萬㎡的商業配套,2.8萬㎡的養老公寓,3000㎡國際雙語幼兒園。
雖然價格便宜,總價不算高,產品力表現優良,但萬科雲廬對於非地緣性剛需人群來說未必合適。專案交通上不是十分便利,距離西六環王佐橋高速出口約1.3公里,通往市區大多數區域公交都需要換乘,未來的地鐵14號線西延線,或許能緩解青龍湖板塊的出行難題。
文章內容來源自:中原視點-訂閱號,還有更多精彩內容哦~
