本案設計師
謝玉強
● 從業年限:6年
● 擅長風格:新中式,美式,日式,簡歐, 現代等
● 設計理念:設計是一種對藝術解讀的方式,我喜歡借空間設計來表達對生活質感的追求,愛家、愛生活就是我設計的初衷
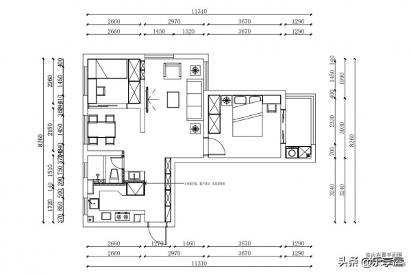
今天帶大家看一套小戶型的改造案例,這套房子裝修年代久遠,室內採光昏暗,牆面、線路也老化嚴重,業主夫妻在這裡生活了20多年,幾經週轉找到設計師,希望能改善兩口子的居住環境。
改造亮點:
1. 將廚房改為U型佈局,擴大操作空間;
2. 衛生間乾溼分離,方便使用;
3. 規劃了充足的儲物空間,用於減少生活中的繁雜瑣碎。
# 01 客餐廳
LIVINGROOM&DININGROOM
進門定製整排玄關櫃,增加儲物空間,吊頂明裝筒燈,簡單大氣。
餐廳通鋪白灰色地磚,好看易打理,簡單擺放桌椅,搭配精緻吊燈,享受兩人溫馨的用餐時光。
客廳作為業主平時最常使用的空間,溫馨且有質感是很有必要的,設計師根據業主的需求簡化背景,最大化保留空間感。
# 02 臥室
BEDROOM
主臥功能齊全,精心設計的衣帽櫃能滿足業主夫妻的衣物收納,用化妝臺代替床頭櫃,更加實用。
陽臺一邊作為洗衣區,一邊作為休閒區,曬曬太陽喝喝茶很是愜意。
次臥主要作為書房來使用,也兼顧收納、休息的功能,安裝玻璃移門讓空間更加通透敞亮。
# 03 廚衛
KITCHEN&BATHROOM
廚房改為U型佈局,操作空間更大,櫥櫃與牆地磚的顏色以白灰色為基調,更具現代時尚感。
衛生間做乾溼分離,使原有的衛浴空間變大,提高生活效率和舒適度。
