1月25日,北京市發展和改革委員會發布了關於朝陽區東壩鄉駒子房1106-720地塊F1住宅混合公建用地、1106-721地塊A33基礎教育用地專案核准延期的批覆的公告。
北京共泰房地產開發有限公司:
你單位《關於北京市朝陽區東壩鄉駒子房1106-720地塊F1住宅混合公建用地、1106-721地塊A33基礎教育用地專案核准延期的請示》(京共泰文〔2022〕1號)收悉。根據《建設工程規劃許可證》(2020規自[朝]建字0038號、0045號、0046號、2021規自[朝]建字0010號、0011號、0013號)、《不動產權證》(京〔2020〕[朝]不動產權第0014719號)等相關檔案,經研究,同意北京共泰房地產開發有限公司繼續開發建設朝陽區東壩鄉駒子房1106-720地塊F1住宅混合公建用地、1106-721地塊A33基礎教育用地專案。市發展改革委和市住房城鄉建設委《關於北京市朝陽區東壩鄉駒子房1106-720地塊F1住宅混合公建用地、1106-721地塊A33基礎教育用地專案核准的批覆》(京發改[核]〔2020〕37號)有效期延長至2023年2月3日。其他相關事宜仍按《關於北京市朝陽區東壩鄉駒子房1106-720地塊F1住宅混合公建用地、1106-721地塊A33基礎教育用地專案核准的批覆》(京發改[核]〔2020〕37號)檔案執行。
請據此辦理相關手續。
北京市發展和改革委員會
北京市住房和城鄉建設委員會
2022年1月21日
據瞭解,朝陽區東壩鄉駒子房1106-720地塊F1住宅混合公建用地、1106-721地塊A33基礎教育用地專案為東壩第三個共有產權房-首開錦鯉。
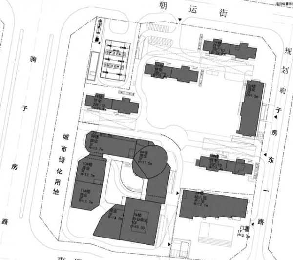
專案用地位於朝陽區東壩鄉駒子房。四至範圍為:東至規劃駒子房東一路,南至惠澤中街,西至駒子房路,北至朝運街。
專案規劃用地為1106-720地塊F1住宅混合公建用地(住宅配建商業),1106-721地塊A33基礎教育用地(幼兒園)。
總平面圖▲
公建部分-商業建築效果圖▲
共有產權房-效果圖▲
住宅用地1106-720地塊 —— 用地面積:27314.227㎡;總建築面積:124511.93㎡:容積率:3 ;建築高度:79.9米 ;建築密度:29.98%,綠地率:30%。
幼兒園-效果圖▲
教育用地1106-721地塊 —— 用地面積:4000㎡;總建築面積:4121㎡:容積率:0.9;建築高度:12.1米 ;建築密度:29.70%,綠地率:32%,基礎教育用地性質為公立幼兒園,規劃為9班幼兒園。
東壩鄰友圈公眾平臺(ID:dongba100)持續關注轄區住宅資訊,有最新訊息會第一時間向大家釋出,敬請關注!
