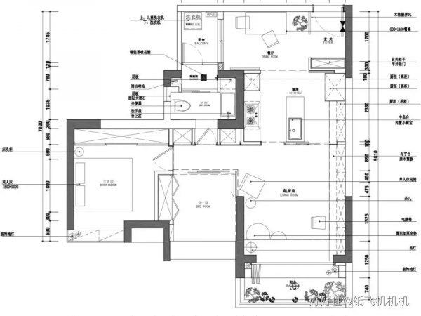
住友@紙飛機機機 的家,只有 60㎡。老實說,除了小了些,原始戶型也不算太差。
但她硬是腦洞大開,一番大破大立後,小空間竟然住出 120㎡ 的通透感。
不僅實現中西雙廚,超長工作臺,還整出 2 條洄游動線。
在她的設計邏輯之下,構築了一個「超強儲物+簡練舒適」的小戶型家居環境。
風格歸根到底是某個群體的生活方式,某個民族或國家的文化,如果拿不到靈魂,就只能流於表面形式。我的家並不想特意限定於某種風格,自然和舒適是我對家的所有追求。
——紙飛機機機
拆掉非承重牆,
打造洄游動線。
我喜歡通透敞亮的空間,原來的戶型是常見的小兩房佈局,中規中矩,但牆體過多,使得 60㎡ 的家,略顯侷促且昏暗。
改造前
好在大多數都不是承重牆,果斷拆拆拆:
①拆除原廚房部分牆體,廚房和餐廳對調;
②打通生活陽臺和衛生間的牆體,形成洄游動線;
③縮小部分次臥面積,增加儲物空間。
改造後
超長書桌代替沙發,
日式地臺成百變空間。
按照以往經驗,沙發主要用來堆衣服雜物,所以果斷捨棄沙發,把客廳原來的沙發位置改造成一家人的工作室。
3.7米的超長書桌,辦公學習&娛樂手工,毫無壓力。
很喜歡日式庭院裡的「簷廊」,雖然我沒有院子,但是很想在家裡實現有同樣功能的結構,於是在書桌靠近陽臺處,做了半懸空地臺。這是入住三年多,最不後悔的設計之一。
地臺下收納了掃地機器人的充電座。
除去曬太陽放空,地臺還承擔了來客人時入座的功能。3.4 米長的地臺,可以同時坐好幾個人。我們在對面房樑上安裝了幕布,地臺秒變觀影臺。
午休模式
會客模式
廚房和客廳之間安裝了幕布,拉下來就是觀影模式。
陽臺安裝了斷橋鋁摺疊門,冬天天氣好的時候拉開曬太陽,十分愜意。
儘管家面積不大,我還是選擇保留陽臺,畢竟這是家裡最寶貴的休閒空間,得留一塊地方給花花草草。
把地臺延伸到陽臺一部分,這樣陽臺也可以坐人了。
客廳的另一面原來是電視牆,我和家屬都沒有長時間看電視的習慣,把它改造成了小小的閱讀角。
如此一來,客廳變得非常寬敞,未來有了小孩也能隨意撒歡。
餐廚空間對調,
實現超高利用率。
原來廚房真是小到連冰箱都塞不下,別的廚電就更不用說了。拆掉廚房牆體後,把餐廳和廚房對調,空間利用率提升不止一倍。
整個廚房呈「三條豎線+兩條過道」的分佈: 從左至右依次是西廚區、mini 島臺、中廚區。
現在終於塞下了我最想要的現代廚房各類標配了。我還設定了高低檯面,老腰終於得到了解救。
我身高 172 cm,島臺高 92 cm,灶臺高 87 cm。
櫥櫃用的是陶瓷板材質,耐熱防潮,還很堅固。灶臺和西廚都選用了石英石臺面,非常耐磨,汙漬也能輕鬆擦掉。
中廚區的收納原則是易清潔,方便拿。常用調味品用分裝小瓶,放在臺面小架子上,鍋鏟大勺也掛出來,方便隨手取用。
牆面用的是人造石,很好清理。
其他調味料囤貨通通放進櫥櫃側面拉籃裡,內部還放了各種刀具筷勺,儘可能保持檯面整潔。
煤氣灶正下方兩個大抽屜,我還是選擇碗碟拉籃,通風透氣。上層放常用碗碟,下層放蒸魚盤、砂煲等大件。配有接水盤,打掃只需要抽出來清洗就好。
洗碗機下方也做了一個抽屜,收納洗碗塊等清潔用品。蒸盤、烤盤收在烤箱上面的櫃子裡,儘量縮短家務動線。
mini 島臺實現了我最想要的不鏽鋼檯面和水槽無縫一體,完美治癒潔癖和強迫症。水槽下是淨水器、廚寶、垃圾處理器等裝置區。
操作檯菜板下方的空位,留給高個兒垃圾桶。扔垃圾不用彎腰,也不用費勁瞄準,只要把垃圾從菜板上輕輕往下一推就好。
西廚區也是飲水區,宜家掛杆掛常用小工具,6 個插座並排,足夠廚房小家電使用。
各種乾貨雜糧、烘焙工具、大炒鍋…… 統統交給西廚區的地櫃和吊櫃。
廚房用玻璃推拉門做隔斷,一側隱藏在冰箱和牆面縫隙,另一側隱藏在木柵欄裡,大火爆炒時秒變封閉廚房。
砌牆拆牆,
能遮擋亦能透亮。
原來房屋的玄關是個細長的過道,光線昏暗不說,鞋櫃也只能買超薄款,現在終於有了一個像樣的玄關。
砌薄牆安裝玄關櫃作為隔斷,既可以遮擋視線又可以儲物。側面木屏風也起到了遮擋效果。
玄關櫃上面放雜物工具和外出揹包;兩個小抽屜放零碎物品;下面放鞋;中間留一小塊空位給了招財貓。
櫃門全部用反彈器,沒有安裝把手。
外套衣服掛在 Umbra 小梯子上,不用擔心針織類衣服容易變形。
原本封閉廚房的位置,現在改成了開放式餐廳。
從廚房看向餐廳。
摺疊餐桌也時常被開闢成第二辦公桌,展開後坐 6 個人毫無壓力。
拆掉牆體和原本生活陽臺的門,改成寬大玻璃推拉門,餐廳從陰暗角落變身成了溫暖明亮的空間。
原本在餐廳規劃的電視位,入住後用一幅畫代替,在畫下增加了定製餐邊櫃。
衛生間雙開門,
最佳化家務動線。
原來衛生間只有 3㎡,幾乎小到蹲馬桶都伸不開腿。打掉衛生間和生活陽臺的牆,向外擴充套件 20 cm,收穫淋浴區;原來衛生間的房門也向外移位,增加儲物空間。
改造後
改造前
滑動檢視衛生間舊戶型圖
拆掉衛生間和生活陽臺之間的非承重牆,換成磨砂玻璃門,這是家裡第二處洄游動線,我擁有了一個採光和通風都非常無敵的衛生間。
用懸空實木檯面+臺上盆,告別傳統浴室櫃。臺盆下方做牆排水,地面沒有下水管道,方便打掃衛生,消滅了幹區衛生死角。懸空位置放了髒衣簍和貓砂盆。
在廣州潮溼天氣也不用擔心水汽聚在浴室櫃引起發黴。
側面的大隔板滿足日常的置物需求。黃銅掛杆掛毛巾,剛好可以遮擋雜亂。
洗漱區對面是如廁區。牆面儘可能留白,戶型再小,也要給視線喘息空間。
馬桶旁加裝了噴槍,打掃更加方便。
淋浴區頂部安裝的是松下風暖浴霸,冬天可以取暖,平時用來吹乾換氣,加一根免釘的浴簾杆,可以順便把洗澡毛巾吹乾。
用壁掛皂液器,解決洗髮露沐浴露的收納,再也不會有黏黏的瓶底需要清洗。
淋浴摺疊凳,懶人必備。用來踩腳,方便洗腿腳,總是金雞獨立式洗腳有點危險哈。出於安全考慮,也安裝了防滑扶手。
淋浴完直接拿衣服到生活陽臺,縮短洗衣動線。
洗衣機下面的大抽屜負責生活陽臺的收納。
原來衛生間門往外移,門外加裝了兩個大儲物櫃,解決衛生間的儲物問題。內部用可拆卸的金屬小架子分割,方便調節改動。
把儲物空間安排到衛生間門外,避免廣州的潮溼天氣影響,同時也解放衛生間。
睡覺空間不必大,
靈活多變最重要。
主臥空間小,除了床之外就沒有多餘傢俱了。床底沒有儲物,清爽通風不聚潮氣,同時也減少了塵蟎滋生,對過敏性鼻炎的家屬很友好。
臥室門右邊是衣櫃,原來主臥門在最右邊,現在門往左移一段位置,讓位給衣櫃,這樣衣櫃空間就更大了。
衣櫃直接在房間牆面用宜家艾格特,靈活多變。最外裝吊軌推拉門,不需要任何櫃體櫃板。
飄窗下打了木格子,用箱子做儲物,上面鋪的人造石,是貓咪最常睡覺的地方。
次臥在客廳電視牆背後,拆牆後現在是一個只有半堵牆的狀態,連門都沒有。
放了橢圓機,什麼傢俱都沒有,完全保持空白。
儘量留白,以後改動的空間也大,畢竟現在裝修理念更新換代很快。
次臥櫃子暫時是手辦的家,內部沒有任何隔板,只放了宜家玻璃置物架。以後如果需要其他儲物,把東西搬出來,立馬可以改造。
有住友說,@紙飛機機機 的家簡直就是理性居家典範:勇於打破常規,從需求出發,在有限空間內實現最優解。
在我看來,她的家不僅是腦洞大開的理性實用指南,也有她難以割捨的精神空間——空間再小,總有一方土地留給花花草草。
