“在關島工作了幾十年後,一對退休夫婦準備回到美國,在曼哈頓海灘的附近安家。客戶自己對退休生活的想法很陌生,他們帶著獨特的設計挑戰來重塑住宅的形式,退休後的家對他們來說會是什麼樣子?”
基奧住宅
一方面這對夫婦只是作為空巢老人生活,所以他們自己不需要太多的空間,但另一方面他們希望有空間舒適地定期舉辦家庭聚會。他們的退休居所顯然是為了讓家人保持親密關係,因此設計了一個足夠全家人使用空間的家,同時保證夫妻日常生活的實用性。
01效果圖
外觀採用了現代的設計手法,透過有機材料的合理應用,讓住宅變得更加美觀特別。立面線條與體塊的處理,讓住宅在前後有高差的場地上,與鄰近的房屋更加和諧且沒有侵略性。
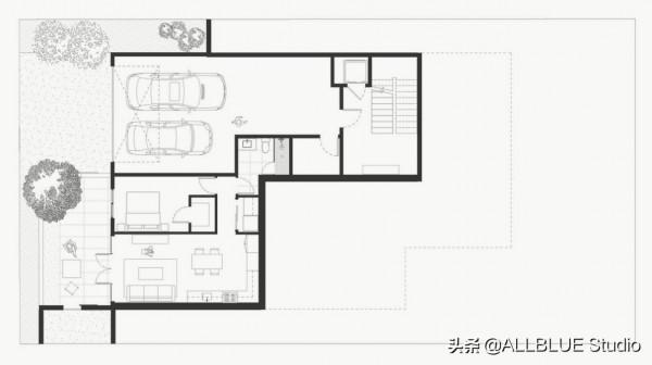
02平面圖
為了在家中養老,平面圖佈局經過專門組織以滿足主人輕鬆的舒適生活,從日常的角度來看這對夫婦並不需要太多空間。事實上他們強調少即是多,更多隻是意味著更多的清潔和整理,這是退休人員不想處理的兩件事。
![]()
地下室是一個完全獨立的附屬住宅單元,非常適合作為出租單元、供長期居住的親戚使用,或者用作保姆的住所。
![]()
一層擁有寬敞的廚房與客餐廳,儲藏洗衣空間以及通往戶外陽臺的主人套房,從車篷進出房子無需穿過任何樓梯。
![]()
二層可以根據家庭需要成為靈活的空間,當客人前來家中留宿時,三間臥室和起居室提供了充足舒適的使用空間。
03室內圖
出現了五個設計優先事項:隱私、光線、靈活性、功能和比例,該設計旨在捕捉儘可能多的自然光又能夠遮擋路人的視線,這種材料同時為過濾光和保護隱私提供了一種美麗的解決方案。平面的功能佈局給使用者提供了更多的靈活性,並將所有生活所需的功能空間囊括其中,室內比例的處理帶給主人更多的溫馨舒適感。
由此產生的設計是一個動態的三層住宅,透過使用有機材料既能達到現代感,又能保持沉靜感。易清潔、明亮開放且精緻,我們可以聽到孫子們在宅內玩耍的歡聲笑語,住宅不再只是用來居住的機器而是變成一種獨特的宣言。
