圖壟者設計:複式住宅最大的特點是上、下兩層之間的空間關係,使家庭擁有更獨立的空間,並保持一碗湯的距離。
這是一個裝飾盒,今天與大家分享。這是180對天津人。M2新房子。私人雙工.樓上有一些傾斜的屋頂,所以二樓有一些閣樓區域。整個房子裝飾以淺灰色、白色、多層木色為基礎,營造出充滿詩意的生活,帶有濃厚的自然氛圍。所有的空間都得到了廣泛的利用,但空氣非常清新,所以人們一走進房間就被吸引住了。居住在舒適、舒適、美麗、溫暖的室內!我忍不住嘆了口氣:當我換房子的時候,我必須像房東一樣買房子,像閣樓一樣。學會裝飾自己的房子是最好的!陽光。
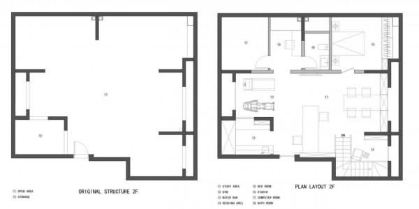
平面佈置圖
▲一層平面設計圖
182㎡, 這是整個房子的可用面積。整個房子的設計很好,照明也很好。店主和他的妻子都是優秀的媒體從業者。目前,這對夫婦生活在不同的工作和休息時間。他們忙於工作,經常在家工作。利用複式建築,他們在屋簷下有自己的獨立生活區,可以在任何時候相互照顧而不受干擾。
一層休息區和公共區劃分為清晰的動靜分隔,並對每個關鍵腳進行儲存功能。
▲二層平面設計圖
在二樓的空間裡,男主人和女主人的工作時間完全不重疊,互不干擾,樓梯遠離臥室,樓梯上下都不會有噪音,另一半在臥室裡為了休息。如果主人工作到很晚,他可以直接在二樓休息。
讓我們來看看房子裡的真實場景吧!
▲客廳看過道的視角
從這個角度,我們可以清楚地看到客廳和餐廳的空間關係和模式。整個裝修非常自然清新。有了高質量的照明,人們一進屋就會感到非常放鬆。淺灰色木材顏色的使用起著至關重要的作用,而減壓是非常重要的。在鏡頭深處,你可以看到大廳區域。右邊是一個嵌入式鞋櫃,有整面牆和預留區域,用於掏空中底、換鞋和掛衣服。功能強大,儲存空間充足。
木質牆板安裝在電視牆旁邊的牆壁結構中,與鞋櫃的顏色融為一體,在這裡創造了一扇看不見的門,完美地減少了突兀感。
▲餐廳設計
餐廳的左側靠近廚房,有一個小陽臺。對於業主和妻子來說,他們通常會花很多時間在家裡,因此廚房和餐廳的使用相對頻繁。為了提高實用性,這裡不僅建造了一個卡座餐椅,還設計了一個水吧,完美地利用了空間,同時還展示了煙花的氣味。
卡片座椅巧妙地利用了角落結構,可以坐人和存放物品。
另一邊酒吧區的設計也特別巧妙。L型模式是安裝水槽,連線淨水器,開啟水龍頭直接喝水,第一次進屋洗手。這張桌子主要用來展示咖啡機和杯子。它相當於一種飲用水。當你又累又渴的時候,直接來這裡喝水非常方便。
櫃式儲物還採用了“藏八露二”的概念,並採用適當的鏤空區域對儲物筐進行分類存放,一目瞭然,具有濃郁的生活氣息。
▲客廳設計
對於主人夫婦來說,客廳經常使用,但觀看頻率很低。他們通常接觸大量的電子產品。在客廳裡,這對夫婦喜歡安靜地休息,所以他們放棄了正常佈局下的電視功能。
取而代之的是投影螢幕的形式,不用時可以隱藏,以減少視覺突然性,便於管理。
客廳之所以如此寬敞,是因為陽臺空間的整合。整個效果充滿天然風味。陽光下這個家的溫暖令人嚮往。自然的木色調與米色布藝沙發、圓形木茶几、灰色多功能牆、點綴著綠色植物相搭配,氛圍非常好!
定製電視櫃的設計也特別巧妙。挖空的區域存放在統一的儲物箱中,乾淨整潔,大大提高了生活效率。
特寫鏡頭拍攝後,發現沙發右側的桶形櫥櫃紋理非常豐富。這是一幅手邊拍攝的美麗畫面。
▲廚房設計
封閉式u型佈局真正完美地利用了廚房空間,完美地容納了情侶同時操作,手柄非常方便。當你轉身時,你可以照顧並使用每個區域。
廚房的佈局讓人們一眼就知道這是一對會生活的夫婦~
▲一樓的臥室門口
臥室的門上設計了一個貓洞,因為家裡有小貓,這便於寵物進出。同時,它離浴室很近。地面鋪有石塊,以便更好地保護和維護地面。
▲主人臥室
工作和生活壓力太大。臥室採用氛圍燈而不是主燈。開燈後,光線乾淨、清新、分層、均勻,無突變感。主臥沒有大衣櫃,只有角落裡的小桶櫃和普通衣架,可以確保主臥空間儘可能寬敞舒適。
床櫃也呈懸吊狀,底部為空腔,增加了可視亮度,便於清洗。
正確使用配置的卡式座椅櫃,創造舒適的假窗臺空間,完成主臥室的雜物存放功能。主人喜歡在睡覺前看書,空櫃子便於存放各種書籍。
▲一層衛生間
整棟房子有兩個原始設計的廁所,都在一樓和旁邊(二樓只有管道)。考慮到使用頻率和常住人口,一樓的雙衛生間已改造為三個獨立衛生間。
上面的區域是洗漱區和衛生間區,為了方便,可以分開使用。乾燥區域的兩側都有足夠的儲存功能,暗鏡櫃的設計還可以儲存多個瓶子和罐子。
另一邊是一個潮溼的區域,有單獨的淋浴和浴室。完美的乾溼分離。洗衣房也建在門口,配備了洗衣烘乾裝置,生活質量很高。
▲主人衣帽間
你看到衣櫃了嗎?在電視牆右側的隱形門開啟,進入後你可以看到很大的衣帽間。
▲樓梯間
▲二層
這位男性客戶是《科技自媒體》的主編。他的工作又忙又忙。二樓有一些閣樓區,他在那裡為大二的時候建了一個寬敞的辦公區。
雖然這是一個辦公區,但角落裡的儲存設計非常值得讀者學習。櫥櫃儲物籃的儲存形式非常適合儲存許多零碎的物品。
如果你晚上需要加班,男人在這裡工作時會發出噪音,這不會打擾睡在樓下的妻子。二樓有一個單獨的房間。如果你工作到很晚,你可以獨自在客房休息。上下兩層都在同一屋簷下,保持著一碗湯的距離~作為同行,我也很期待這樣的房子。
圖壟者設計持續更新作品,在評論區聊天~私信瞭解裝修小知識。
