大家好,我是本設家居,為大家帶來不同風格的家居方案,分享裝修的各種經驗和知識。關注我,或許可以在家居裝修這件事上,提供一些建議和參考。
這套面積125㎡四居室小宅,是我見過最有生活氣息的家,全屋以原木白為主基調,每一塊木頭都表達著它的脾氣。當陽光穿過白色玻璃窗的紗簾,好像灑滿了金黃色的光粉,將實木的自然紋理,染上一抹潤澤黃暈,營造出一種溫潤質感的家居氛圍。或許看起來不豪華,也沒有美過樣板間,卻伴隨著五口之家的生活漫步,讓一家人感受幸福自在,超暖人心。
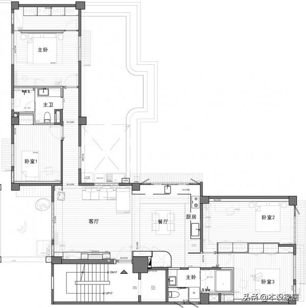
平面佈置圖
L型的房子雖然面積不小,每個空間都有獨立的自然採光,但不規則的形狀讓平面佈局增加難度,容易導致空間浪費。根據家庭成員和生活習慣,將客廳和餐廚佈置在中間,上方佈置主臥和弟弟的臥室,右側分別是姐姐和另一個弟弟的臥室。
客廳
入戶玄關與客廳相結合,回家便能看到大空間,地面滿鋪實木地板,從玄關一直延伸到客廳、餐廳、廚房和臥室,有種豁然開朗的視覺感,難怪那麼多人喜歡原木飾面,真的好溫馨。在收納櫃上,設計得非常巧妙,左邊在電視背景牆上打造小型的層板櫃,方便放置鑰匙等小件物品,拿取方便。右邊是到頂儲物櫃,把生活用品和常穿的鞋靴衣物有序納入其中,留出更大空間供孩子玩樂。
客廳擁有寬大的落地玻璃窗,沙發背面還有一個窗戶,採光充足。摒棄多餘的造型,無吊頂,無主燈,滿鋪實木地板,大面積留白,搭配一組L型簡約沙發,實木底座與空間相呼應,給人乾淨清爽感覺。在靠近落地窗的位置,製作一個開放式的層板櫃,放置兒童書籍和玩具。大家可以仔細看,電視櫃和儲物櫃的轉角採用弧形造型,看起來很圓潤,也減少孩子磕碰受傷。
餐廳 廚房
開放式的餐廳和廚房在客廳的一邊,一字型的排列讓視線得到無限延伸,女主人在烹飪時也能照看孩子。
橢圓形的實木餐桌,搭配四張不同造型的實木餐椅,細膩的質感和圓潤的造型,無需繽紛的色彩與複雜的結構來烘托,便能演繹出溫暖沉穩的空間氛圍。從傢俱的造型上看,每個細節都表達出父母對孩子的愛護。
廚房使用成套的啞光不鏽鋼櫥櫃,不僅耐用,也方便清潔衛生。長方形的窗戶,將自然景觀框入屋內,無論是烹飪還是就餐,都讓人近距離感受窗外季節更替,好幸福。
主臥
主臥設計延續客餐廳的原木白風格,雙面採光讓空間看起來通透明亮,清晨時,看看綠樹成蔭的風景,特別解壓。床頭背景牆採用疊級原木造型,並且暗藏LED暖光燈帶,搭配米白色床品,乾淨利落,打造晚間暖意融融的氛圍。衣帽間佈置在床頭背景牆後邊,採用木質隱框門,讓牆面更完整,即使多年以後,經歷歲月打磨,依然散發出動人的魅力。
姐姐房
弟弟房
孩子房間大致相同,除了實木床和儲物櫃外,還定製了可放置小物品的床背板。有愛的爸爸還特意為女兒從日本購買的原木手工電鋼琴,與空間相輔相成。空閒之餘,聽一首悅耳的曲目,為生活加點糖。
主衛
次衛
主衛和次衛分佈在房屋的兩端,牆地面採用暖灰色磚,搭配木質洗手檯和鏡面櫃,呈現出一種淡淡的禪意風,潔具和五金安裝在合適的高度,無論是泡澡還是淋浴,都能充分享受那份暢快淋漓的愉悅感。
看完全文,你喜歡這樣佈置的家居嗎?請在評論區留下你獨特的見解,謝謝!如果文章對你有所幫助,請關注我,關注本設計,後續將有更多的精彩內容為你呈現!
