設計 / 品質 / 生活
Temperature of Love

    朝南的客廳每天都是陽光四溢,奶白色的沙發和地毯總會讓人產生慵懶感,這也是在家最放鬆的狀態了。

    沙發後方是展示區,平時可以放一些小音箱和方便隨手拿放的東西。木質和鐵藝的結合更是體現細節,冷暖材質的搭配讓空間顯得更加豐富。

    打破牆體帶來的空間界限,將客餐廳連為一體,這也是當下年輕人最喜歡的互動模式了,讓空間得到更高的利用率。
    餐區採用的是定製傢俱,吧檯和餐桌結合後,下部空間沒有過多的桌腳來佔用空間,平時可以把餐椅收到桌子下面。

    電視放在客廳和餐廳廚房的中間,後面配備雙向旋轉支架,可以滿足無論是在客廳休息、餐桌吃飯還是廚房下廚的時候都可以看到,所有的管線及插座全部隱藏在了下方的小盒子裡。
    右側是入戶門的位置,洞洞板使用起來更加便捷,高低都可以隨時調節。

    公共區域的弧形元素讓過道和陽角的位置變得柔和,頂部的水波紋不鏽鋼就像是餐桌的倒影一樣。櫥櫃和島臺均採用了不鏽鋼材質,整體更加統一。

    沙發後面的櫃子承擔著家裡雜物收納的作用,這樣才能使外部更加整潔秩序。

    餐桌處的柱子既起到了檯面的支撐作用,又很好的隱藏了燈具的走線。

    進門處透過薄厚尺寸不一的櫃體將鞋和掛衣空間區分,轉角弧形的位置是零食櫃。

    島臺下面是專門放碗盤的抽屜,電視側牆凹龕可以放一些瓶瓶罐罐的小件用品。
    透過來的吧檯對面留出了貓砂盆的位置,白天的時候貓咪也很喜歡在陽臺上曬太陽。後方的櫃門全部採用了洞洞板的形式,內部則是貓糧、貓砂的存放區。

    床頭背景是超薄石材和木飾面的結合,同時預留了一整條光帶,晚上的時候氛圍光十分舒適。
    玻璃門內是一層簾子,保證了書房轉化為臥室的私密性。

    靠近窗戶的位置是下翻床,平時不用的時候就隱藏起來,讓活動空間變得更大一些。

    書桌是定製的,把所有的開關插座全部隱藏在板子後面,中部留出穿線的位置,這樣就減少桌面全是充電線的凌亂感。


    書房的多變功能,可以容納偶爾留宿的朋友,也可以當做男主加班工作(打遊戲)的空間,同時也可以作為未來兒童房的延續。

    書房也是南向採光,陽光同樣十分充足,可以偶爾彈彈吉他、看看書。

    客衛的淋浴區和馬桶區分開使用,靠近外側是家政間,洗衣機烘乾機的旁邊預留了髒衣籃的空間。

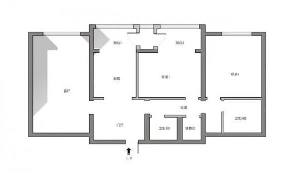
    原始的平面四平八穩,130平兩居的格局下,動靜分割槽超明確,各功能區邊邊角角見縫插針,深刻感受“住宅是居住的機器”,沒什麼空間感的同時還十分無趣:
1.陽臺巨大的採光面,被廚房和臥室瓜分為二,看上去誰都不虧,卻讓入戶空間失了一分明媚;
2.門廳一側衛生間儲物間沿過道分設,略顯雜亂不說,離公區之遠,讓如廁成為一次室內的跋涉;
3.廚房霸佔了一個陽臺的空間十分奢侈,若想做出餐區,怕是得去客廳分一杯羹來;
4.新婚的二人世界裡,兩居的空間暫時有點雞肋,全無個性化空間的地位。
    改造後:
1.中庭的次臥連通原先的廚房,破除多餘的遮擋後,改為一體化LDK空間,一舉將超大采光面的陽臺內包,從入戶開始實現陽光自由。
2.餐桌一側改不掉的承重牆則直接袒露在外,旋轉掛壁做電視支架上牆,滿足實用功用的同時,也賦空間一種獨特的建築美感;
3.原客廳空間一分為二,改了書房+衣帽間的所在,方便年輕人在家工作、閱讀,隱形摺疊床上牆,需要的時候隨時變身客臥,十分靈便;
4.主衛盥洗區外接,做出三分離的主衛空間,景觀式盥洗區設計,讓外露的功能性空間也成為室內的裝飾元素。
5.次衛連通原先的儲物空間作出家務區,改造後的三分離式衛生間也更加實用方便。
現在的家中,1/3留給工作,1/3留給生活,1/3留給小兩口自己。我們希望,住宅之於他們,是居住的機器,也將會是詩意的存在
設計師的更多作品,
歡迎進入下方小程式檢視哦~


















 
			 
			 
			 
			 
			 
			 
			 
			 
			 
			 
			 
			 
			 
			 
			 
			 
			 
			