現代簡約風格是近年來流行的風格,裝飾效果簡潔但不單調。簡約風格的裝修是精簡房屋各部分的設計,精簡的設計空間通常是含蓄的,可以達到以以少勝多、以簡勝繁的效果。現代簡約風格的另一個特點是注重實用性。在傢俱配飾方面,主要是實用和功能性的,並且不會花很多心思在花哨裝飾品上。過多的花哨裝飾品,例如桌子上的許多小裝飾品,不僅不會增加裝飾效果的美感,反而會破壞現代簡約的整體風格。
好的客廳裝修可以為整個家庭的裝修效果增光添彩,流行的傢俱、家電、大幅攝影彩照,可使你家氣韻不凡、四壁生輝;可以完全體現主人的品味。
黑白黑的配比創造簡約鮮明的視覺張力,嵌入式收納格裝有燈帶優雅高階又不乏空間穿透性
玄關和走廊地板嵌入一條LED燈帶引導視線向內探索
整個牆壁都被木飾面櫃體包裹,拉起空間軸線整個牆壁都被木飾面櫃體包裹,拉起空間軸線
整個牆壁都被木飾面櫃體包裹,拉起空間軸線整個牆壁都被木飾面櫃體包裹,拉起空間軸線
米灰色布藝沙發和絨面地毯,增添柔和溫馨氣息牆壁中的軌道等個性時尚,兼具裝飾和功能性
臥室怎麼裝修?很多時候臥室不止是睡覺的地方,它還要同時承擔工作、儲物、吃吃喝喝等功能,想想你每天要在臥室裡虛度大把時光,令人感覺舒服的臥室就尤為重要了。臥室裝修一定要符合自己的生活方式,在設計方案時要提前考慮到位,避免後期出現裝修遺憾。
臥室以木地板搭配白牆,床頭背景牆加入澡綠色軟包造型作為點綴,為簡約空間增加更多層次的變化
白色燈帶組合成四四方方的線框,給人以無限開闊的深邃空間感
考慮到女主人收納衣物的需求,沿著牆壁規劃一體式衣櫃、壁龕整齊對稱的切割面線條感十足考慮到女主人收納衣物的需求,沿著牆壁規劃一體式衣櫃、壁龕整齊對稱的切割面線條感十足
衛生間雖然是家中佔地面積最小的區域,但是裝修的時候是萬萬不可忽視的,防水工程,牆地磚鋪貼,衛浴的選擇一樣都不可忽視,衛生間隔斷是如今衛生間使用最為廣泛的一類裝修裝飾用具,可以在衛生間做一些隔斷,增加儲物空間!
淋浴房以玻璃門做分隔乾溼分離的設計實用又美觀
衛浴空間整體是黑灰調性,洗手檯上方米白色壁磚搭配大理石臺面、木質擱板,堆疊出高階的質感
廚房是家中使用頻率最多的地方,所以我們在廚房裝修材料的選擇上一定要慎重,避免以後使用帶來不必要的麻煩,廚房裝修材料尤其不建議選用亞光磚,亞光磚因為表面不光滑,所以打理起來很不方便。
廚房中部料理區採用純白色調,向上延伸至天花板
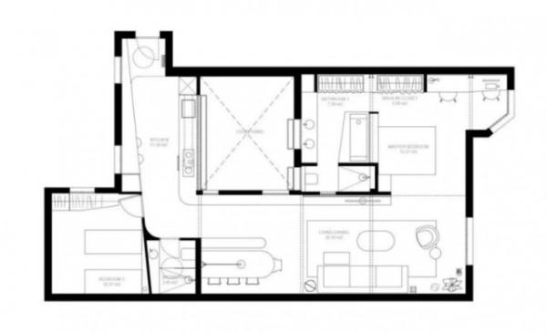
如何在只有56㎡的面積內建立功能完善又明亮舒適的居住空間,是本案設計的一大挑戰
