每一個家都有著獨特的氣味與溫度,而喜歡中式的人,骨子裡的溫情總帶著一點別樣的風韻。
木頭上關於時間的印記,傢俱上傳統文化符號帶來的歷史記憶,溫潤內斂的木色裡,不經意間流露出的溫馨和親切,或輕盈素樸,或簡單大方,或端莊穩重……讓人沉醉
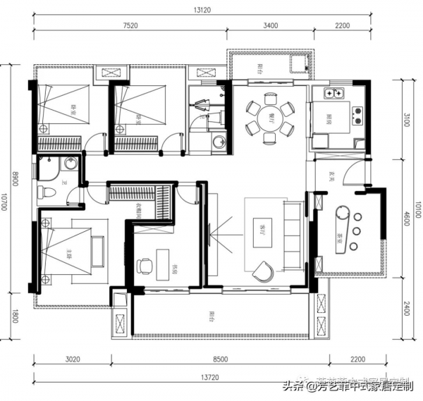
戶 型 圖
這套房子實地面積是143㎡,戶型方正利用率很高。不過,房間多了每一個空間的面積就相應地變小, 小空間裝中式最忌擁擠和笨重,如何才能展現中式的風雅、清正呢?
一起來看看下面這套方案~
傢俱主材:黑檀木+黑胡桃木
傢俱主色:棕木色
家居空間:客廳+餐廳+茶室+書房+主臥+次臥+兒童房
傢俱預算:16w
客廳傢俱方案
考慮到家裡有小孩,想給娃留一點活動空間,所以沙發選擇了尺寸相對偏小的,留有餘量的空間看起來就很從容。
黑檀材質,加上超厚的坐墊,簡單的款式裡,中式的那種穩重和優雅一眼就能感受到。
1.沙發組合
這套沙發體量不是很大,黑檀材質框架彰顯中式的氣度,布藝坐墊自帶鬆軟屬性,一深一淺色彩對比鮮明,中和了深色的“沉重”感,多了幾分輕鬆自帶,家也變得親切起來。
光潔的表面,圓潤的轉角,精緻的黃銅飾件,輕盈的格柵設計,細節上的講究一點一點累積起來,就是完美。
餐廳傢俱方案
位置偏正方形,這種時候當然要選圓桌啦!夾菜方便可以照顧到每一個人,和每一個人都有面對面的視角,將“團圓”的概念融入每一頓飯的時光。
1.餐桌椅
餐桌椅也是黑檀材質,餐椅的靠背採用了圓潤的大倒角+格柵設計,從顏色、質感、設計元素上一一呼應了客廳傢俱,極具整體感。
2.餐邊櫃
對於餐邊櫃,我只有一個態度:只要空間放得下,餐邊櫃一定要買,可大可小但不能少。
有了餐邊櫃,一來餐廳不至於空蕩蕩的,看起來和諧些;二來杯子、紙巾、瓶瓶罐罐這些東西就可以收納進餐邊櫃,整潔度直線提升,越看越舒服。
陽臺傢俱方案
只消閒處遇平生。寬大的陽臺視野超級好,養幾盆花花草草,再搬兩把單人休閒椅過來,就著一隻小圓幾,從此春花秋月盡收眼底。
1.休閒椅
黑檀材質的休閒椅,表面光潔順滑,質感如包漿。椅子的造型是以傳統的圈椅為原型改良設計的,圓潤流暢的線條從扶手過渡到靠背、搭腦,漂亮得如同藝術品!
茶室傢俱方案
汲來江水烹新茗。一盞茶,幾縷香,一間素淨的茶室,為生活平添許多悠閒和禪意。生活再忙也要有一個安放心靈的空間,閒暇處才是生活~
1.茶桌椅
茶室、書房、臥室這些空間裡,傢俱選擇的多為黑胡桃材質。黑胡桃本身是自帶禪意的木材,油性很小,那種啞光的質感,流暢的山形紋理,有點深又有點暖的顏色,處處都透著“素”、“雅”二字。
這張茶桌是異形的,像一個有點扁的豌豆,邀上二三好友共同品茗,親密無間。
2.茶水櫃
茶桌旁最不能少的,就是茶水櫃了。簡直就是完美的後勤,有了它才有品茶的從容和悠閒。
3.博古架
最後靠牆再放一博古架,各色雅玩擺件書籍擺上去,茶室才算是完整了。品茶之餘,也要來一點別的消遣才好。
書房傢俱方案
吹滅讀書燈,一身都是月。
讀書使人明智,書房亦是一個家庭文化品位的體現,這兩年疫情之下,很多人都感受到了書房的重要性。將學習和工作融入生活,也能提高人的學習能力和自制力。
1.書架
這是一套組合書架,上圖是4個不同的櫃子組合在一起的,寬度分別有60/80/110cm三種。這種組合櫃使用起來很靈活,可以根據空間大小來調整數量和款式,很方便,也不失古典韻味。
2.書桌椅
書椅是經典的四出頭官帽椅,整把椅子線條伸展自信,配上端正的書桌,心在一瞬間就能靜下來。
從佈局到陳列,從色調到材質,那種從容和低調可以讓人集中注意力。
主臥傢俱方案
主臥選擇了木色和米白為主要色調,在明亮的光線下,黑胡桃木的暖意會被最大程度激發出來,那種溫馨無可替代。
1.床+床頭櫃
床頭真皮軟包,可以舒服得靠著;床板排骨架排列緊密支撐性好;黑胡桃框架穩定不搖晃;高腳設計透氣通風,掃地機器人可自由進出……
整張床帶著一種溫柔的親切感,給人營造一個安心的睡眠環境。
2.床尾凳
床尾凳三色可選。有點小潔癖的業主沒洗澡不喜歡坐床上,一張床尾凳算是解決大問題了。
3.衣帽架
床頭櫃撤掉一個,替換成衣帽架會方便很多。下方抽屜依然可以存放東西,上方的掛鉤就可以掛衣服、圍巾、帽子等,很方便。
次臥傢俱方案
次臥是父母房,老人家喜歡清靜,素雅的色調很是柔和。
1.床+床頭櫃
床頭採用回字形設計,整體通透靈動,虛實結合;床尾設計靈感源於蘇作牙板,線條簡化,連線穩固又美觀。
兒童房傢俱方案
1.兒童床+床頭櫃
兒童床採用的是櫸木材質,清淺的原木色更顯陽光清透,很適合孩童心性。1.2米的寬度完全夠用,而且還不擁擠,讓房間看起來寬敞明亮,孩子相當喜歡。
★★★
今天的方案就介紹到這裡。
總的來說,公共區域選擇的是以黑檀為主材的傢俱,綴以少量金屬飾件,整體氛圍有幾分端莊和輕奢,論氣場排面兒那是足足的。而臥室書房空間則以黑胡桃木為主,主打素雅溫柔,讓人放鬆舒適。
PS:傢俱的選擇僅供參考,尺寸、顏色、木材、軟包面料等方面都是可以更換的哦,因為是【定製】嘛~
···
關注我,和您一起創造更美好的中式生活
