文字來自建築師:自從我接觸這件事至今已經有三年半多了。設計週期為一年半。建設工期為2年。我參與這項工作已經將近 4 年了。
該專案計劃的提出是為了對業主父母的房屋進行抗震改造,該房屋之前作為業主公司的招待所已經發揮了作用,改造的同時增強了作為招待所的功能。
中心的主屋是一座約70年曆史的雙層木屋,保留了傳統的日式風格。這個正房的一樓的榻榻米房間被用作主要客房。主樓北側增設一間茶室,內設三席中板亭,並設有陪座。在西北角,建造了一個帶有兩層板倉製作廚房的新儲藏室。沿著穿過南側日本花園的道路設立了一個兼作該設施大門的新辦公室。一樓正對著二樓的辦公間,懸挑部分有儲藏室和休息室。
在使用傳統的木結構的同時,還結合了木構建築連線件等現代技術,建造了趨於傳統風格的現代木結構。
雖然在這個專案中,一邊對以往住宅中沒有使用過的木材體積規模感到困惑,一邊為只對每個人賦予尺寸的工作感到不安,但想象著組裝起來的時候是無比的興奮感。在實際組裝的那一刻,我曾一度被陌生的架構迷惑,但隨著時間的推移,我覺得我給的尺寸應該沒有太大的錯誤。
也許當這座建築最美的時候,我早就離開了這個世界。我只是祈禱,在遙遠的未來,這座建築會注入更多的愛。
▼住宅夜景
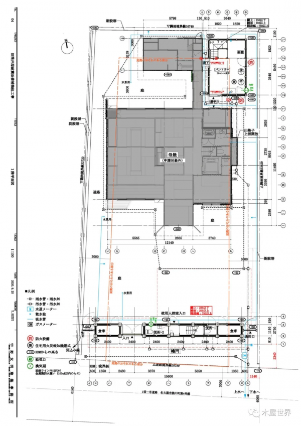
▼一層平面圖
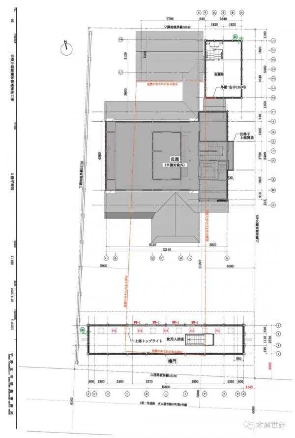
▼二層平面圖
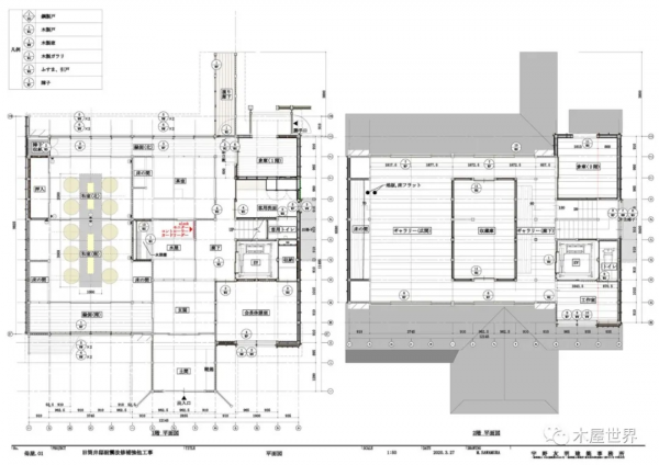
▼屋頂平面圖
▼舊屋改造平面說明
▼立面圖/剖面圖
專案資訊
設計:宇野智明
地點:愛知縣名古屋市
結構/施工方法:木造二樓
景觀設計:櫻井造景社
傢俱:竹村傢俱
規模:地上二樓
場地面積:576.71㎡
建築面積:213.90㎡
總建築面積:322.61㎡
竣工時間:2021 年 6 月
文字:建築師 | 翻譯:木屋世界
“木屋世界”與您一起
領略世界木屋風采,感受環球美景佳作。
我們是木結構與裝配式整合建築及相關行業資訊平臺。
相關木屋設計建造業務或平臺合作請聯絡:
13911038233,[email protected]
*圖片文字源於網路,“木屋世界”採編,如有版權請聯絡我們更改。
更多精彩請關注“木屋世界”,支援我們請不吝點贊
























































 
			 
			 
			 
			 
			 
			 
			 
			 
			 
			 
			 
			 
			 
			 
			