在設計師的眼中,戶型似乎沒有好壞一說,他們憑藉巧妙的設計,總能“變廢為寶”,把“渣戶型”變成舒適的生活家。本期,甜茶為大家分享的家裝案例,就是一套很有代表性的「渣戶型逆襲案例」,快來一起看看吧!
//戶型分析//
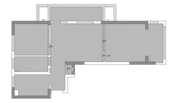
這套房子的面積約90㎡,從平面圖上看很像“手槍”,和戶型方正根本搭不上邊。客餐廳的面積比較小,不過好在客廳有一個贈送的陽臺,保證了採光。主臥和次臥分別位於客餐廳的東西兩側,動靜區分佈得不合理。
//設計亮點//
①入戶廚房做移門設計,不影響玄關的正常使用。
②打通客廳和陽臺,增加客餐廳的使用面積。
③用吧檯代替餐桌,提升公共空間的互動性。
    客餐廳
在原戶型中,客餐廳的面積非常小,於是設計師打通了陽臺,以提升使用空間。整體配色圍繞著白色、原木色和灰色三種顏色,視覺感簡約清新,又不失層次感。
設計師沿著陽臺窗戶,定製了一個超長尺寸的榻榻米沙發,最多可以容納七八個人,就算朋友來家聚會,也不怕沒位置坐。榻榻米沙發的內部,設定了儲物空間,開啟後可以放一些生活雜物;其表面和靠背定製了海綿墊,坐感非常舒服。
餐廳內並沒有擺放餐桌,而是用吧檯代替,既為了好看,為了實現更多的使用空間和儲物功能。吧檯的高度大約在100cm左右,由石材和原木生態板組成,右側增高一部分石材,用作電視背景牆。
吧檯櫃體的設計,頗動了一番腦筋,前後兩側都有一定的儲物空間,以實現雙向收納,這樣屋主拿取東西會更加方便。
餐邊櫃是嵌入式的結構,灰色的膚感櫃門,採用無拉手設計,看起來很有質感。櫃子的中間鏤空,可作為餐廳的展示區,用來擺放書籍或裝飾品,實現了儲物和裝飾雙管齊下。
    廚房
廚房在入戶玄關的左側,其入口比較小,做傳統的門或玻璃推拉門都不太合適。為了不影響玄關的使用空間,設計師在廚房安裝了一個吊軌移門,並在門的表面覆蓋了黑板材質,方便孩子在上面寫寫畫畫、充分發揮想象力。
廚房內部配色,選擇了比較經典的白色和原木色的組合,視覺感乾淨清爽。U型的格局設計,確保了合理的烹飪動線,也為屋主提供了更加充足的檯面操作空間。為了不影響採光,設計師只做了一側吊櫃,另一側則做了黑色隔板置物架,完全可以滿足日常的廚房收納。
    主臥
主臥自帶生活陽臺,採光極佳,陽臺內還規劃了洗衣區、晾衣區和收納區。陽臺和主臥之間未做隔斷,兩個空間相互連通,地面由瓷磚到木地板進行了自然過渡,看起來通透又大氣。
灰色衣櫃與餐邊櫃的材質相同,規劃在大床的正對面,滿牆式的設計既保證了視覺上的統一性,也提升了室內的儲物空間。
設計師用生態板代替床頭背板,兩側做懸浮式床頭櫃,視覺感更加輕盈。
    兒童房
兒童房的面積非常小,根本擺不下成品傢俱,於是屋主便選擇做榻榻米結構,完美實現了床、衣櫃、書桌和書櫃,為孩子營造一個溫馨獨立的生活空間。
    衛生間
家裡只有一個衛生間,平時使用起來難免有些侷促。為了解決這個問題,設計師將衛生間的洗手檯外移,讓馬桶、淋浴區與洗手檯保持獨立,能夠緩解早高峰期衛生間的使用壓力。
【本期總結】
回顧本案,整屋裝修時尚又高階,而且有非常豐富的儲物空間,其中有幾點設計非常值得借鑑:①沿著陽臺窗戶定製榻榻米沙發,兼顧休閒和儲物雙重功能;②用吧檯代替餐桌,既美觀又能增加儲物空間;③衛生間洗手檯外移,適合只有一個衛生間的戶型。如果你也喜歡本期內容,歡迎點贊收藏!
















 
			 
			 
			 
			 
			 
			 
			 
			 
			 
			 
			 
			 
			 
			 
			 
			