有人問:
從頭到尾自己裝修房子是怎樣一種體驗?
就讓身兼業主與設計詩的小夥伴,來跟大家分享一步步的流程吧!
因為裝修流程仔細繁瑣,讓我們分成上下兩篇
裝修房子是什麼樣的體驗?
很累,但也很甜蜜,充滿成就感的那種。
甜蜜的負荷就是這樣吧!
累是因為需要不斷的溝通、瞭解,絞盡腦汁、耗盡心力
甜蜜則是在每完成一個段落,就會覺得離目標又近了些
拼命地告訴自己,我可以的,快完成了!
完成看到家人的笑容,會感覺辛苦都是值得的!
裝修沒有不累的!
就算我自己是設計師,也是這麼想的!
這次要說的就是我的老家,位於臺灣一間40年的老公寓,那是我的父母,在我們出生時購買的住所。老公寓伴隨著我們成長,如今我們成家立業,它還沒有退役;也因為這份情感,特地花錢、花時間改造它。
▲ 從外觀便可看出是老舊建築,牆壁斑駁受盡風霜。
從小生活在此,經歷了成長、結婚、甚至帶了自己的孩子回家。
在14年時,父親出門遇到車禍,那時的我們慌張極了,幸好父親接受治療後恢復得不錯,原本想要幫他另外找一處舒適寬敞、居住質量也好的地方,但父親堅持要在老家,於是讓我開始思索,是不是可以透過改造讓老家更加舒適?
就在15年,公寓建築的矮牆,不堪壁癌侵襲,混凝土與瓷磚剝落,讓我更加確定,是該將老屋整修了;後來與家人溝通後發現,彼此間都有這樣的念頭,欠缺的就是沒有具體想法,所以就讓我有擼起袖子的決心了!
▲ 臺灣傳統老公寓常見的雙層女兒牆設計,容易因為強風迎面侵襲,長期下來讓中間的混凝土牆產生腐蝕問題,甚至導致結構危機。
小提醒
老屋整修比新屋有更多安全問題要被關注,建議先檢視是否有這些問題
- 漏水與壁癌的嚴重性
- 結構樑柱體的鋼筋腐蝕情形
- 木作是否產生白蟻問題
- 水、電、燃氣管線是否有外漏現象
- 糞管(排汙管)是否阻塞
房屋資訊
- 屋況:40年老房
- 面積:109㎡
- 空間格局:三居室
- 居住成員:4大人、2小孩
原本109平米的空間,只住著父母兩個人,但因為大哥一家四口想要搬回老家,讓爸媽享受三代同堂的幸福;所以在佈局上做了一些變動,連衛生間及餐廚也做了更改。
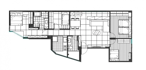
平面圖
Before
因為是長型老屋,太多隔斷讓採光不好,而且佈局規劃差,許多空間沒有妥善利用,收納也不完美,想了一陣子後,決定重新梳理。
After
客廳依然維持原狀,但原本比例過大的主臥,就分成兩間,左邊是長輩房,右邊是客房兼遊戲室;也因為人數增加了,多裝修半套衛浴。至於最大的變動,就是將原本的廚房變成主臥室,和室變成了廚房。
其實在規劃的當下,一定是有些爭執的
家人看見圖紙後,認為佈局變動太大;但畢竟已經打破他們平時的生活習慣了,當然我就花盡心思去說服他們。拿衛浴來說,因為人口數增加,總不能大家都在搶衛生間,而且孩子遲早要獨立的,先規劃一個房間給他們也沒有不妥。經過不斷的溝通,並把雙方在意的矛盾解決了,才完成現在的圖紙。
再者,從小到大生活的老屋,除了滿滿的回憶,長輩也有些東西無法割捨;所以我在規劃時,就想將這些物件保留下來,比如隔斷牆的檜木木材、木質拱門,以及客廳的大理石桌面,讓家人就算住在新家,也保有往日情懷。
▲ 拱門上有哥哥量身高的回憶
▲ 客廳的大理石桌面
小提醒
裝修前要注意這些申請步驟
- 施工申請
合法的施工一定會張貼告示,告知左鄰右舍,才能順利開工。 - 路權申請
在高樓層的廢棄物、建材,會使用到吊車,此時需要有公用的人行道合法使用權。 - 天然氣管線申請
老舊的天然氣管線要更換路徑,必須向該地區合法的天然氣公司提出申請,才會有專人來檢查裝設。 - 電度申請
舊屋重新裝修,原本的電度可能已經不勘使用,必須向相關單位提出電纜申請利於後續更改。
回憶
畢竟是30多年前的裝修,許多空間的外觀都因為壁癌、白蟻的摧殘,殘破不勘;加上隔斷的零碎布局,光源無法有效入內,讓家中的公共空間顯得暗沉。
▲ 原始作為隔斷的檜木玻璃及窗簾,讓客廳看起來相當陰暗。
直到拆牆的前一天,我還拿起相機記錄著成長老房的痕跡;有我的歲月,也有孩子們的生活痕跡。而且,這些傢俱、櫃子及隔斷都沒有壞,以當時的建材來說,質量算是數一數二的。
裝修前的空間回顧
▲ 長輩房的光線其實非常好,可惜原本的配置未能充分善用空間。
▲ 大女兒也曾經在父母的房間留下塗鴉,想想也捨不得這些痕跡。
▲ 壁癌由外而內侵蝕壁面,爸媽又堅持睡在這床頭,也是我困擾的原因之一。
▲ 狹長的客廳走廊因為隔斷的因素,成了光源死角,氛圍陰暗;所以小時候在晚上要去客廳,都覺得這裡很可怕。
▲ 原先的衛生間洩水坡裝修不良,一直有排水問題;而且位於長廊後方,對於行動不便的父親來說非常不友善。
▲ 畸零邊角的和室,也被當作倉庫使用;也是一處未被善用的空間,這也是我想改建的因素之一。
▲ 原本廚房在最底端,比例過大而且畸形,地磚也有許多凹凸不平的問題,有安全疑慮,很擔心母親進出會被絆倒。
重新打造老屋,必須將原本的裝修拆除,包含吊頂…等部分,在丈量上才比較精準,繪製戶型圖也才會準確;所以整頓、清理東西這個環節可說是相當重要。
小提醒
快速打包秘籍
- 先依照客廳、餐廳、臥室等空間統整物品、淘汰舊物後整齊堆放
- 蒐集大量的收納籃,並套上透明塑膠袋
- 按照不同空間,分配不同顏色的塑膠籃,方便輕易分辨與拆箱
- 確認物品裝箱完畢後,將塑膠袋打結,防塵又可以看到裡面的物品
其實就是趁著裝修,做到徹底斷舍離,不要再留用不到的東西了!
叫上工班後,我也到現場監工,將原本的大理石地板、木作隔斷及吊頂拆除後,果然如我所料,109平米的老房瞬間明亮起來,空間彷佛放大兩倍。我們也陸續將廢棄物清出,維持工班拆除的速度與工地清潔。
▲ 師傅迅速拆除原本的木作。
▲ 廢棄物要立即整理,以不影響工程為主,這樣就立即將廢棄物吊下去、建材吊上來,加速裝修流程。
剛好在做拆除這項工作時,也一併檢視房屋的狀況
壁癌與漏水
像是大量的壁癌跟漏水,正是處理的好時機!
畢竟是40年的老屋,迎風處的外部牆面又年久失修,一到下雨,水分就會滲入建築內的混凝土跟鋼筋,久了就會毀壞,造成壁癌跟漏水了。
有了壁癌,也代表著你的鋼筋正受到侵蝕,嚴重可能會讓結構動搖。
所以,大家千萬不能忽視!如果不在裝修前解決壁癌、漏水、害蟲等基礎問題,不管裝修再美,絕對都是徒勞無功的!
另外分享一些解法給大家
01 ) 一定要注意牆壁表面產生的裂縫,如有漏水儘早處理
02 ) 施打高壓注漿防水,追蹤漏水來源,填補牆面裂縫
03 ) 如果是在頂樓,就先在屋頂地面做好PU防水,能達成雙管齊下的功效喔
04 將原先柱子鋼筋已鏽掉的部分進行除鏽,再塗上黃色的防鏽漆
05 刮除水泥表面的壁癌,並塗上紅丹防鏽漆
木作
老房的裝修工法算是相當老舊,客廳吊頂沉重的角料,僅靠幾支木榫支撐,師傅在拆解吊頂時,正面掉落差點就造成生命危險了!尤其客廳還是一家人的必經之地,也讓我不禁捏一把冷汗。
我的解法
- 超過15年的老房,一定要請專業設計師檢查材質、強度是否夠堅固,以及是否有害蟲與腐蝕的情況發生
- 儘早拆除工法過於老舊的裝修,以免危害人身安全
小提醒
工班進場前後,絕對要記得盤點的細節!
- 裝修工程前,必須先關閉電源、水源、燃氣、煤氣總開關,以免發生危險。
- 注意鄰居因為施工產生的問題,譬如漏水與吊頂剝落,須溝通設計師或派工班去處理。
泥作
由於安全考慮,基礎施工花費的時間也會最多,且完成後的測試就更加重要了。所以特別要注意,泥作安全的施工:放樣、砌牆、水平垂直線測試。若是這些基本工沒做好,比如衛生間就可能會出現下列情況:
- 浴室的洩水坡度有問題會容易漏水、積水久了導致壁癌
- 後續貼磚不夠貼合牢靠,容易龜裂、掉落
▲ 原先浴室的洩水坡度設計不良,磚面歪斜,推測應該是水平垂直線測試階段就已經有問題了。
因此磚牆砌好後,師傅會用鐳射裝置的協助,標示出水泥粉光要對齊的水平點。特別要注意,浴室及淋浴間地板要分別獨立打造洩水坡,而好的洩水坡度光用眼睛是看不出來的!
▲ 進行放樣工程,牆面水平與垂直線才不會因為傾斜,導致內部結構有安全性的問題。
▲ 利用紅外線水平儀,即可準確地確認砌牆時的水平與垂直面是否有問題。
老屋也會有管線的問題,水、電、燃氣、糞管配置的解法在這!
水管
問題:
老屋管線圖儲存困難,確切埋管位置已經不可考,在施工期間不小心被挖破了。
解法:
把水源關閉後,趕快備料並接上臨時的"修補接頭",儘速安排更換新管。
電路
問題:
原本電箱的位置緊鄰新砌的浴室,溼氣可能會導致用電有安全疑慮。
解法:
另砌一道牆,在電箱與牆面之前,留空間已隔離溼氣,並調整電箱的方向朝外。
燃氣管
問題:
燃氣管線因為老舊導致毀損漏氣,如果要更換會牽扯到公用管線,需要其他鄰居同意,就花費了許多時間。
解法:
跟地區負責的天然氣公司通知後,替換管線,並讓管線走外牆。雖然暗管比較美觀,但明管是比較正確又安全的做法。
糞管
問題:
舊的糞管因為連通整棟樓,所以一定要保留原先位置、無法任意移動。
解法:
新的衛生間會計算斜度,流到原本糞管的位置。
衛浴與廚房的閉水試驗
衛浴地板完成防水層後,需要進行24小時閉水試驗,讓整個地板充滿水,測試是否有漏水。
可能會有人有一些疑惑,我就先提前來解說
01
為什麼老屋二次裝修在管線處理這麼困難?
很多老屋內部的管線圖早弄丟了,最多隻會留存平面圖,也沒有水電圖;就算有水電圖,很多屋案也不會按圖施工,加上中間管線可能也被改過,所以要辨認管線在哪並不容易,需要大量的經驗累積才能正確判斷管線位置。
如果幸運地找到管線位置,師傅鑽地的力道與樓板水泥厚度也要進行評估,建議要找經驗老道的設計師跟工班,採用人工的方式進行工程。所以我也建議,如果要進行二次裝修,儘量找老屋裝修經驗豐富的設計師。
02
燃氣管線申請最耗時,一定要事先申請好!
天然氣公司的處理流程時間很長,必須先做申請,設計圖確定後才可以找到天然氣公司申請。
美化居家
所有工程都搞定後,就能開始美化了!這部分也是我很期待的地方。
客廳
因為層高夠高,因此選擇降板設計,在玄關與客廳底部幫燈具留了位置,除了可以打造間接照明,也能為空間延伸,增添居家層次感,也讓公共空間更明亮清爽。
長輩房
為了維持空調口美觀,將上方木作與空調深度切齊,除了方便管線收納,整體看起來也美觀許多。
木作表面:電視牆
木作板面之間須留下空隙做"伸縮縫",避免熱漲冷縮讓牆面產生裂痕損壞,因此要先以AB膠填入板材間的細縫內,再以砂紙磨平;最後反覆進行刮膩子與打磨,表面平整才算大功告成!
油漆前置作業:刮膩子
上漆前為了維持牆面的平整度,會先進行"刮膩子"。首先先上米白色膩子,再打磨牆面,繼續上第二次的膩子,再度打磨,至少重複兩次,最後刷上保護漆後,才算完成平整牆面的前置作業。
▲ 師傅仔細地在所有牆面與吊頂刮上米白色的膩子,確保平整度,若之後油漆產生凹凸不平的牆面可就不好了。
將木作與牆面打理好後,就能進行油漆作業,油漆分成兩個步驟,第一是噴漆,再來是手刷漆。噴漆的優點是快速且漆面均勻,通常會用在大面積跟木作,避免手刷漆的痕跡,但容易產生大量的空氣汙染,後期可利用手刷輔助細節。
▲ 門片採用噴漆。
▲ 噴漆完畢再晾乾。
▲ 幫爸爸打造的衛浴吊頂,利用油漆矽酸鈣板。
小提醒
01 ) 油漆時的監工注意事項
刮膩子、油漆階段會導致大量的粉塵,要監工可別忘了戴口罩喔!
02 ) 刮膩子的使用時機?
老屋裝修時,若留下表面坑坑巴巴的舊牆,後續要加入定製櫃時,可以省去刮膩子與油漆,節省時間跟預算。
打木作櫃子與系統櫃的選擇
相信裝修前的小夥伴一定也有相同的疑慮,
我到底要自己打櫃子?還是要使用系統櫃呢?
為什麼會喜歡木作?
木作因為天然紋理與多樣化的材料,受到廣大使用者的喜愛,還可以依照需求訂製各種形狀,可彎曲進行弧度設計,不會只有呆板的版型,還可以輕易改變表面色調,很適合運用在卡通造型等兒童設計上。
相較系統櫃,變化性跟美觀都是木作的優勢,木作板材還可以依照需求選擇;系統櫃則是高壓塑形的壓制板,如果在意內部材料的使用者,選擇材料單純的實木板材就好。
如果有系統櫃不如木作板材的疑問?其實木作的確可以在板材下進行加強,這樣的工法在系統櫃上是做不到的,但這樣的狀況在70公分級距內,材質並不會造成太大的影響。最好的辦法就是,一定使用年限,不論是木作還是系統櫃都會出現損壞情形,應及時進行適當維修。
在這次裝修,我選擇了系統櫃。
主要也是因為這是我的強項,利用板材創造環保、施工快速且低汙染的系統櫃,同時也有收納跟美觀的需求,也配合家人喜好,選擇好顏色、材質,就變成獨一無二的訂製傢俱。
▲ 依照家人個性、房間的亮度等,選擇適合櫃體的材料。
因為這次也考慮到家人的收納需求,而且施工時間比較趕,因此就選擇系統櫃了。
01
因為這次也考慮到家人的收納需求,而且施工時間比較趕,因此就選擇系統櫃了。
主要是將板材運甕到工地後,在直接與五金組合;廚具則是在工廠把桶身做好後再運送到工地,尺寸不大的通常一天就能完成。
▲ 以桶身設計的系統櫥櫃,方便未來拆裝移動
▲ 以量身打造的系統廚具,節省安裝時間,不用半天就完成了。
02
選用系統板材:無毒環保
我在裝修自家中較少使用木作,因為大部分的木作板材會用強力膠黏合,不喜歡充滿強力膠的感覺。也有的使用白膠,但白膠遇到質地較硬的板材,很容易就脫膠,會產生要修復的問題。
▲ 尤其在臥室與兒童房,健康考慮下,就選擇系統板材
03
系統櫃的魅力
通常木工遇到水平不平的部分,會用東西迭起來,再用貼皮貼上,但系統櫃可選擇有調整腳設計的進口系統櫃,不盡可以調整水平、乘載重量,還可以用踢腳板封起來,這是跟木工做法不同的方式。
最後總結我使用系統櫃的原因
- 不喜歡木作使用黏合劑的味道
- 系統櫃適工廠使用機器高壓黏合好,免去擔心技術、時間、天氣等因素,造成後續推交問題。
- 系統櫃本身耐磨、耐刮、耐高溫、耐燃。
比較
家電、電器進場
所有裝修都底定後,就要根據電路、家電配置圖,將各種傢俱、裝置放到相對應的位置
01
櫃體收邊
當壁面左右水平線不一,又必須裝設櫃子時,會遇到要修改櫃體高度的問題,可以分別依據櫃體與壁面之間的隙縫差距,進行裁切或是封條兩種方式調整。
02
衛浴裝置裝設
依照進出水口與糞管的位置,快速將洗面盆、水龍頭、馬桶跟浴缸定位
03
軟裝、傢俱進場
櫃體、裝置收尾完成後,再進行清潔工程,就可以讓傢俱、軟裝進場
▲ 配合純白空間,選用黑、白、灰三種軟裝,搭配木質元素,讓暗沉老屋變身清爽家居
▲ 使用大面積桌布,輕鬆讓兒童房跟多功能遊戲間的風格跳脫,這也是最省時又簡單就能創造兒童風格的方法
▲ 長輩房還是依照爸媽的睡眠習慣,將床頭靠窗,換了窗簾與床單,重整後也不會有老舊的感覺。
小提醒
想在一天內快速有效率的解決收尾,建議早上進行櫃體收編與裝設裝置,再進行工地最後清潔;接著下午進傢俱會是最好的做法。
避免裝潢糾紛小方法
- 簽約前詳閱合約,確認賠償條款細項,建議可使用政府單位的制式合約模板。
- 設計師需要提供屋主越詳細的圖面規劃越好,包含 3D 圖。
- 屋主要避免在後期大幅度修改設計師的設計,容易造成無法如期完工、多餘的材料與人力費用等爭議。
最後總結
STEP 01 │ 裝修前:
- 與設計師溝通需求
- 現場丈量 (丈量費用)
- 圖面繪製 (包含平面、立面與3D)
- 簽訂設計約
- 申請施工許可
等到丈量完畢,設計師將繪製圖面供屋主參考並溝通設計理念,達成共識後,就會簽訂設計約並申請施工許可。
STEP 02 │ 裝修中:
- 安全性施工
01 開工 (30%工程費)
02 申請吊車路權
03 拆除工程
04 牆面拆除
05 地面拆除
06 修復工程
- 重整外牆
- 刮除壁癌
- 打發泡劑
- 上紅丹漆
07 泥作
- 水泥砌牆
- 美觀性施作
- 貼瓷磚
- 木工 (30%工程費)
- 批土、油漆 (30%工程費)
- 鋪地板
- 裝置衛浴裝置
01
拆除工程
此階段會看見許多老屋特有的問題包括壁癌、漏水甚至鋼筋腐蝕、木作材質老舊等。
02
安全性施工階段
待基礎問題解決後,緊接著要處理結構問題,如結構柱檢視、泥作砌牆。
03
水、電、瓦斯糞管管線重牽
老屋常遇到管線不敷使用的重牽問題,慎選對於老屋擁有豐富經驗的設計師與專業工班,是解決問題的不敗法則。
04
木作與系統櫃階段
將木作與系統櫃的優勢搭配得宜,打造美觀與實用兼具的簡約居家。
STEP 03 │ 裝修後:
- 傢俱配置
- 收尾
- 交屋驗收 (10%工程費)
當所有硬體裝潢底定,即可將傢俱、軟體至入室內,美麗居家大功告成!
寫在最後
再度踏入孃家,已經是父母跟哥哥一家人入住一個多月的日子了。
▲ 家人入住後,面對完善規劃的動線,都表示很滿意
01
客廳吧檯
在哥哥的堅持下,將客廳後方的吧檯做延伸,增加機能性,讓吧檯身兼開放式書房跟收納空間,原本父母還在意風水問題,現在也欣然接受了。
02
客廳桌几
之前有說到,把家中客廳老舊的大理石桌檯面,留下應用。這個想法成真了!直接變成客廳桌子,讓家人就算在新空間,也能保有共同回憶。
03
為爸爸量身打造的衛浴動線
原本就是希望爸爸在家休養,能有從錢的舒適感,而且還更加便利。才會考慮將本來一套的衛浴做成兩套,更將其中一套移到大門旁邊,現在不論是廁所還是衛浴,都相當方便,全家人都讚不絕口!
▲ 就連小孩看到自己的房間也是欣喜若狂阿
最後要說,溝通一定是最大的問題!
我在進行裝修設計時,父母總會記得我女兒的身分,卻忘了我是一個專業的設計師,所以必須要投入更多的心力,帶著家人看過每個動線、設計概念,再用3D設計圖輔助,不斷的讓家人接受自己的專業理念。
幸好,最後的成果讓大家都滿意了!
所以我說,這是一個甜蜜又辛苦的過程。
小提醒
- 二度裝修
裝修設計之所以可貴,是要順應居住者的習慣,創造更好的生活,而不是創造新動線,強迫居住者接受,因為美而讓強迫居住者接受,這就是本末倒置。
- 三代同堂
在我裝修的經驗中,10個案例中,有7個會依照自己的生活習慣規劃、2個考慮孩子,剩下1個才會想到父母長輩的便利性。其實齡長者的需求不應該被忽視,從沙發跟床面臺度的高低、收納機能、衛浴動線,到防滑防跌倒,都應該被考慮進去,讓心愛的家人在居家空間中安心生活。
好文分享
設計師總結最全裝修流程,裝前看了保證不犯錯,難怪收藏過萬
11萬人都推薦!日本收納師4招高效家務訣竅,收納清潔不瞎忙
