建築尺寸:面寬 16.6米 進深 15.5米
建築面積:264.0㎡
戶型概況:
2層 / 5室 2廳 6衛 1廚 1衣帽 1洗衣 1裝置間 1茶室 1陽臺 1露臺
平面設計
一層平面圖
建築主體加上廂房形成一個L型建築輪廓,退讓出西邊的庭院空間,廂房採用下沉式處理,人坐在客廳或者茶室內,視線通達,可以透過落地玻璃直接看到庭院的草坪景觀。交通空間則放在轉角處,聯絡不同高度的各個錯層空間,同時樓梯也兼具一定的美觀作用。
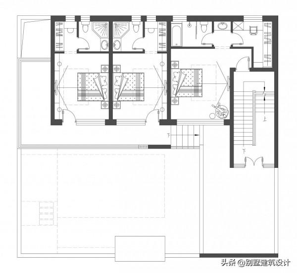
二層平面圖
二樓是兩個孩子和主人使用,西側共設定兩間臥室,西北側設定的客房銜接獨立露臺,東側設定主臥,搭配衣帽間和露臺使用;另一間兒童房搭配露臺,大大提升了居住的舒適體驗。南側的起居室向外延伸出花房和露臺,作為室內活動空間豐富二層功能。
造型設計
△西南側效果圖
建築整體為現代風格,透過不同高度的女兒牆處理和樓梯間形成三個不同高度的體塊關係,牆面與窗戶的虛實結合使得建築無論在水平、垂直方向均具有豐富的層次感
△東南側效果圖
△西南側效果圖
△東南側效果圖
△南側效果圖
△西南側效果圖
△區域性效果圖
△區域性效果圖
