都說裝修是一個不斷“妥協”的過程,其實妥協的原因都是因為自己,終歸揭底地講,是怕浪費時間、資金或者覺得太麻煩。
而有那麼一群人,他們身患“強迫症”,無論房子大小,他們對每個裝修細節都會堅持己見,不怕浪費時間、不怕麻煩,更不惜代價,只求打造一個完美的家。
本期精選的住宅案例,是我見過最舒服的家,看完這個“整潔劃一”的家,直接治好了我的強迫症,光看看就很爽。
讓人瘋狂心動的家,相信你也迫不及待地,想看看到底有什麼樣的魔力吧,下面就和coco一起去看看吧。
住宅基本資訊介紹
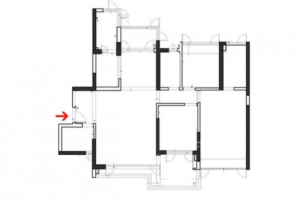
首先本套案例不是樣板間,而是一位設計師@LYN_L的家,建築面積130㎡,大三居戶型,常住人口為夫妻倆人。
從設計角度來看,整體戶型除了梁比較多、“偽通透”以外,基本沒有什麼大問題,稍微讓人不舒服的地方就是餐廚這一塊區域,分隔得比較零散,看起來有些擁擠感。
屋主夫婦結合生活的需求對房子做了區域性的調整:
- 廚房區域牆體拆除,改為開放式餐廚空間
- 北陽臺改為中廚空間。
- 北陽臺連線西廚空間打造了一個全能家政間。
- 主臥增加衣帽間的設計。
經過改造後佈局,讓餐廚空間看起來更加的通透,而且還增加了許多功能區,更加實用合理。
室內實景
原沙發牆比較短,造成了入戶衝客廳的尷尬,利用木質隔斷做了視覺的緩衝,讓玄關區有了一個獨立的空間。
玄關區最漂亮的地方是超大容量的玄關櫃,在暖色暗藏燈帶的映襯下,灰色櫃子看起來高貴又大氣。
整個鞋櫃門採用了隱形把手,看起來更加整潔,每個細節處理得都很精緻,對稱的佈局引起超強的舒適感。
鞋櫃延伸到餐廳,做了一組臨時的收納櫃,兩組櫃子的顏色和寬度一致,這是屬於“強迫症”的審美,讓人看起來很舒爽。
臨時收納櫃既可以收納清潔工具、行李箱等物品,還能讓家裡“面不見物”。
是保持家裡整潔的“小心機”。
▲收納櫃
收納櫃四扇門,其中一扇是白色,要說為什麼這樣設計,因為強迫症一定要櫃子左右均勻對稱。
黑色的收納櫃和隱藏式的冰箱收納櫃,完美的比例,讓人看起來很爽。
黑色的桌面和淺色椅子整個空間顏色搭配協調,中間環繞動線的餐桌布局,讓動線更加自由。
餐廳的一側是光線明亮的廚房,極窄加高的玻璃門,讓餐廳的亮度也增加了許多,同時玻璃的晶瑩剔透感,也增加了空間的高階感。
身為強迫症的設計師,一定要餐邊櫃和櫥櫃一體化的設計,但是為了防止油煙,所以在中間設計了一面透明的玻璃隔斷,和推拉門完美的閉合。
可封閉可開合的廚房,假裝成了一個開放式的廚房,讓空間感擴大了許多。
餐廳對於吊頂部分做了較為精緻的設計,木質吊頂延伸至牆面,暗藏燈帶,在燈光的照射下看起來對稱而美觀。
在這個舒服且乾淨的餐廳,享受美食,心情應該也是美美的吧。
北陽臺改造的廚房,通風效果棒極了,沒有用的東西屋主很少去買,所以廚房看起來非常清爽。
電器多采用嵌入式的設計,不但看起來整潔,打掃家務也事半功倍。
白色的櫃門也是採用對稱的美學,暗藏式的櫃門,讓廚房整潔劃一。
透過餐廳的視角可以看到,角落裡的家務區。
全能家務區是近年來,非常流行的一種人性化設計,整個空間圍繞洗衣區為中心,經過系統的規劃設計,擴展出更多的家務勞作和空間收納空間,一站式搞定洗曬哄曬及清潔工作。
這樣一來,就讓南向的陽臺徹底釋放出來,朝陽的陽臺用來休閒才是最佳選擇。
家務區夜晚的輪廓,被光線照射出來,透明灰色的玻璃拉門和櫃子,一眼望去平平整整,特別規整。
客廳電視牆的設計,別具用心。
孤零零電視得非常突兀,這是強迫症的屋主所不能接受的,所以採用黑色牆造型,讓電視與電視牆融為一體。
讓整個背景牆看起來像一面超大的電視機。
電視櫃是屋主自己耐心設計的,總長3.6米,為了方便進場做了拼接的設計。
看完客餐廳動區,經過這個過道,就到了家裡的靜區。
所以對於這個過渡空間,屋主的要求特別精緻,特別是吊頂部分,木工師傅費了好大勁才達到屋主的要求。
為了把過道空間利用極致,拆掉了原來的牆體,做了一組超大的收納櫃作為隔牆。
同時為了弱化過道多個門的弊端,書房的門和牆體做了隱藏化的設計。
推開這道隱形門,進入的空間就是屋主最愛的書房,也是家裡工作的地方。
從陽臺視角看向書房,靠牆式的佈局設計,留出了一個寬敞的過道,可以輕鬆地到陽臺上曬太陽,而互不影響。
書房內的書櫃做了隱藏式的櫃門,真正過日子的時候,書籍是不會整整齊齊的,把它們隱藏在櫃子內,可以保證視覺的清爽感。
在溫柔的燈光下,也許屋主工作的時候也會讓心情變得舒暢吧。
休閒陽臺是家裡新風裝置的平臺,為了看起來更加清爽,做了一組大櫃子,既可以收納一些雜物,還能把難看的管道遮住。
走廊盡頭就是主臥了,開啟主臥的門首先看到的是整齊劃一的衣櫃,頂天立體的造型加上暗藏式的櫃門,營造一種大氣又整潔的感覺。
原主臥的佈局是床正對衛生間,屋主在看了逯薇老師的《小家越住越大》系列後,深受啟發,利用衣帽間的設計,讓床和衛生間分隔為兩個空間,生活更加舒適。
逯薇老師的小家越住越大系列,堪稱家裝教科書,漫畫式的介紹,通俗易懂,對於裝修新家,看完這套書籍,基本堪稱半個專家。
從主衛的視角,看到的是大氣乾淨的衣櫃,和臥室完全地分隔開。
床頭的紋理牆漆是屋主親自動手完成,患有強迫症的夫妻,一個嚴格把控顏色深淺,一個把控紋理的走線,最終才能呈現出這種舒適的效果。
為了對稱,就連床頭兩邊的燈都做了精心的佈置。
懸浮床,不趴下都看不到床腿,很有創意,而且還可以更方便地讓掃地機進去清理衛生死角。
對於通頂門的定製,建議大家考慮變形的問題,適當的時候需要增加拉直器。
衣帽間的設計,讓生活的動線更加流暢,早晚洗漱更加方便。
主衛利用玻璃隔斷做了乾溼分離,增加了一些溫柔的光線,讓衛生間也有了溫馨治癒的氣息。
客衛採用淺色系的啞光磚、暗藏式的龍頭、超大的鏡櫃和玻璃隔斷等元素,讓衛生間乾淨實用。
仔細觀察會發現,無論是磚縫還是櫃鏡都做了對縫的處理,說實話,用處不大,但就是強迫症。
就是因為這種強迫症的設計,也讓我看完他的家後,感覺特別爽。
擴充套件閱讀:
看到這裡有人說,家裡用那麼多的鏡子和玻璃,很容易有水垢,打掃起來肯定特別麻煩,而且鏡子和玻璃特別難擦。
對此為大家介紹一款保持玻璃晶瑩剔透的水垢清潔劑。
這種專用的清潔劑,非常神奇,只需要噴在玻璃、不鏽鋼、鏡子等有水垢的地方,靜等幾分鐘,不用擦,用水一衝就可以輕鬆去掉水垢,讓玻璃潔亮如新。
使用專用水垢清潔劑,清洗完的玻璃,不但看起來特別晶瑩剔透,還能有效防止水垢的產生,建議愛乾淨的女士們,家中常備,增加生活幸福感。
說在最後:
屋主家是3室,但是目前只有兩個人居住,所以其兩個房間幾乎什麼也沒做,屋主覺得日子需要慢慢過,房子內的東西,也需要慢慢添置,根據需要購買,不要一股腦的買回來,最後發現大多是雞肋。
看完的這套整潔劃一的家,讓我非常的舒爽,在看完以後也做了一些總結,他們的家不僅僅是看起來舒服,更是大量運用了一些時尚的元素,總結如下:
- 設計全能家務區。
- 櫃內和角落的照明,增加了氛圍感。
- 靈活的LDK互動式餐廚空間。
- 中西廚空間的分離。
- 嵌入式電器。
- 隱形門。
- 極窄邊框的門,增加了空間的高階感。
- 要麼頂天立地,要麼懸浮設計,不留衛生死角。
