提及中式之風,似乎喜歡的人群,都聚集在中年人士。尤其是在裝修上,大部分中年人士都會選擇中式風格。
而本期分享的這套新房裝修,是一套318㎡的別墅,屋主卻是一對年輕的夫妻,他們熱愛傳統文化,鍾情中式之風,堅持詩意新中式之風,滿屋清雋素雅,處處都是藏不住的高階感。
    △一層平面佈局
一層空間的佈局之中,設定了開放式的客餐廳,同時將廚房區域也納入在這個區域。其中一間次臥也被佈置在一樓,未來可以方便屋主父母居住。
    △二層平面佈局
二層空間的佈局中,將主臥、主衛、書房、衣帽間、小孩房都佈置在這個空間,方便屋主夫妻能夠照顧家裡的小朋友,功能佈局上更顯合理性。
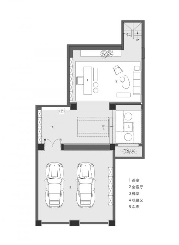
    △負一層平面佈局
負一層空間設定了會客廳、禪室、收藏區域以及車庫空間,作為休閒空間,格局顯得更為自由灑脫。
    △禪意玄關
相比傳統玄關設計,本案玄關更有一派禪意悠遠的自在之美,一組混凝土案几融合了原木換鞋區域,再搭配幾幅掛畫的修飾,看似簡約的玄關空間,卻充盈著國人追求的“風雅”之美。
    △詩意客廳
大多數中年人都傾向於傳統中式風,而本案屋主較為年輕,他們的審美更偏向於簡約之美。因此與其說客廳是一首唐詩,不如說客廳是一曲宋詞,恬淡又清雋。
在設計上融合了宋詞的詩意簡約之美,重新定義了當代人對中式的理解,以簡約融合古典,在墨色之中賦予了家全新的定義。
放眼整個客廳空間,遠看素雅,喧囂之中帶點緘默之美,近觀則更顯水墨氣韻,溯源於東方傳統的美感,真的意蘊深遠。
    △清雅餐廳
餐廳空間的設計,在簡約的線條之中,更顯清雅之美。相比於傳統中式的富麗堂皇,這樣清新雅緻的新中式餐廳,更具一派繾綣婉約之美。
餐廳後方加入了一組屏風式的背景牆,以東方山水意象為美,綿延跌宕的線條感,構築了屬於現代人的詩意棲居。
    △大氣茶室
負一層空間的設計之中,這個茶室空間更有東方氣派之美。高挑空的格局,搭配嵌入式的燈帶修飾,落落大方之餘,也更有品茶的禪意之風。
茶室後方的原木色的牆櫃之上,以竹影斑駁之元素來修飾,搭配各種茶器、藏品和茶葉,顯得井然有序,也更有一派詩情畫意的既視感。
    △一方禪室
相比茶室的素簡大氣,禪室的設計更在於營造清雅恬淡的氛圍,以舒適的原木色調為主,搭配愜意的燈光修飾,簡直禪意悠然。
對於現代人來說,窗外是人間都市裡的煙火,而窗內則是屬於自己的一份閒情雅緻,這也正是本案禪室設計的意義所在。
一方茶席,兩個蒲團,圍坐於此,享受寧靜致遠的生活,或是點燃一壺薰香,或是沏上一壺清茶,這樣的生活才叫靜謐雅緻。
    △家庭廳
相比客廳的小家碧玉,家庭廳的設計更有恢宏大氣的空間感,挑空式的格局,以及略顯新中式的中式沙發,都讓空間古典之餘,也更顯恬淡雅緻之美。
米色系的家庭廳空間配色,搭配東方氣質優雅的傢俱,處處都是寫意之美,以簡雅素淡的筆觸,賦予空間一派寧靜雅緻的氣質。
    △主臥設計
主臥空間的設計,沿襲了客廳恬淡高雅的格調,牆上的簡約水墨掛畫,以詩意藝術氛圍為主,這種化繁為簡的設計手法,讓臥室空間更顯綿綿詩意感。
放眼主臥空間細節上的設計,以優雅輕奢為主,大方簡潔的案几、請以淡雅的瓷器,以及略顯東方之韻的陳設,都讓這個空間更有層次感十足的氛圍。
    △書房設計
再將視線放置在書房空間,可以窺見一抹寧靜的氣息。對於久居都市的人們來說,一個書房空間,足以退卻浮躁感,讓居住者擁抱心中的一方靜謐之地。
靜坐書房之中,窗前陽光一一灑落在宣紙之上,或是研墨,或是揮毫,或是抒寫,一紙一筆一墨一硯之中,皆是清淨悠閒之雅。
    △兒童房設計
兒童房的空間設計,融合了屬於小孩子的天真爛漫之景,滑板+牆繪+掛畫元素的修飾,細緻描繪了屬於孩童的夢想小世界。
以上就是本期分享的裝修案例,不得不說這樣詩意的中式風,讓我們看到了簡約之美,也欣賞到了雅緻的古典之感。
那麼,您是否也喜歡這種詩意的新中式別墅呢?歡迎大家在評論區討論,分享您的個人觀點。
