對於在北京打拼的北漂一族來說,每天辛苦加班奮鬥,大概只為買上一套屬於自己的房子,擁有一個屬於自己的家。
本期分享的這套案例,座標北京,屋主是一對新婚小夫妻,他們的新房是套140㎡的樓房。在裝修佈局上打破常規,三室兩廳的格局,除了主臥,一一打通,全屋開放式的佈局,讓人進門的第一刻,就感受到豪宅的風範。
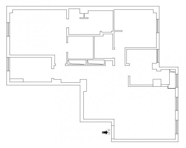
▲原始戶型佈局
原始空間佈局還算尚可,只是隔牆太多,讓空間略顯憋悶感,在和屋主夫妻二人溝通之後,設計師決定拆掉不必要的牆面,打通各個功能區域,營造全屋開放式的佈局。
▲戶型改造佈局
為了讓樓房也能擁有媲美豪宅一般的格局,設計師從入戶到客餐廳,以及主臥和健身房區域,都實現了開放式的空間佈局。
一體式的佈局,讓這個家的行走動線更顯自由感,毫無一絲繁冗氛圍。
▲入戶玄關
從入戶玄關開始,就可以感受到一派自然清新的氣息。在大面積的植物點綴之上,融入了混凝土元素,讓入戶感顯得十分別致。
尤其是一張異域風情十足的換鞋凳,讓入戶玄關更能體現屋主夫妻二人不凡的品味。
高低錯落排列的綠色植物,不僅僅是玄關內的一種裝飾,更是一種巧妙的空間隔斷,將自然之調帶入家中,也讓整個空間更顯清新之感。
▲客廳設計
將視線從玄關移至客廳,可以感受到通透開放式的空間感。因為拆除了大量的隔牆,從客廳到廚房、餐廳和陽臺區域,整個空間擁有視覺上的延伸感。
在日光的襯托之下,整個家顯得寬敞明亮,少了功能區域的明確界限,反倒讓家更有豪宅一般的開闊感。
整個客廳的正中央,擺放了一張意式簡約沙發,以低飽和度的色調為主,顯露出簡約之美。而一張幾何圖案的地毯進行點綴,讓客廳又多了幾分繁華的意蘊。
在整體簡約舒適的格調之下,客廳又擁有讓人心動不已的時尚感。
客廳的傢俱配置上,更顯清新自然。柔軟舒適的傢俱,與水泥灰的電視背景牆,形成了視覺上的中和作用,既有斑駁古樸的美感,又不乏舒適自然的居住氛圍。
客廳中也取消了茶几,在視覺上減輕了厚重氛圍,也客廳空間有了隨性灑脫的質感。
▲電視背景牆
在電視背景牆的設計上,可謂獨樹一幟。水泥混凝土的牆面上,懸掛了一臺無屏電視機,兩側嵌入了燈帶加以渲染,因此整個背景牆顯得柔和又古樸,給屋主夫妻二人帶來更為獨特個性的觀影體驗。
雖然客廳之中並沒有茶几,但是一個柔軟的沙發腳凳卻成為了代替,使用感更為靈活方便,也能滿足客廳待客生活中的需求。
▲陽臺區域
沙發背後的牆角位置,就是屬於陽臺區域。看似不大的空間之中,設計師加入了一組洗衣機+烘衣機,滿足日常洗衣烘衣需求。
洗衣臺的上方,還放置了一組木質檯面,上面也擺放了許多綠色的植物,在陽光溫暖之下,植物生長的姿態,也為這個家賦予了一層治癒感。
▲餐廳設計
不同於普通餐廳的設計,這張北歐風的大餐桌,也可以作為臨時的辦公場所,滿足屋主夫妻二人偶爾在家辦公的需求。
同時兩側牆面都定製了一組牆櫃設計,冰箱也被嵌入在櫃體之中,滿足客餐廳區域各種物品的收納需求,收納起生活中的嘈雜,讓家更有整潔感。
餐廳整體風格也沿襲了客廳的格調,比如大白牆、白色壁櫃以及人字拼接地板,都讓客餐廳兩個功能區域形成了和視覺上的呼應。
因為少了空間上的隔斷,讓自然光線可以灑落在各個區域,因此整個家通透之餘,也更有乾淨明亮的格調。
餐廳白色的大牆上,為了避免單調感,設計師還加入了一組卷軸牛皮紙,既是一個簡約化的黑板牆,也成為了餐廳空間的點綴。
▲照明設計
在照明設計的細節上,設計師完美利用了各種燈光,比如工業風的吊燈、射燈、燈帶、筒燈等等,營造了溫馨自然的居家氛圍。
不得不說,光線照明的設計真的十分重要,看似簡約的家,在燈光的修飾之下, 顯得更有高階感。
▲廚房設計
廚房空間的佈局,將原本的封閉式廚房,改造成了開放式的佈局,空間更顯開闊感,尤其是掛在天花板的抽油煙機,真的十分有設計感。
在廚房的細節設計上,我們可以看到屋主夫妻二人對生活的追求,淺木色的檯面+黑灰色的櫃體,修飾並不多,卻也更顯質樸自然之美。
大單槽式水槽+上方的玻璃隔斷,以及不規則的牆面設計,讓廚房也多出了層次感,不得不說這樣簡單又流行的設計點,的的確確暗藏了許多玄機。
▲走廊設計
因為打通了各個功能區域之間的牆面,整個走廊顯得更為開闊,一字型的佈局,搭配灰色水泥地面,與功能區的木地板形成了區別。
混凝土的斑駁清冷之美,再加上木質元素的溫潤,整個空間擁有兩種材質的完美碰撞,讓整個家顯得特別有格調。
▲健身房
健身房的設計之中,巧妙融入了“次臥”這個概念,在牆面櫃體上,加入了一組墨菲床,可以自由開合收納。
平常作為健身房使用,有客人來訪借宿時,就可以開啟墨菲床,切換為次臥空間。
▲主臥設計
透過一扇紋理自然的木質大門,就可以步入主臥空間。放眼整個主臥空間,我們能夠找到客餐廳空間中的各種元素。
並沒有特意的修繕,僅以統一的風格為主設計,讓主臥也能呼應整個家的裝修主題:簡約自然。
主臥空間佈局也更顯天馬行空,除了臥床的佈置之外,設計師還加入了一組開放式的書房、衣帽間和主衛,形成了一個功能感十足的套房空間。
▲書房設計
床尾的位置就是一個開放式的書房,以半牆+玻璃的形式進行隔斷,動線上更顯自由感,空間也更有通透感。
書房的細節設計上也顯得簡約雅緻,一個利落感十足的書架,搭配一組斑駁感十足的古舊書桌,還有一盞老舊的檯燈,營造了屬於屋主的靜謐小空間。
拉上白色的紗簾,整個書房和臥室都顯得舒適又淡雅,處處都瀰漫著安靜和文藝的格調。
▲主衛設計
主臥空間的設計,以黑白灰為基調,再搭配了一組髒粉色的背景牆,恰恰營造了視覺上的突兀感,整個空間多出了幾分浪漫氛圍。
同時洗浴區以一組黑框玻璃進行隔斷,實現了空間的乾溼分離設計。
主臥之中除了加入了一組舒適的浴缸之外,在細節設計上,也顯得十分別致,比如牆上的壁龕、大面積的收納式洗漱臺,都讓空間擁有充盈的收納功能。
▲次衛設計
次衛空間的設計也沿襲了主衛的黑白灰色調,起到了視覺上的呼應,黑框洗漱鏡的上方,還搭配一組金屬壁燈,採光感真的絕了。
參觀完這對夫妻的家,真的被滿屋子的通透感吸引了,比起“涇渭分明”的傳統空間佈局,這樣落落大方的格局,以及簡約素雅的裝修風,真的讓我們感受到了豪宅範。
那麼,您是否也喜歡這套140㎡的新房裝修呢?您最喜歡哪一個區域的設計呢?歡迎在評論區分享您的個人觀點。
