本期給大家精選的案例設計正是一套美式風格的裝修設計,透過不一樣的搭配修飾,打造出一個極具現代感的美式格調,全屋大面積採用護牆板的造型,看上去檔次很足,雖然價格貴點,但是效果完美體現出來了,還是很值得的。
設計簡介:
裝修風格:現代美式風格
實際面積:180㎡
空間格局:5房2廳3衛
設計師:託不花
專案位置:鄭州華夏城
裝修造價:預算價格26.8w
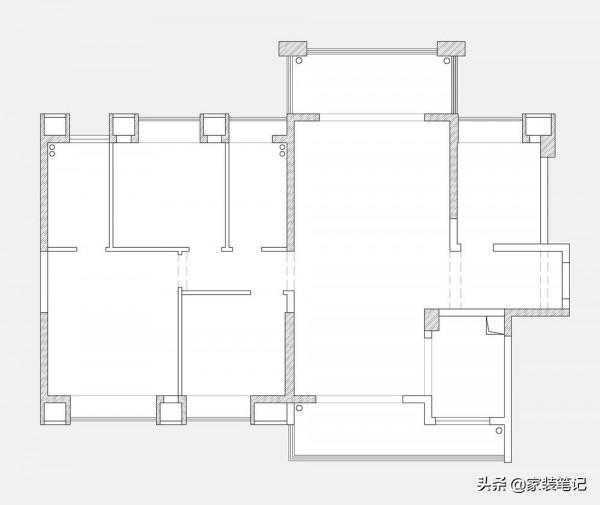
01戶型圖
這是一個有實際面積180平米的大平層,它的購房面積是200個平方,相當於扣取了20個平方的公攤。房子的面積大,只有四房,所以每個空間都比較寬敞,每個空間的面積都比較富裕。業主是三口之家,兩代人居住。
02平面圖
房子的結構很好,也符合業主的需求,不過還是根據他們的實際需求做了一些改動:
1,入戶玄關右手邊的房間做了開放式的空間,歸納做家裡面的多功能房,這樣讓入戶也更加敞亮了。
2,餐廳旁邊的生活陽臺比較大,一部分納入到廚房裡面,擴大廚房面積,讓廚房更加舒適。
3,公衛做了很好的設計處理,實現了很好的乾溼分離。
4,主臥室納入一間臥室進來,做了一個套房,更加舒適。另外一個臥室就做了女孩房。
03玄關
把入戶玄關右手邊的臥室做了敞開式的多功能房之後,玄關顯得更加敞亮了,給了入戶一種極大的舒適感。左手邊做的一長排的多功能鞋櫃,中間是換鞋凳加掛衣區,左右兩邊是鞋櫃。
04多功能房
玄關的右邊就是多功能房,沒有做門,把門洞儘量地擴大到了最大,這樣讓這個空間更加敞亮一點,也讓玄關的採光效果更好一些。這個多功能房沒有其他多的東西,護牆板造型、茶几、沙發、加一組大衣櫃。
05客廳
客廳裡面有多種顏色融合在一起,看上去一點都不顯得“花”。沙發背景牆做的到頂護牆板加中間的藍色硬包,顯得比較有活力。皮沙發在米色和酒紅色的搭配顯得很高階。電視牆採用的大理石加金屬線條的搭配,很顯精緻。
06休閒陽臺
客廳旁邊的陽臺規劃休閒陽臺,由於客廳面積有那麼大,陽臺面積也不小,所以兩個空間沒有做敞開式的設計,之間還是做了推拉門,這樣空間感會好一些。
07餐廳
餐廳空間比較大,所以有條件擺放圓桌,這樣就很好的形成了方圓之美,酒櫃也沒有選擇全部到頂,而是在中間留空了很大一部分,這樣空間看上去更加寬敞一點,餐廳也做了護牆板的造型。
08廚房
把一部分陽臺面積納入進來之後的廚房空間,顯得大多了,放雙開門冰箱,櫥櫃檯面都很足。地面和牆面都採用的玻化磚,光澤有亮度,很方便搞衛生。櫥櫃櫃門選擇的有凹凸質感的款式,很有美式範兒。
09主臥室
主臥室做的很簡單,簡單中凸顯出溫馨感,無主燈的設計讓空間顯得敞亮,石膏板吊頂裡面裝了見光不見燈的燈帶,顯得比較精緻,這種燈源也比較柔和。床尾沒有做造型,直接把電視機懸掛在牆上。
10主衛
主衛的面積不大,但是功能很齊全,不僅有專門的淋浴間,而且還擺放了浴缸,在浴缸的上面做了壁龕,讓泡澡變得更加方便、更加舒適。






















 
			 
			 
			 
			 
			 
			 
			 
			 
			 
			 
			 
			 
			 
			 
			 
			