哈嘍!又到了每週一期的真實人家時間!
今天的案例很值得大家學習,學什麼呢?不是裝修風格,也不是軟裝搭配,而是要學戶型空間的改造和利用。
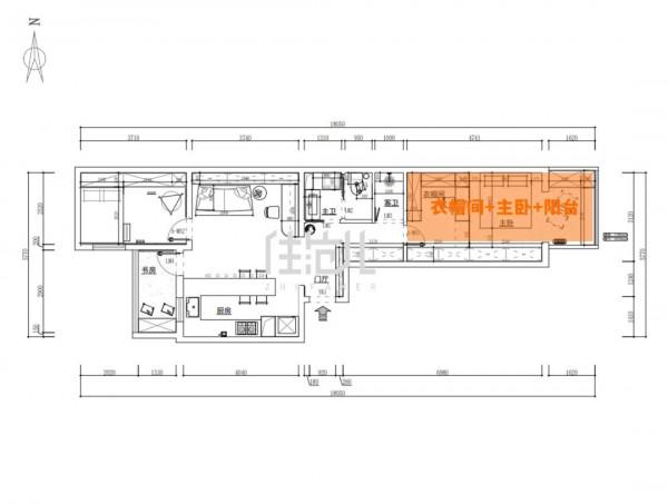
不得不說,這個家的每1㎡都被利用到了極致。把原來的兩室一廳,改成三室一廳,主臥還摳出了一個衣帽間。
這是一個三口之家,夫妻倆有個可愛的女寶,媽媽在網際網路公司,爸爸是自由職業者。
這不是夫妻倆在北京的第一套房,所以買房時對戶型格局要求不高,更加看重的是地段,也是為孩子後期的學習做考慮。
下面我們一起來看一看,這套房子前後的變化吧!
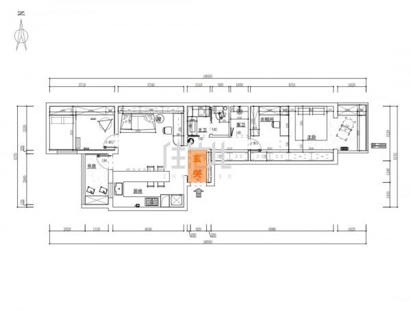
改造前
這是2000年前後,典型的暗廳兩室一廳戶型,封閉式廚房擋住了陽臺一半的窗戶,導致客廳的自然光很少。
雙陽臺設計,卻沒有得到充分利用,浪費面積。
主臥雖寬敞,但也沒有合理規劃利用,同樣造成了空間浪費。
而且,男主人經常在家,平時陪娃都在客廳,所以客廳的利用率更高。
改造後
戶型改造亮點:
·廚房做成了開放式,實現客餐廳一體化,也增加了客廳的自然光線。
·改小主臥重新分割槽,增加衣帽間,陽臺高效利用,改成工作休閒區。
·去客廳化設計,做成休閒兒童娛樂的多功能客廳。
·向臥室借面積,打造獨立淋浴間,實現三分離。
· 廚房陽臺改成兒童活動區,與兒童房相接。
·玄關櫃、主臥榻榻米改裝地臺床,增加收納。
·為了提高空氣質量,屋主安裝了新風系統。
房屋位置:北京
房屋面積:建面80.9㎡ 使用68㎡
房屋戶型:2室1廳1廚1衛
裝修套餐:顏值革命 4.0A 系
全部花費:32w左右(硬裝15w+定製軟裝+新風)
常住人口:一家3口
設計經理:張琪
01
玄關
玄關處做通頂的玄關櫃,因為玄關處較長,所以利用轉角的設計增加了收納空間。
搭配掛衣區,中間預留可擺放鑰匙、水杯等物品的開放式隔層,底部懸空設計,便於擺放日常換下來的鞋子。
鐵灰色的隔板和深棕色的入戶門在視覺上達到相互協調。
02
廚房+客廳
透過玄關,來到客餐廳,廚房將原有的輕體牆打掉,做成開放式,納入客廳,空間得到了延伸和統一。
改造前
▼
改造後
▼
產品及型號:
美的冰箱BCD405-WTGPM凌波金
史密斯燃氣熱水器JSQ31-NJS
考慮到開放式廚房的油煙問題,一款吸力強的油煙機十分重要。
U型廚房的設計,增加了檯面的操作空間。
實木橡木餐桌,代替多功能客廳的沙發和茶几,一物多用。
由於平時家裡來人也不多,樓下緊鄰簋街,招待客人十分方便,所以一張餐桌几個小凳子完全夠用。
產品及型號:
上輝傢俱奧爾堡餐桌
https://m.tb.cn/h.f8zx9I9?sm=39e301
客廳,沒有按照傳統的佈置,而是去掉了沙發、茶几,擺了靠椅+腳踏。在廚房島臺處給電視留了位置,因為孩子喜歡在電視櫃(餐桌右側白色櫃體)上跳著玩,就暫時沒擺電視。
而且準備在臥室安裝投影儀,線槽都已經預留,只是還沒有買裝置。
因為孩子還小,所以佈置了攀爬架供孩子活動,夫妻倆的工作會用到很多書籍,兩個人又是“囤書大王”,所以做了整面牆的書架。
平時坐在靠椅上一邊看書,一邊陪娃,幸福往往就來源於這樣的簡單和煙火氣。
產品及型號:
攀爬架兒童室內櫸木家用寶寶爬梯 https://m.tb.cn/h.fj0DMBG?sm=0499c2
壹壹說,等孩子大一些,撤掉攀爬架,客廳會換成沙發+小寫字桌組合,根據孩子不同的成長階段,隨時調整空間佈局。
父母對孩子的愛,就是這樣潛移默化地滲透進每一個細節裡。
03
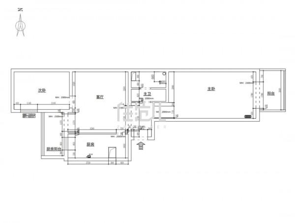
主臥+陽臺
原來的主臥比較大,而且是狹長的那種。空間足夠寬敞,卻沒有得到很好的應用,在北京這樣的地段,這就是浪費。
為了功能區分更明顯,屋主選擇將臥室的面積改小,同時,透過定製地臺床的形式,增加了房間的收納空間。
改造前
▼
改造後
▼
縮短臥室的進深,沒有了壓抑感,佈局看著也舒服多了,床的左側做定製衣櫃和化妝臺,如此一來,衣帽間、辦公區都有了。
04
衛生間
原來的衛生間是橫向二分離的設定,改造後,變成縱向二分離,衛生間裡多放了一個洗衣機,給寶寶專用。
從主臥移出1m多的距離,做成了單獨的淋浴間,輕鬆實現了衛浴三分離。
因為家裡偶爾有老人居住,淋浴間做了坐檯,方便老人淋浴使用。
改造前
▼
改造後
▼
05
兒童房+多功能房
次臥給寶寶安排了實木雙層兒童床,床腳都做了圓角設計,保證孩子使用安全。
產品及型號:兒童床家博會購買;兒童衣櫃,螞蟻盒子
一組螞蟻盒子的小衣櫃放在床邊,裝一些孩子應季穿的衣服物品,方便隨時拿取,環保又實用。
茶色玻璃櫃門既能很容易分清每個格子裡的東西,又不顯亂。
原來廚房的陽臺做了榻榻米,現在作為兒童遊戲區,寶寶的玩具都擺在這裡。
遊戲區和兒童房形成動靜分割槽,保證孩子充足的玩耍空間,也不影響孩子休息。
透過廚房的窗戶,父母做飯時也可以和孩子互動,隨時觀察寶寶的一舉一動。
櫃子裡有準備好的墊子,家裡來客人也可以留宿。
玻璃摺疊門,更加節省空間,關上門就是獨立的一間房。
這期的真實人家就先分享到這。
電視劇《知否》裡曾經反覆出現一句臺詞:“父母之愛子,則為之計深遠”。
壹壹夫妻倆也一樣,從選房到裝修,每一處都體現了父母對寶寶成長不同階段的考慮,也早早地為孩子鋪好了前方的路。
但和大多數雞娃的父母又不同,他們不希望孩子受過多的束縛。寶寶能夠健康快樂的成長,就是他們最大的心願。
關於案例還有什麼疑問,歡迎在評論區留言討論。
最後,別忘記留下【點贊】哦~
