是不是從事藝術類的工作者,都推崇自由,喜歡有個性的家,才能彰顯出特立獨行的品位。在下面這位美院教授的新家裡,我就看到了與眾不同。
與普通家居裝修有哪些不一樣呢?初看他家,真的是“家徒四壁”,好簡單、好清淨,但細品,裝修風格真的很有味道,越看越喜歡這種古樸的日式侘寂風。這位教授把房子安在遠離市區的郊外,三層獨棟別墅的家就被綠樹環繞,與大自然擁抱的環境,真的十分享受!
喜歡侘寂風的人,我想一定是一個有著豐厚底蘊又有著獨立審美的人,它貼近自然的裝修屬性,更是現代都市人所追求的原始生活的表現,這樣的風格所展現出來的淡然、安靜與質樸,更像是一種心境的表露,下面就帶大家一起去看看。
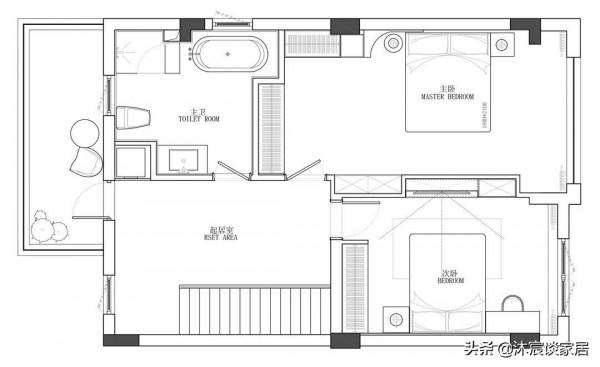
這位教授買的這套別墅並不是很大,185平方米共三層:
一層:是客餐廳和廚房,把動態空間設在一起,很方便;
二層:是休息區,一個完全的靜態區域,享受寧靜;
三層:是一個小閣樓,同樣被教授安排成了休息區,在頂上開窗,夜晚還能躺在床上看星星,好不愜意。
全屋實景(一層空間)
來到一層,從踏進家門的那一刻,相信大多數人跟我一樣,脫口而出的問題是:怎麼會是這樣的風格?看上去就像“毛坯房”一樣,不是沒有裝修嗎?
確實,整個家用了大量的微水泥材質,非常特別,也非常惹人注目,在裝修上,水泥可以說是最普通的材質,用來貼磚,用來砌牆,但想不到大面積用在室內,給人一種“寧靜致遠”的感覺。
沒錯,整個家就是教授想要的日式侘寂風,質樸、純粹,相比其它裝修,它更顯得“家徒四壁”,不豪華,但有質感。
粗算了一下,這裡的傢俱不超過10件,甚至還拒絕了智慧家電,真正迴歸原始般的生活,換做是正在閱讀的你,能在這裡呆多少天?而這位教授卻十分喜歡這樣的環境,在客廳裡放一張另類的沙發,在正對面擺放超長的手工長桌,在家除了閱讀,就是做手工和繪畫,生活很飽滿豐富!你看牆上的收納的工藝品以及所有裝飾畫,全是親自做出來的。
與之相鄰的餐廳,連動性很好,大片的微水泥色貫穿,總是顯得如此的輕鬆與寧靜。整個空間沒有浮誇的色彩,純天然材質,例如作舊的木頭、藤編等,本身便帶有人文屬性,放在家裡的任何一處,就能營造出安靜、古樸、自然的家居氛圍。
將廚房與餐廳打通,也是讓動線及採光變好的重要原因,來這裡主要是迴歸真實的生活,所以廚房裡的佈置可以說是花了最多心思的,這樣才能做出美味,再怎麼詩意的生活還是要面對現實。
這就是一層的開放性空間,將不同區域清晰地劃分開來,給生活提升更多的舒適性,我們再去看二層空間。
連著不同樓層的樞紐,樓梯也堪稱為美景,每走一級就像走在藝術長廊裡一樣,不僅充滿著藝術效果,還帶著幾分優雅氣息。
自己用手打磨而成的工藝品,放在不同樓層的轉角處,都是一大亮點,讓上樓不僅再是匆忙過面,而是能駐足欣賞,在當代生活裡,我們確實需要放緩腳步,來感受原始生活。
這樣整個家除了裝修上省了不少錢,連裝飾物的費用都去掉了。
二層休息區
動靜分離的空間,確實很美好,戶外是綠蔭,室內同樣自然。二層休息區同樣是“家徒四壁”的裝修風格,將日式古典侘寂風發揮到極致。
臥室裡的傢俱、飾品全是親手挑選的,不要智慧電動窗簾,而是傳統的用手去拉,這樣才能與家裡的任何一件物件緊密接觸,會增進與家的親近感。
這個家裡,還有不少的壁龕設計,擺放更多的是自己的作品,與室內風格保持高度的統一,好看且精緻。
頂層閣樓
房子最頂層,同樣是一個休息空間,但沒有設定床,而是打造了一個抬高空間,直接放上床墊,就能入睡。這裡與室外離得最近,因為在頂上開了一個天窗,在這裡還能看星星和月亮,日子真是美不勝收。
衛生間
最後來看看他的衛生間,給自己裝了大浴缸,邊泡澡還能看室外美景,三分離的設計好看又好打理。
以上就是本期分享的內容,隨著城市建得越來越繁華和熱鬧,更加讓人懷念以前那種真實的生活,以前的人沒有手機,但一家人的歡聲笑語更多;以前農村的水泥地,雖然比不上大理石,但那最真實。喜歡這種風格的朋友,可以參考一下。我是沐宸談家居,一直以來專注於幫助和我一樣的年輕人住得更好,我會定期分享裝修案例、家居生活知識與生活好物種草,歡迎關注一起探討美好的家居生活。
想了解更多精彩內容,快來關注沐宸談家居
