藝術家居
Yevheniia Dubrovska新作,面積200㎡,業主是一位非常有魅力的中年女性,熱衷收藏當代藝術,有藝術基礎,牆壁上掛滿了來自世界各地年輕藝術家的作品。公寓的天花板高度為 3,2米,大多數房間的形狀不規則。擁有經典元素,復古和簡約的現代傢俱和燈光,這些都是Yevheniia Dubrovska風格的基礎。
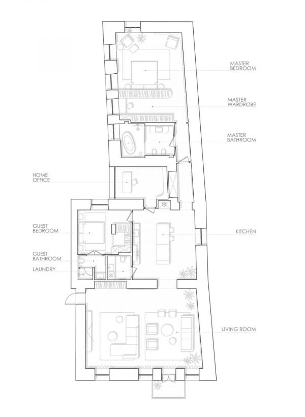
平面佈局
▽
在功能上,公寓分為兩個區域:一個公共區域,包括客廳、廚房、辦公室、客房和洗衣房;另一個帶大臥室、衣櫃和浴室的主區域。廚房值得特別注意,因為它連線了公共區域和私人區域,廚房還可以透過定製的門進入辦公空間,彩色玻璃窗的圖案類似於裝飾藝術圖案。
浴室有一個大窗戶,要淋浴並擁有一些隱私,只需將鏡子從浴缸移到窗戶即可。
設計師
Yevheniia Dubrovska
Yevheniia Dubrovska的一個顯著特點是新舊結合,對細節的仔細研究和設計中的建築方法。
其他新作
FEDOROVA
這間38㎡的公寓位於一座建於1910年的建築內,窗戶和陽臺挨著安靜的庭院,4米高的天花板,但區域不合理劃分、儲物空間太少等問題。
平面佈局
▽
Yevheniia Dubrovska有一項棘手的任務:設計客廳、餐廳、廚房、臥室、衣櫃和浴室,要有足夠的儲存空間,以及為空調、通風和網路等裝置騰出空間。簡單而又簡潔的設計:開放式空間從入口開始,然後進入私人領域。
衣櫃、浴室和洗衣房合二為一,高2.4米,猶如屋中屋,這一決定可以為技術裝置騰出空間:被放置在洗衣區的天花板下。
配色方案受到一定的限制:白色牆壁與柔和色調相得益彰-綠色廚房,橄欖色床,沿著用餐區和客廳延伸的藍色架子。在臥室和餐廳區域,原始的紅磚牆體現一種歷史感。
