01 Ta的"前世今生"
2020年12月14日,東壩地塊吸引了包括華潤+城建、陽光城、招商、遠洋、旭輝+首開+金地等5家企業和聯合體參與競拍,僅經歷3輪叫價就進入競自持階段。
首開+金地+旭輝以35.0244億、自持4%搶得,成交樓面價47008元/平方米,溢價率3.5%。
該宗地為限競房用地,採用“限地價 限房價 競自持”的出讓方式。規定出讓宗地中商品住房銷售均價不超過71000元/平方米,且最高銷售單價不得超過78000元/平方米。要求執行70/90政策,“套型”面積轉為“套內”面積。
最終案名定位華樾國際。
02 區域發展規劃解讀
區域價值
朝陽區東壩成為北京的新寵兒,集金盞國際合作服務區、北京金盞自貿區、第二三里屯、東壩第四使館區、朝陽集中建設區、商務商業風貌區、產業金融、國際組織聚集區等規劃於一體,勢必成為朝陽新的增長極。
借區域規劃發展之風,行置業安家之夢。
金盞國際合作服務區
踐行國家對外開放新戰略,打造首都國際交往新承載,實現北京城市發展新理念。以更高水平對外開放和“一帶一路”等國家戰略為指引,以低密度空間形態、高品質城市環境、大尺度生態綠化為本底,以促進國家間重大合作為抓手,圍繞第四使館區建設實施,聚焦國際綜合商務合作的核心功能,搭建促進人才、 資訊、科技、資金等要素流動的新平臺,構建國際科技創新合作、 國際金融、商務服務、國際多元文化交流等特色優勢,服務首都功能完備提級,打造朝陽新型國際化的示範區。
北京金盞自貿區
金盞自貿區以數字貿易為核心驅動,第四使館區規劃,數字化將全面覆蓋中外商務圈,規劃定位與自貿區相契合,將打造北京市未來國際交往新中心,對外展示中國國家形象新名片。
第二三里屯
北京新興增長級,2020年服貿會提出:立足金盞交通優勢,打造北京對外開放新高地,未來區域規劃6條軌道交通,距首都國際機場9公里、距北京副中心10公里、距CBD區域11公里,打造免稅、退稅消費中心,引入高水平國際教育、醫療資源,完善國際化配套,形成北京最具國際化的數字貿易實驗區,第二個“三里屯”。
東壩第四使館區
北京市政府外辦副主任於海永在2020年9月底舉辦的北京推進國際交往中心功能建設新聞釋出會上表示,北京第四使館區規控已啟動實施,市政基礎設施建設及周邊環境整治正在有序推進。為實現國際交往中心功能,以第四使館區等專案作為現階段工作重點。
朝陽集中建設區
從朝陽區規劃中可以看出,東壩是朝陽區重點打造的幾個集中建設區之一,其發展地位非常之高,未來可期。
商務商業風貌區
從朝陽區規劃中可以清晰的看到整個朝陽只有兩個商務商業風貌區,東壩就是其中之一,而且類似於望京、國貿這樣的特色街區在東壩區域所佔的比例很非常大。在目前其他區域的發展已經受限的情況下,東壩是朝陽區未來的頭部增長點,從交通、醫療、學校、商業等規劃來看,足以管中窺豹。
你以為這就完了?
重磅訊息來襲!金盞國際服務合作區擬建城市航站樓,金盞國際合作服務區將推動國際免(退)稅消費中心的建立,完善免稅消費、預辦登機一體化試點的規劃設計,實現國際商品貿易、進口服務展銷、汽車新零售中心等跨境消費功能。同時還將打造24小時商業街區,匯聚花園式街區、體驗式消費、數字化場景等新業態、新形態,提供匹配全球時區的國際化消費商圈。
城市航站樓將位於金盞國際合作服務區的核心區,這裡也是軌道交通的交點。整個核心區有三個軌道交通交會,即3號線、12號線和R4線(機場段)。
3號線將橫穿金盞國際合作服務區,西起東四十條,穿過三里屯,過朝陽公園,最終到達服務區,未來將和R4線進行接駁、換乘。
12號線西起海淀四季青,橫穿北三環,到達服務區,未來和3號線進行接駁。
R4線(機場段)北起首都國際機場,橫穿金盞國際合作服務區園區,往南最終到達大興國際機場,這是兩座機場之間的連線。未來,旅客在服務區辦理完相關手續之後,直接乘坐R4線,一站便可到達首都機場。
軌道交通的建立將極大縮短金盞國際合作服務區和北京市中心、城市副中心、機場等板塊的關係。未來,這裡可以很好地解決空間問題、商品展示問題,以及商品的免稅、退稅功能。那麼這一系列的功能可以說與核心區、副中心形成很好的對接和匹配。
03 配套
交通方面:地鐵3號線(樓梓莊橋西站50米),可直達東四十條站換乘2號線、地鐵12號線(管莊路西口站800米),可直達海淀四季青站,幾乎與所有南北向地鐵換乘,該區域內未來區域規劃6條軌道交通,軌道交通密集。
此外,距機場第二高速出口200米,周邊出行有金盞路、東葦路、京密路、京平高速、東五環路等;公交350路和659路樓梓莊橋西站,距首都國際機場9公里、距北京副中心10公里、距CBD區域11公里,駕車出行也非常便利。
生活配套:金隅嘉品mall(10萬平米,已建成)、恆大城市廣場(8萬平米,已建成)、東壩萬達廣場(23.4萬平,預計2021年底竣工)等,商業資源豐富,按照東壩的定位,後期應該還會有大型商業規劃。
教育配套:北京中學東壩南校區、人大附朝陽分校東壩校區、東北師範大學附中、愛迪國際學校、凱文國際學校等。
醫療配套:現有中西醫結合醫院(三級甲等),規劃中安貞東方醫院(三級甲等)、政府斥資30億、800張床位、24個科目、預計2022年底竣工、2023年投入使用、建成後會是東部片區最大的三甲級心腦血管醫院,醫療資源足以覆蓋醫療需求。
生態資源:三河十園環伺 溫榆河、北小河、壩河;中央公園、東壩郊野公園、金盞森林公園、千畝湖公園、東壩中心公園、 壩河休閒公園、北小河濱河公園、七棵樹商務公園、藍調薰衣草莊園等。後規劃的區域,綠地面積將會更加合理,更加宜居。
04 產品"宜居力"
近兩年來,朝陽的華樾系,從來是熱銷的代名詞。每一次開盤必將引爆整個市場。而這一次次的熱銷也絕非偶然,唯有過硬的品質和真正的價值才能一次次見證奇蹟。華樾國際·領尚,也在與朝陽青年的碰撞中,不斷融入客群的生活態度,以新生活主張匹配華樾青年。
努力總能得到客戶的回應,正是這份為目標客戶定製產品的匠心讓華樾系不斷得到市場和業主的認可。華樾國際·領尚,自面世以來,一直備受新青年的矚目與青睞,圈粉無數。首次開盤,各位華樾青年更是用實力支援,共同創造了首開的熱銷盛況,以實際行動表達了對華樾系的喜愛
專案詳情
開發商:北京市金旭開泰房地產開發有限公司
樓盤位置:3號地鐵樓梓莊橋西站西側200米。
物業公司 :旭輝永升物業
物業費:待定
房屋型別:小高層、高層
產權年限 :70年
建築風格 :現代風格
拿地時間 :2020年12月14日
交房時間 :預計2024年上半年
供暖方式 :集中供暖
總層高:10~26層
單層高:2.9米
梯戶比:2梯2戶、2梯4戶
樓棟數:8棟
綠化率:30%
總戶數:738戶
單價 :7.1萬起,總價區間 :580-1100萬
面積區間 :75-144平
得房率:加贈送75%-80%
在售戶型
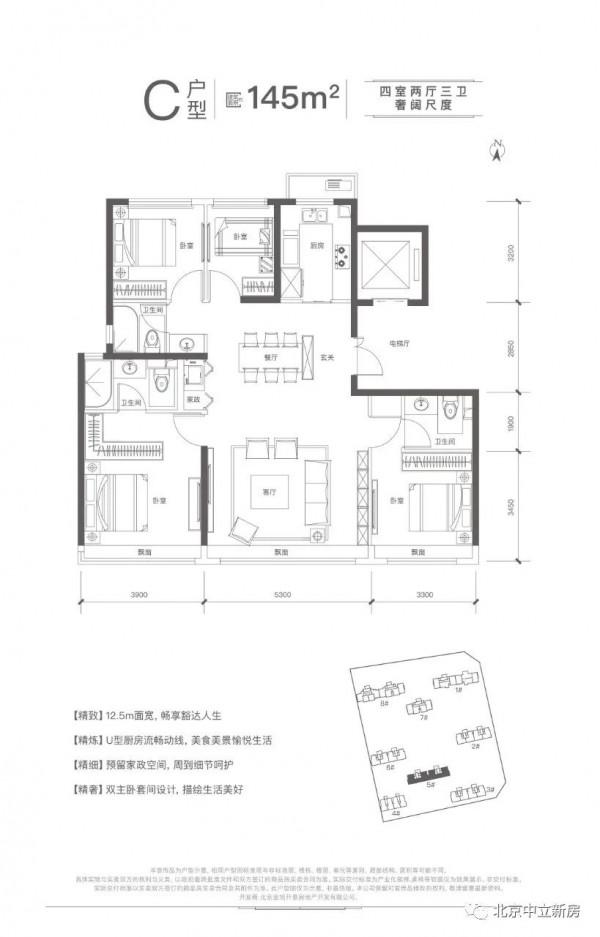
75平兩居,96平三居,98平三居,100平三居、101平三居,119平三居,145平四居。
華樾國際·領尚建面約98-145㎡全屏寬幕三四居,滿足從二人空間到三口之家的全面需求。
建面約98㎡三居空間,5.4米超大邊廳,270°全景飄窗,LDK一體化設計,讓餐廚客三個功能區獨立又互通,增進家人之間的互動,讓空間更開闊。
建面約119㎡南向臥室約6.7米可變空間,可打造為客廳,滿足生活的創想者。建面約145㎡四居空間,約12.5米奢豪面寬,南向雙套間設計,預留家政空間,滿足家中成員的各類需求。
05 購買建議
專案優勢
1、區位優勢明顯,在朝陽區規劃中,東壩集幾大核心規劃於一體,該區域的定位極為重要,區域的保值性很強。
2、華樾國際·領尚具有不復制的價值,同區域新房已進入8萬+/㎡,而華樾國際·領尚作為朝陽區最後的限競房,均價僅7.1萬/㎡,每平倒掛9000元。而且還是金盞唯一的無配建、無公租的100%產權的純粹高階限競房。
3、朝陽的華樾系,一直都是熱銷的代名詞。每一次開盤都能引爆整個市場。而這一次次的熱銷也絕非偶然,唯有過硬的品質和真正的價值才能一次次見證奇蹟。
4、軌道交通發達,6條規劃的軌道交通,其中3號線和12號線已經在建,很快能享受地鐵帶來的紅利。
專案劣勢
1、區域雖然規劃很好,但是目前周邊已經落地的配套不多,需要時間的沉澱,需要耐得住“寂寞”。
2、由於很多規劃要落地,所以未來該區域的工地會一直持續施工,很長一段時間內對居住環境有一定影響。
3、限競房的屬性有一定限制,房本或契稅滿五年才能上市交易,對於短期有出售可能性的人群不太合適。
購房建議:如果對朝陽有特別的情懷或者12號線和3號線出行有依賴的人群,東壩是一個首選之地。如果能堅持到東壩建成,那麼該區域的保值性值得擁有。如果著急出售變現,那麼東壩並不太合適。
買房如戀愛,沒有最好,只有更合適!
