

    “你們這裡是開幼兒園的麼?”快遞小哥手上的機器掃著箱子上的碼兒,眼睛盯著房間裡那個像太空艙一樣的東西問到。
不僅快遞小哥,在剛看到這個案例的時候宅sir也對這個球型房間感到好奇。到底是什麼樣的一家人,居然把太空艙搬到了家裡?
戶型:四室複式
裝修花費:90W
房屋座標:福建 廈門
認識TA
紮根於廈門,專注於家裝純設計,堅信每個人都值得擁有更好的家。
一家四口人以女兒的出生為契機,準備在更加寬敞的新房子裡開啟新的生活。
屋主希望孩子在成長過程中,可以在家庭環境裡感受到美好與樂趣,給孩子打造一個獨特又溫馨有趣的空間。
依此,設計師讓“探索”二字成為了串起這個家的主題。
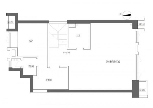
但是原始戶型樓梯在中間位置,讓公共區域的中間有一個突兀的牆角,看上去很難受。兩個相鄰的封閉陽臺沒有什麼必要,還佔了很多地方。
設計師用了三步改善了佈局缺陷:
1、樓梯換位置既可以將同樣的功能聚在一起,又統一了動線。
2、一個球面的空間消除了客廳中的陽角
3、增加的臥室放在房子兩邊,中間採光差的地方做儲物和收納。
對於弧型的呼應和多種材質的變化讓這個家充滿探索感,可以讓寶寶可以無憂無慮的在家裡玩耍。
原來的樓梯需要經過廚房和次臥的門才能到達,而且沒有采光,樓梯間很暗。
因為房間結構滿足條件,梁的位置也不會影響樓梯使用,所以設計師將樓梯換到了入戶門前面,進門就可以從客廳區域上樓,將公私區域和動線劃分的更加規整。

    樓梯換位置後不僅消除了突兀的牆角,也能讓光線可以找到樓梯和客廳裡面。

    樓梯採用輕巧堅固的鋼結構上面鋪裝了木板,扶手用了通透的玻璃,為了防止劃傷玻璃邊角做了圓角處理。
等到孩子到了可以自己爬樓梯的時候,就能在視窗看到整個客廳,和家人玩耍互動。

    樓梯下方的空間很難利用,設計師在這裡一個藍色的滑梯,讓這個難用空間變成孩子的遊樂場。
除了滑梯外,這裡還有留有收納空間,等到孩子長大後,滑梯可以拆掉。這裡的收納空間變大,也會更方便大孩子使用。

    樓梯正前方是兩組櫃子,作為客廳收納使用。緊挨著陽臺,讓這裡有著充足的陽光,可以成為家長和孩子共同閱讀書籍的場所。

    木地板上是這個房間的客廳,也是孩子的娛樂區。前後左右都能坐下的沙發,讓家長無論對著哪裡都可以關注到自己的孩子,也能從各個方向交流。

    客廳與餐廳的分割槽界限就是木地板和微水泥的交界,不同的材質可以給孩子很多不同感受。

    微水泥地面硬度高防潮好,而且沒有縫隙,可以做無踢腳線的牆面。但是造價和工藝要求都比較高。
陽臺落地窗邊的半拱,木地面弧型邊界,樓梯間隔牆下的弧度都和房間中這個吸引人眼球的太空艙呼應。
這個太空艙,這個其實是一個廚房。
原始戶型這裡外牆牆角正好立在房間中間,非常不舒服,如果全部拉平又會壓縮客餐廳,讓空間面積分布不合理。
所以設計師就設計了一個弧型,這樣客廳中就沒有了陽角,全部是開闊的視野。球形的餐廳也能成為家裡的一個主題元素,讓人感到有趣。
弧型的東西在施工就會出很多問題,看看網上各種翻車的拱門就能看出來,何況這還是個3D的弧,可謂是難上加難。

    從鋼筋骨架的搭建就出現了困難,設計師和施工師傅在現場一步一步的研究出來了骨架結構的搭設方法。
面層的石膏板還需要施工人員手工切割成畫素感的格子。現場調配上漆,讓格子有了灰度的變化,呈現出了現在這種球型的效果。

    廚房內飾定製切割的戶型櫃體和操作檯,白色可以讓異形的怪異感降低,櫃體、操作檯和地面的各種白色也讓空間豐富起來。

    廚房燈光用了兩盞筒燈和貼合牆體的拉膜燈,這種燈可以給人自然光線的感受。
克萊因藍的拱形窗子,不僅做傳菜和交流使用,這個窗子正好對著樓梯間的取景窗,一家人在房間的兩側可以透過兩個小窗相互交流,非常有趣。
開放廚房就是為了讓廚房內外可以得到交流,但是如果害怕油煙的話,加個這種的傳菜窗,解決廚房採光問題,做飯可以和家人互動。
做好飯從這個窗子傳出去,瞬間就有了五星大廚給客人定製美食的儀式感。

    太空艙一側的粉紅牆上,兩個大框通向衛生間和老人客廳,小框是餐邊收納櫃。

    這三扇隱形門讓牆面更加完整,保證了客餐區的乾淨整潔。在餐區使用這種溫柔的粉紅色也讓家人在就餐時更加溫暖。
太空艙的另一側是一面異型鏡子,宅sir第一次看到這個地方以為牆後面還有一個空間。這就是鏡子的功能,可以欺騙眼睛讓空間被放大。
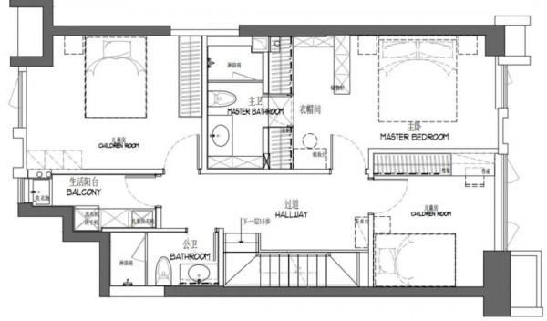
二樓大人的臥室,顏色安靜沉穩。樓梯換位置讓主臥和主衛之間有了一間衣帽間。
位於房間左側的起居路線中,與衣櫃的同色隱形門後是主衛,洗漱換衣梳妝在同一個區域完成,生活動線十分順暢完整。同時具有一定的獨立性,確保一人在活動時不會打擾另一個人的休息。

    灰藍色的主臥空間中,充滿著理性的幾何解構元素,牆體的分色比例與護牆板形成和諧的色塊平衡,色彩上利用吊燈與畫作中的一點紅色打破沉悶。

    兒童房是預留給寶寶長大後使用的房間,溫柔的橙色系與圓潤的傢俱線條營造出溫暖但不過分孩子氣的氛圍。

    這個房子的亮點不止是太空艙,無論材質還是一些造型細節,設計師都考慮到如何讓小孩在其中玩耍和探索。
雖然,設計師覺得房子在施工細節和收納上仍然有一些遺憾,但是仍然達到了屋主新手爸爸高先生說的:“這個家讓人感覺有趣、不乏味”
━
戳圖,找靠譜設計師
拓展閱讀
商 務 合 作
微信ID:TrendsZaijia006
微信ID:TrendsZaijia010
後臺回覆“轉載”,獲取轉載須知
編輯 / 白貓 圖片 / 設計師提供
參考來源:@理居設計
喜歡這個家嗎?
那就 三連吧!




















 
			 
			 
			 
			 
			 
			 
			 
			 
			 
			 
			 
			 
			 
			 
			 
			 
			 
			