不怕同桌是學霸,就怕學霸過暑假。
朋友們好!是的沒錯,你們行走在吃瓜一線的小助理又來了。
暑假還沒結束,石景山衙門口地塊的長安悅璽就實現了一波“彎道超車”,僅用99天的時間就拿下了預售許可證!估摸著開盤就是月底的事兒了~
話說5月土拍的30宗地,真的是太捲了!截至目前,大概有20宗地塊公佈了案名,七八個專案設定了臨時展廳接待客戶。
名字是真的好像啊
能想象到,下半年的北京樓市又是一場惡戰。
先來看看專案的基本資訊。
長安悅璽
地塊位置:北京市石景山區衙門口棚戶區改造土地開發專案1615-708地塊二類居住用地
銷售指導價:79500元/平米
容積率:2.8
交付標準:精裝(以實際為準)
從案名可以看出,長安悅璽和長安和璽是妥妥的親姐妹,不過在產品上略有差別。
最直觀的體現,面積段更全面。
一共有917套房源,面積從97㎡三居到173㎡四居不等,總價在770萬-1370萬左右。
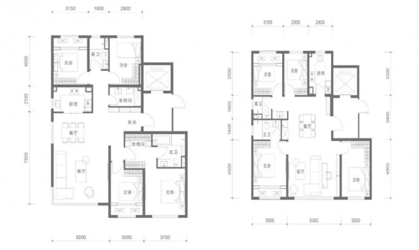
小助理從網上找了張戶型分佈表,大家可以先在心裡存個底兒~
三居的戶型只有97㎡、104㎡兩種。
兩個戶型差別不大,都是南向三面寬,戶型方正,結構緊湊。
97㎡戶型(左)VS104㎡戶型(右)
不過有一點需要注意,兩個三居戶型都有連廊。介意的朋友要慎重了。
124平和122平的四居長相也是高度相似。
124㎡戶型(左)VS122㎡戶型(右)
相對來說,小助理更喜歡124平的戶型。
南北通透,格局方正,經典的四葉草戶型,四間臥室分佈於房間角,互不打擾。餐客廚LDK一體化設計,利用率很高,整體的空間感很強。
唯一有點遺憾的是進門需要經過兩個臥室,私密性會受到一丟丟影響。
放幾張樣板間照片大家感受一下~
152平米
的戶型就很改善了,千萬預算選手可以考慮。
三面寬加上6.5米的大寬廳,還是挺難得的。不過,廚房面積看起來有點憋屈,客衛沒有窗戶,採光透風都得打個問號。
138平和173平戶型的套數都不多,就不展開說了。
173㎡戶型(左)VS138㎡戶型(右)
地段的稀缺是長安悅璽最大的亮點,在石景山的衙門口,歸屬於城六區,環線上在西五環內。
但地塊周邊現狀比較一般,好在到魯谷近,能直接享受魯谷內部現有的配套。
距專案最近的醫院為北京燕都中西結合醫院,約500m左右;周邊大型商業為北側2公里左右的石景山萬達廣場。
不過缺點也很扎心——沒地鐵。最近的地鐵站,1號線八寶山站,到專案約2.7公里。
規劃中的地鐵M11號線魯谷大街站距離專案直線距離在500-800m,據銷售人員稱2024年底專案交付前後會開通運營。目前地鐵資訊查閱顯示還在規劃中。
就,你們懂得~
另外再報告兩個專案資訊,
    「朝陽壹號」、「和光悅府」將於本週六開放接待中心。
1. 朝陽王四營1304-L03地塊「朝陽壹號」,將於8月21日在通州區科創九街開放。
王四營地塊具體位於地鐵7號線焦化廠站北側,直線距離東五環1公里。
由五礦地產、融創地產、北京城建共同開發,建面約110-170㎡。按照銷售指導價7.1萬/㎡計算,總價在781萬~1207萬左右。
2. 崔各莊地塊「和光悅府」21日將於朝陽區太古時代LIFE園區開放。
和光悅府位於朝陽區崔各莊鄉,機場高速與東五環交匯處東側500米,在望京商務區、798藝術區輻射範圍內。
專案由11棟15-20層樓座組成,總計855戶,其中人才公寓329套位於左下角4棟樓,商品房526戶,戶型為120㎡—170㎡純四居組成,全裝修交付。
銷售指導價在8.8萬/㎡,總價在1056萬~1496萬元左右。這個價位和麵積段是純改善住宅了。


















 
			 
			 
			 
			 
			 
			 
			 
			 
			 
			 
			 
			 
			 
			 
			