sponsored links

143平4室戶型集合,看看你最中意的是哪個

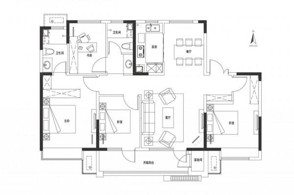
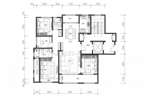
隨著越來越多的家庭加入二胎家庭的行列,以前的3室已經無法滿足居住的需求。4室2廳2衛,成了二胎家庭最理想的選擇。以下集合了7款143平的戶型,看看哪個是你最中意的呢?

143平4室戶型集合,看看你最中意的是哪個


A

143平4室戶型集合,看看你最中意的是哪個


B

143平4室戶型集合,看看你最中意的是哪個


C

143平4室戶型集合,看看你最中意的是哪個


D

143平4室戶型集合,看看你最中意的是哪個


E

143平4室戶型集合,看看你最中意的是哪個


F

143平4室戶型集合,看看你最中意的是哪個


G

分類: 國際
時間: 2021-11-08

相關文章

印度中部發生嚴重交通事故 致9死7傷

印度中部發生嚴重交通事故 致9死7傷
印度警方19日說,該國中部切蒂斯格爾邦當天發生一起嚴重交通事故,造成9人死亡.7人受傷. 警方說,事故發生在切蒂斯格爾邦首府賴布林以南約188公里的貢德岡地區.一輛機動三輪車與一輛越野車在行駛中迎面相 ...

印軍女子突擊隊巧妙偽裝,深夜秘密突擊,擊斃兩名印度游擊隊士兵

印軍女子突擊隊巧妙偽裝,深夜秘密突擊,擊斃兩名印度游擊隊士兵
印軍最近的物資運輸車隊常常遭遇游擊隊襲擊,大量糧食.保暖衣物和器材被搶走損失慘重.並且印度納薩爾游擊隊女子突擊隊還在近期搶走了一輛印軍運送物資的卡車,這引起了印度軍方的嚴重不滿.印軍出動了特警警察部隊 ...

印度法庭上演槍戰,兩名“律師”射殺黑幫頭目,場面如同動作大片

印度法庭上演槍戰,兩名“律師”射殺黑幫頭目,場面如同動作大片
文/君劍 在很多動作大片中,我們總能看到激烈的槍戰場面.然而在印度,這種場面卻能在現實中上映.近期,印度一家法庭就爆發槍戰,殺手居然偽裝成律師並攜帶槍支入內,射殺了正在受審的黑幫頭目,隨後警察也開火擊 ...

985畢業生回應辭掉公務員賣豬肉【三分鐘法治新聞全知道】

985畢業生回應辭掉公務員賣豬肉【三分鐘法治新聞全知道】
高層動態 1.習近平:將於9月21日以影片方式出席第76屆聯合國大會一般性辯論並發表重要講話.(新華社) 2.習近平:20日,就阿爾及利亞前總統布特弗利卡逝世向阿爾及利亞總統特本致唁電時指出,他的逝世 ...

早安丨今年中秋假期國內出遊超8815萬人次

早安丨今年中秋假期國內出遊超8815萬人次
早安!新的一天開始了,<四川觀察>和你一起開啟新的旅程! 經合組織預計2021年中國經濟增長8.5% 經濟合作與發展組織21日釋出最新經濟展望報告預計,隨著全球新冠疫苗接種程序繼續推進.經 ...

2017年美日撞船事件:47名士兵全部喪生,五角大樓咬定對方全責

2017年美日撞船事件:47名士兵全部喪生,五角大樓咬定對方全責
眾所周知,如果想要駕車或者開船,在全球任何國家都是需要去取得相應執照的,那些軍艦也包括在內.普遍情況下,無論是開車還是開船也好,新手上路總是頻頻出現失誤,只有那些擁有長時間駕駛經驗的才能算得上是&qu ...

朝鮮版95步槍亮相閱兵!有託改無託魔改現成貨,仔細一看還是AK

朝鮮版95步槍亮相閱兵!有託改無託魔改現成貨,仔細一看還是AK
隨著我軍開始逐步的換裝19-1式步槍,世界主要軍事國家在單兵武器上好像又回到了有託步槍的時代,甚至還有人宣稱,當年我國在小口徑步槍選型的時候,採用95式步槍是一個錯誤的決定.不過,雖然無託化的浪潮開始 ...

中國步槍悄然出口,蘇丹要搞“未來戰士”,為何點名要97式步槍?

中國步槍悄然出口,蘇丹要搞“未來戰士”,為何點名要97式步槍?
2014年,蘇丹國提出了一個令人匪夷所思的國防建設計劃:這個計劃比較特殊,與蘇丹這一小國身份完全不符的"未來戰士"赫然在列!更令中國網友震驚的是,這一項長遠的計劃中,中國製造的武器 ...

3個男人一臺戲?甘地、尼赫魯和莫迪,是咋帶偏印度崛起之路的?

3個男人一臺戲?甘地、尼赫魯和莫迪,是咋帶偏印度崛起之路的?
印度,一個獨立時間比中國還早兩年,在現代化程序中起點比中國略勝一籌的國家,為什麼獨立74年來,卻被中國遠遠的落在了後邊? 俗話說:火車跑得快,全靠車頭帶. 那麼相比為中國革命和發展取得豐功偉績的毛澤東 ...

1961年果阿戰爭:印度碾壓葡萄牙,終結400多年殖民史

1961年果阿戰爭:印度碾壓葡萄牙,終結400多年殖民史
印度軍隊 印度的果阿,猶如中國的澳門,都是葡萄牙殖民擴張的產物. 1947年英國人從印度撤離之後,葡萄牙人仍然盤踞果阿等地,拒絕撤離. 1961年12月,印度在反覆交涉失敗後,不顧西方世界的普遍反對, ...

解放軍在高原吃餃子,印軍只能啃餅乾?看看印度新建的哨所就懂了

解放軍在高原吃餃子,印軍只能啃餅乾?看看印度新建的哨所就懂了
向來在邊境和領土主權問題上"小心思"頗多的印度,日前曝出了一個不大不小的"笑話".早在2015年,為了改善中印邊境印控區一線人員的生活狀況,莫迪政府斥巨資修建了 ...

作弊炸死越南士兵,敗壞中國武器聲譽,邪惡的美軍越戰長子行動

作弊炸死越南士兵,敗壞中國武器聲譽,邪惡的美軍越戰長子行動
1967年,越南與柬埔寨邊境附近,一支中國56式步槍黑洞洞的槍口,瞄準了美軍第一步兵師的一名士兵,隨著一聲清脆的槍聲,死神來了. 但蹊蹺的是,倒下的並不是被瞄準的美國士兵,而是埋伏在樹叢裡對他開槍的北 ...

印度不斷挑釁,我軍建設永久性營房,基地為依託戰備體系更完善

印度不斷挑釁,我軍建設永久性營房,基地為依託戰備體系更完善
正直10月中旬,內地已經進入到深秋,而西北邊境已經進入到了初冬季節,夜間氣溫降到了零下,駐紮在這裡的我軍駐訓部隊住宿條件怎麼樣呢?最近央視軍事記者探訪了我軍在西部邊境新建成的綜合性基地的情況. 這座基 ...

都是人口大國,我國癌症數量卻是印度的三倍,背後的原因惹人深思

都是人口大國,我國癌症數量卻是印度的三倍,背後的原因惹人深思
如果我說,大部分人都看不起的印度癌症發病率遠遠低於中國,你們會相信嗎?印度的人口總數跟我們相差不大,根據第七次全國人口普查結果,目前我國總人口數為14.4億,印度的人口總數估計也接近14億,如果我們不 ...

地球班往事:印度現身說法,五常是用啥辦法,防止核武器擴散的?

地球班往事:印度現身說法,五常是用啥辦法,防止核武器擴散的?
地球是一個特殊的班級,每個國家都是這個班級裡的同學. 最近地球班裡不太平,班長美國決定要向澳大利亞提供核潛艇技術.雖然說是隻提供核動力系統,不提供核武器,但美國核潛艇上用的核燃料,很多都是從核武器中直 ...

亂了整整7年,烏克蘭為什麼就是不願意向俄羅斯低頭?

亂了整整7年,烏克蘭為什麼就是不願意向俄羅斯低頭?
王光之/一個有腔調的人文解讀頭條號 越混越差的烏克蘭 娜塔莉亞,俄羅斯族,1980年生人,原克里米亞檢察長,後加入俄羅斯國家杜馬,少將軍銜,目前被烏克蘭通緝 烏克蘭(Ukraine),歐洲最一言難盡的 ...

從仿製到出口,中國56式衝鋒槍備受歡迎,64個國家使用著7個改型

從仿製到出口,中國56式衝鋒槍備受歡迎,64個國家使用著7個改型
近些年來,我國輕武器有長足的發展和進步,服役了一系列先進的武器.新中國成立之後,我國的輕武器從仿製,到自己獨立研發,在很短的時間內取得了優異的成績.除了自身裝備之外,還有就是我國的輕武器也有大量的出口 ...

全黑外觀帥氣無比,廣受西藏部隊好評,鮮為人知的中國56C短步槍

全黑外觀帥氣無比,廣受西藏部隊好評,鮮為人知的中國56C短步槍
在56式衝鋒槍槍族中,乃至整個AK系槍族中,有一支比較特別的步槍.這款步槍也曾被稱為"最適合中國人的AK",是根據解放軍戰士的體型.作戰需求量身打造的AK步槍,即本文要介紹的QBZ ...

1948年,中日軍人迎來一場對決,徐向前部隊用刺刀將日寇捅死大半

1948年,中日軍人迎來一場對決,徐向前部隊用刺刀將日寇捅死大半
1945年8月15日,日本天皇裕仁發表<終戰宣言>,宣佈向盟軍無條件投降.9月2日,日本天皇.政府以及日軍大本營代表陸續在投降書上簽字.而這,也代表著抗日戰爭的最終勝利. 然而令人意想不到 ...

《終末的女武神》人類陣營介紹

《終末的女武神》人類陣營介紹
人類陣營 上期介紹完神明陣營的十二位神明,現在來介紹介紹來自人類陣營的13+1位人類代表(1是代表從神明陣營跑到人類陣營的佛祖釋迦). 飛將呂布 人類陣營NO1:中國三國時期-飛將呂布,相信大家對呂布 ...